|
Contest proposal of a residential house on the Vernadskogo Avenue, done by "Sergey Skuratov Architects".
Residential house (apartments) of deluxe class © Sergey Skuratov Architects
The project covered in this issue was developed in the middle of last year for a closed architectural contest. Besides "Sergey Skuratov Architects", the list of participants also included "Project Meganom" and "Tsimailo, Lyashenko and Partenrs" - but the winner never was announced. The customer simply changed his mind and decided not to announced the results - so, all the projects got laid by. In this article, we present to our readers Sergey Skuratov's version of what the residential house on the Vernadskogo Avenue might have looked like.
Residential house (apartments) of deluxe class © Sergey Skuratov Architects
The land site, one that became the object of the contest, is located between the park areas of the Sparrow Hills sightseeing platform, Moscow State University, and the former "Young Pioneers Palace". Most of its territory borders on the Leninogorsk reservoir, and it is only from the north that it neighbors on the residential complex "Monolith" (Kosygina St., 19) and the Institute of Public and Utility Sector. From the future tenants' point of view, this place is practically the perfect one for the construction of a nice cozy "club" house: almost downtown, abundance of lush vegetation, and great views from the windows, ones to be envied at. More that that: the customer was able to get the approvals for building a direct driveway to the territory of the future complex from the Vernadskogo Avenue - which means that the tenants will have at their disposal one of the most convenient thoroughfares of Moscow's southeast. Besides the top-of-the-line requirements to the class of the designed housing, the contestants were quite predictably limited in the building's height: the house was not to violate the already-existing views of this area, and, preferably, be completely hidden behind the trees that grow along the avenue. Sergey Skuratov meets this specification to a letter.
 Residential house (apartments) of deluxe class © Sergey Skuratov Architects
Residential house (apartments) of deluxe class © Sergey Skuratov Architects
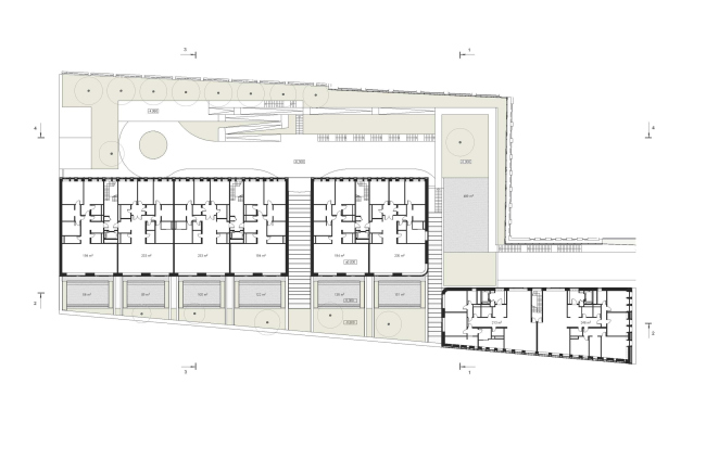
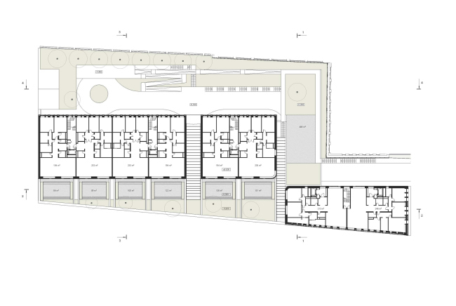
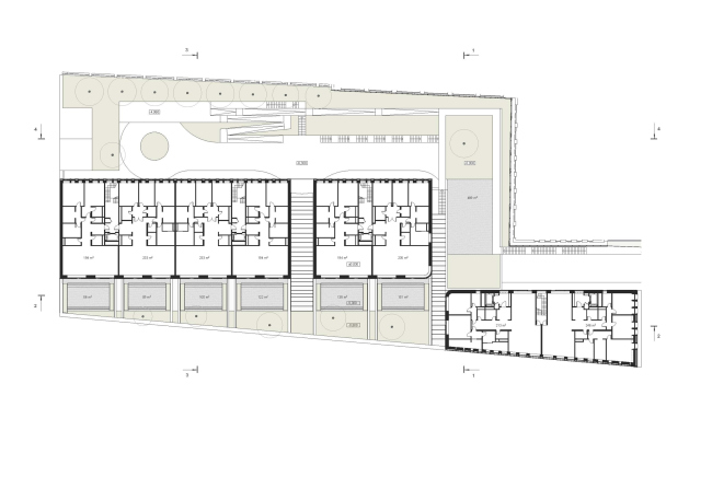
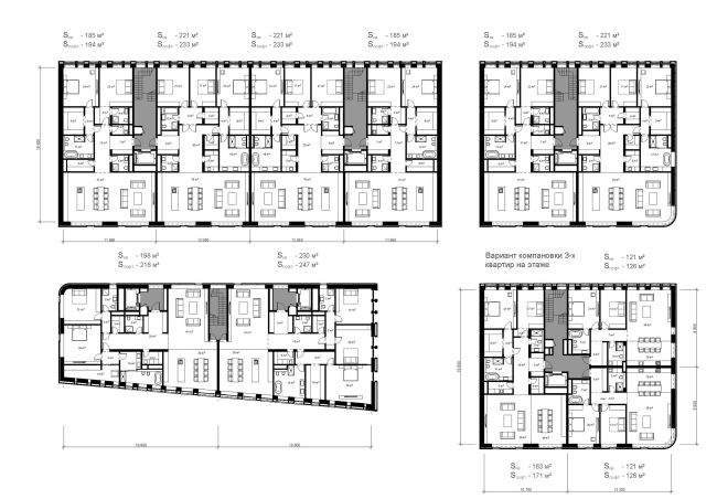
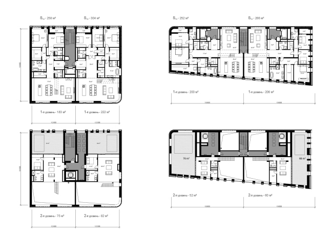
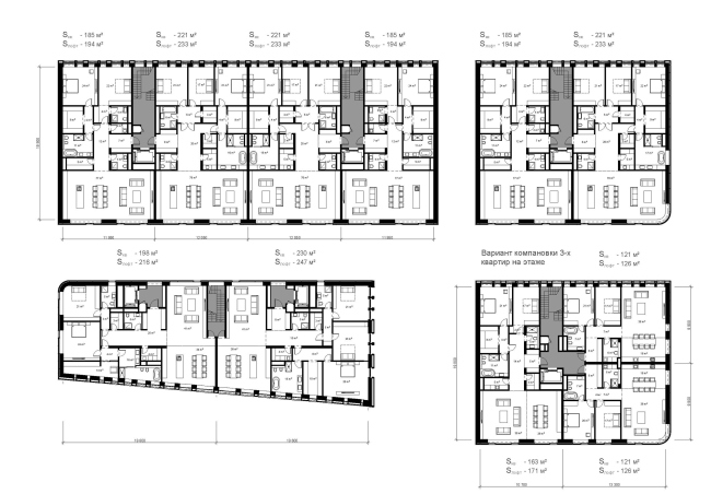
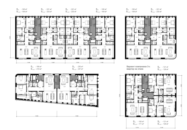
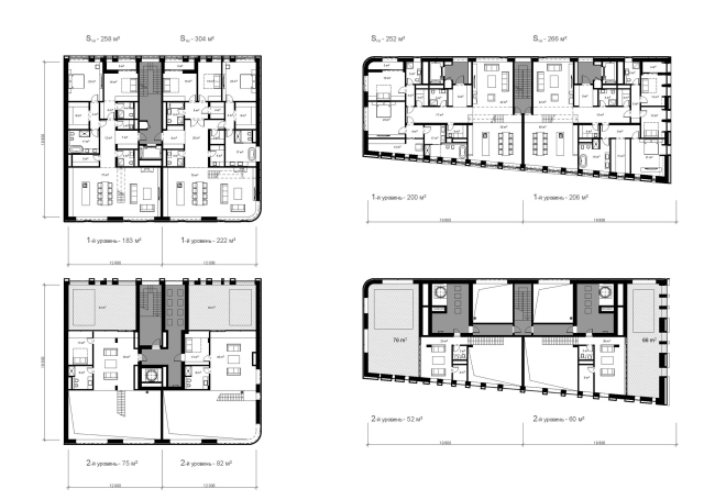
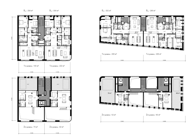
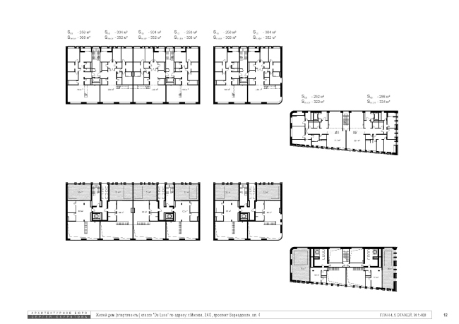
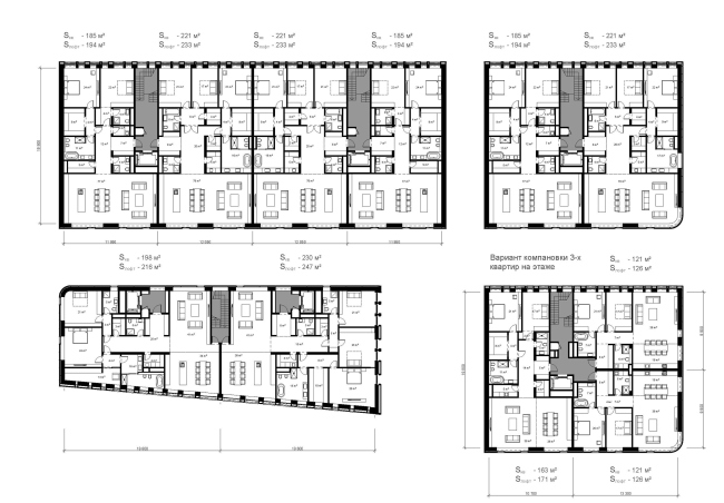
Oriented onto the Vernadskogo Avenue, the land site is in fact situated perpendicular to it, widening as it distances the highway - and the same town-planning logic is used by Sergey Skuratov in designing the complex. First of all, this is a tripartite structure that helped to avoid creating, under the limited height conditions, a monotonous "squatting" volume. What the architect does is design three buildings - the narrower one in fact fixes the driving entrance from the avenue, while the two other ones are located deeper in the site along its central axis.
Residential house (apartments) of deluxe class © Sergey Skuratov Architects
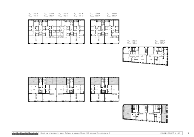
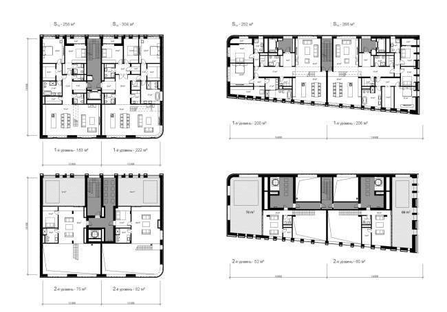
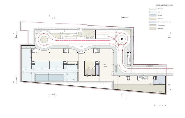
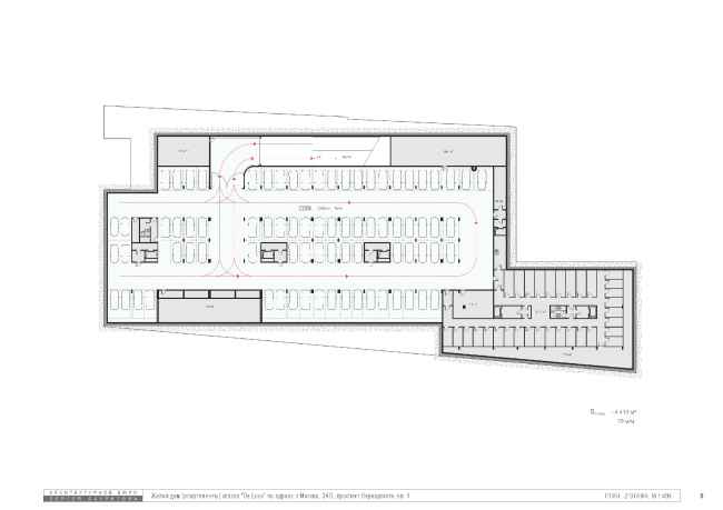
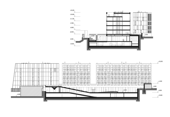
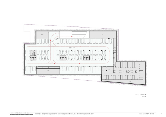
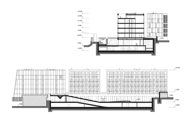
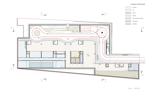
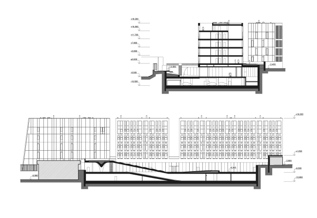
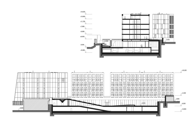
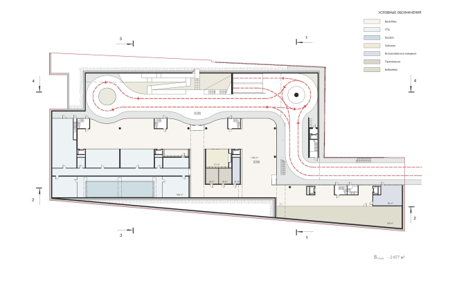
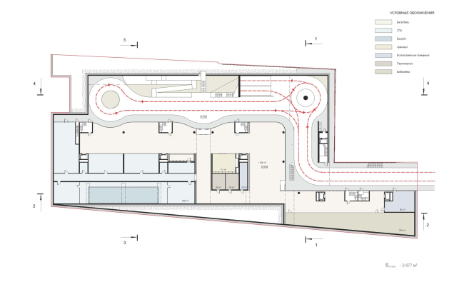
Set in such manner, the shift of the volumes in respect to one another becomes not only the most important compositional but also the architectural theme of the project: first of all, the complex gets both "outside" and "inside" facades that are designed totally differently, and, second of all, the territory set by the first building gets a more intimate status than the rest of the yard that stretches along the two other houses. From this standpoint, what really played into the hands of the architects was the height difference that the site had in it: the 5.5 meter drop in the direction of the avenue allows for creating a single stylobate - only the two further buildings grow from it in the usual manner, while with the "street" building it merges into one. Due to this, immediately on the side of the prospect, the complex gets the driving entrance into the underground parking garage that eliminates the risk of a car pile-up in the yard territory, while the yard itself is designed on two levels as a complex system of open and closed territories.
 Residential house (apartments) of deluxe class © Sergey Skuratov Architects
Residential house (apartments) of deluxe class © Sergey Skuratov Architects
The theme of the relief drop also showed up in the architectural design of the narrow building. Getting on the plan a trapeze shape (Skuratov places it exactly following the borders of the "appendix"), it gets a bit wider specifically in the direction of the avenue. And the architect endows this literally high-profile facade with a perceptible tilt: the house looks as if it were wincing away from the highway not wanting to have anything to do with it. And, because its first level is actually a stylobate, the architect designs the "bottom" in as massive manner as possible, using the solid brickwork. Higher up, the armor gets slit with the rather narrow verticals of the windows that start stretching only on the sidewall facade to become truly panoramic ones.
Residential house (apartments) of deluxe class © Sergey Skuratov Architects
Residential house (apartments) of deluxe class © Sergey Skuratov Architects
In a similar fashion the architect also designs the "outside" facades of the two other buildings with which they face their neighbors - the residential the institute buildings. As for the impregnable fortress walls, Sergey Skuratov proposed to execute them from Flemish brick Kolumba manufactured by the Danish company Petersen Tegl, and then couple it with glass, at some places transparent and in some places fading into opaque and then into milky white. Precisely in this way the inside facades are designed - the ones that are turned onto the most intimate part of the territory - the little gardens of the first floor apartments.
Residential house (apartments) of deluxe class © Sergey Skuratov Architects
Residential house (apartments) of deluxe class © Sergey Skuratov Architects
Special mention should be given to the interrelation of the three buildings between one another. In the places where the trapeze and the square-plan "middle" building look at each other with their milky facades, the architect rounds down the sharp corners, thus making the glass part of the buildings look even more ethereal. On the other hand, the interrelation between the second and the third buildings manifests itself in the solid surfaces of the fire walls: the thing is that the avenue-farthest house is twice as long as the middle one, and this length-to-length ratio allowed for placing, specifically underneath this "ravine", the central entrance to the complex. Naturally, the roof above it is made totally transparent and the resulting breathtaking "water well" beautifully complements ten interior of the public area. And to these, one must mention, the architects gave their special loving attention.
Residential house (apartments) of deluxe class © Sergey Skuratov Architects
And, while the architecture of the complex is dominated by austere geometry (the new building enters its context cool, calm, and collected), the interior, on the other hand, is reigned by the theme of borders dissolving. The interiors of the apartments are not just laconic - they take to the limit the "everything you need, nothing you don't" idea that, as we know, can only be implemented in the day-to-day life by really wealthy people. The refined whiteness of the private residential territories is framed by the more "material" interiors of the public areas. Here, the white is also present but it does not prevail here just as unrivaled: the dazzling-white walls bleed into the walls of milky glass, while the latter, in turn, becomes more and more transparent closer to the ceiling. Thus fragile, as if thinning, matter is offset with the warm monolith of the natural wood - it is used to decorate the ceilings, some of the walls, and the interiors of the library that, upon the architect's initiative, got included into the first-floor premises and became the "the logic intellectual finale of this particular typology". The entrance lobby is separated from the street by a tall glass wall that arches in a graceful wave, not only shifting the border between the inner and the outer, but also giving the entrance area softer outlines that give away the true kind face of this seemingly "aloof" house.
 Residential house (apartments) of deluxe class © Sergey Skuratov Architects
Residential house (apartments) of deluxe class © Sergey Skuratov Architects
Residential house (apartments) of deluxe class © Sergey Skuratov Architects
Residential house (apartments) of deluxe class © Sergey Skuratov Architects
Residential house (apartments) of deluxe class © Sergey Skuratov Architects
Residential house (apartments) of deluxe class © Sergey Skuratov Architects
Residential house (apartments) of deluxe class © Sergey Skuratov Architects
Residential house (apartments) of deluxe class © Sergey Skuratov Architects
Residential house (apartments) of deluxe class © Sergey Skuratov Architects
Residential house (apartments) of deluxe class © Sergey Skuratov Architects
Residential house (apartments) of deluxe class © Sergey Skuratov Architects
Residential house (apartments) of deluxe class © Sergey Skuratov Architects
Residential house (apartments) of deluxe class © Sergey Skuratov Architects
Residential house (apartments) of deluxe class © Sergey Skuratov Architects
Residential house (apartments) of deluxe class © Sergey Skuratov Architects
Residential house (apartments) of deluxe class © Sergey Skuratov Architects
Residential house (apartments) of deluxe class © Sergey Skuratov Architects
Residential house (apartments) of deluxe class © Sergey Skuratov Architects
Residential house (apartments) of deluxe class © Sergey Skuratov Architects
Residential house (apartments) of deluxe class © Sergey Skuratov Architects
Residential house (apartments) of deluxe class © Sergey Skuratov Architects
Residential house (apartments) of deluxe class © Sergey Skuratov Architects
Residential house (apartments) of deluxe class © Sergey Skuratov Architects
Residential house (apartments) of deluxe class © Sergey Skuratov Architects
Residential house (apartments) of deluxe class © Sergey Skuratov Architects
Residential house (apartments) of deluxe class © Sergey Skuratov Architects
Residential house (apartments) of deluxe class © Sergey Skuratov Architects
Residential house (apartments) of deluxe class © Sergey Skuratov Architects
Residential house (apartments) of deluxe class © Sergey Skuratov Architects
Residential house (apartments) of deluxe class © Sergey Skuratov Architects
Residential house (apartments) of deluxe class © Sergey Skuratov Architects
Residential house (apartments) of deluxe class © Sergey Skuratov Architects
Residential house (apartments) of deluxe class © Sergey Skuratov Architects
Residential house (apartments) of deluxe class © Sergey Skuratov Architects
Residential house (apartments) of deluxe class © Sergey Skuratov Architects
Residential house (apartments) of deluxe class © Sergey Skuratov Architects
Residential house (apartments) of deluxe class © Sergey Skuratov Architects
Residential house (apartments) of deluxe class © Sergey Skuratov Architects
Residential house (apartments) of deluxe class © Sergey Skuratov Architects
Residential house (apartments) of deluxe class © Sergey Skuratov Architects
Residential house (apartments) of deluxe class © Sergey Skuratov Architects None
None
None
None
None
None
None
None
None
None
None
None
None
None
None
None
None
None
None
None
None
None
None
None
None
None
None
None
None
None
None
None
None
None
None
None
None
None
None
None
None
None
None
None
None
None
None
None
None
None
None
None
None
|