|
Next to "Nagornaya" metro station, upon the project of "Sergey Kisselev and Partners", soon there will start the construction of two residential towers attracting one's attention with their dramatic checkered coating.
Architectural proposal for Buildings 5 and 6 of the residential complex "Nagorny" © "Sergey Kisselev and partners"
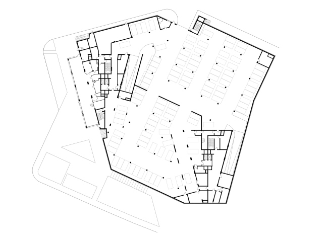
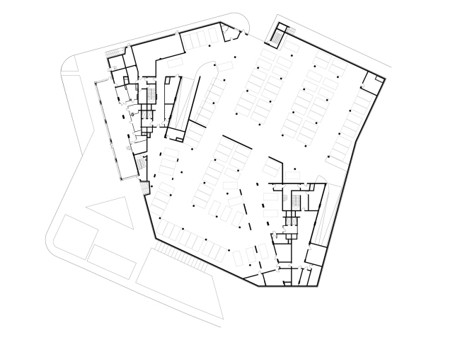
This project has been in the making since January 2013, when the company "Vedis-Group" turned to "Sergey Kisselev and Partners" with a request to come up with an architectural solution for the two "flagship" towers of the new block in construction. Built next to "Nagornaya" metro station, in the place of the former "Kotelsky Factory", this block consists of six residential buildings, a kindergarten, and a multilevel parking. The four other buildings that stretch immediately from the metro station down the Elektrolitny Driveway, are in fact the typical 25-floor section houses, while the towers standing along the southern border of the site at the bend of the Krivorozhskaya Street, were slow to materialize and were present in the project but nominally. The developer realized that in this particular case typical solutions would not do - both because of their location and class of the housing the towers were asking to become high-profile objects capable of giving dime character not only to the new block but also to the whole neighborhood with its rather chaotically placed buildings.

Architectural proposal for Buildings 5 and 6 of the residential complex "Nagorny" © "Sergey Kisselev and partners"
"We found this task interesting from the very start. On the one side, it was the opportunity to create the "face" of the block, and on the other side - a possibility to work in an interesting environment. The neighborhood that is there now can hardly be called attractive - but it doubtlessly has a potential that we wanted to bring out in our project" - shares the main architect of the project Andrew Nikiforov.
On the plan, both towers got a shape of equilateral trapezes. This was by far not the first option that the architects developed: they experimented with a square and a triangle but it was only with the trapezes that the high-rises took on the desired dramatic and self-sufficient look. It also took the architects a rather long time to try and find the optimum angle of turning the trapezes to the neighboring streets: they tried to tie the houses in to the winding Krivorozhskaya, and to the Elektrolitny Driveway, and to the residential houses located across - but, strictly speaking, none of these grids could be perceived as the prevailing one on the territory. Thus ultimately the architects opted for the solution that consisted in the the western facades of both towers being parallel to the already-in-construction long buildings of the block.

Architectural proposal for Buildings 5 and 6 of the residential complex "Nagorny" © "Sergey Kisselev and partners"
Concurrently to that, a thorough search for the facade design solution was on. "We generally believe that your facade must reflect your 3D solution and be its logical continuation, highlighting the shape and the structure of the building - and in the situation of such a loose urban environment as in the Nagornaya area, this is vitally important" - the chief architect of the project firmly believes. The authors of the project tried both various options of single design got the towers, and the contrast finish, playing on the difference of colors and textures of the materials. At the end of the day, the battle was won by the modular checkered pattern of black and white squares. On the side facades, they frame each of the windows, making up dramatic diagonals and enlarging the scale, while on the side walls, following the logic of the theme chosen by the authors, the "fields" stretch horizontally and lose some of their height.

Architectural proposal for Buildings 5 and 6 of the residential complex "Nagorny" © "Sergey Kisselev and partners"
The color accents are only used in this project in the design of the entrance groups of the public zone. For coating the main volumes, the architects deliberately opted for the monochrome scale, looking to offset the garishness of the immediate environment of the high-rises - the typical residential buildings whose bright color solution is meant to make up for the monotony of their architectural solutions. The black-and-white facades, however, do not get lost against this background at all - both thanks to the dramatic shape of the towers, and thanks to the micro relief: the dark elements are pushed deeper inside, and the light ones, on the other hand, are "extruded" outward a bit. Such a technique gives volume to the checkered surfaces, and, as Andrew Nikiforov explains, saves them from of a "cardboard" feel that is the problem of so many contemporary facades. The architects had a hard time, however, implementing this solution: making the concave and convex squares from concrete was not practicable, and, with the usage of the traditional system of ventilated facades, the "frames" had to be split into four separate plaques - which automatically meant noticeable seams between them. There was also quite a challenge of finding a technological solution for executing the relief of concave and "extruded" elements. The most "justified" solution for the unit was the one where the black and white HPL-panels of the facade surface are framed with metallic profiles of the corresponding color.

Architectural proposal for Buildings 5 and 6 of the residential complex "Nagorny" © "Sergey Kisselev and partners"
On the first floors of both towers, there are small lots, each one with an entrance of its own from the outside contour of the building. As for the apartments, the architects got a very wide range of them - because the residential premises are grouped along the side walls of trapezes and are divided into modules corresponding to sizes of the facades. The partitions can be moved around in any direction, thus changing the square footage of not only some rooms but also whole apartments. What is also important is the fact that the wet zones are grouped into separate lines that "embrace" the elevator nucleus - which will allow the people who will live here to rearrange even these parts of their apartments without having to "infringe" their neighbors' premises.

Architectural proposal for Buildings 5 and 6 of the residential complex "Nagorny" © "Sergey Kisselev and partners"
The broad backside facade holds the technical stanza with the fire escape stairs. The stanza also includes the air conditioning blocks - thus protecting the facades of unwelcome "outlaw" intrusions. Andrew Nikiforov laments the fact that the architects were not fully able to forego the balconies: from the fire safety standpoint, the two staircases render them redundant but the promoters insisted on there being a few stanzas - knowing that this way the apartments would sell better. The "balcony" compromise, though, was reached in the planning of large side-end apartments - the stanzas appear in the spots where the square "fields" on the checkered facades stretch into rectangles.

Architectural proposal for Buildings 5 and 6 of the residential complex "Nagorny" © "Sergey Kisselev and partners"
A great deal of attention in this project the architects paid to landscaping the territory around the towers. Due to the fact that they are part of a larger housing block, fencing their yards would have been wrong - but the architects still wanted to propose some zoning of the territory, and in this case the existing relief drop came in very handy: the towers are built not only on the bend of the Krivorozhskaya Street but also on the slope that goes down in the direction of a picturesque ravine. Thus, the towers face the street with a rather austere yard whose high-profile function is enhanced by the geometrical paving pattern, while the entrance zone of the complex is a lot lower and it serves as a sort of a border between the rational urban tissue and the picturesque natural one: between the houses and the multilevel parking, the architects design a bit of a nice little garden (on the roof of the parking) that, when still further away from the road, turns into a fully-fledged park. Yet another strip of land - the islet of the Krivorozhskaya Street that is also the property of the developer - the architects separated with a screen of trees and used it for making a sports ground.

Architectural proposal for Buildings 5 and 6 of the residential complex "Nagorny" © "Sergey Kisselev and partners"
Besides the landscaping project, "Sergey Kisselev" developed for the towers the interior designs of the entrance areas and the public corridors. And, just like the facades are the logic continuation of the 3D solutions of the buildings, so their interiors harmoniously develop the artistic techniques of the architecture of the complex. Specifically, the authors borrow the black-and-white design from the facades: the dark-color material is used to finish the walls of the entrance lobbies and corridors, white is used to finish the ceilings and the bearing columns. The pristine geometry of the facade grid, though, gives way here to the smooth curves of the ceiling niches, and the black-and-white palette is "diluted" with the floors of light beige hue and the phitowall whose rich green color will be provided by the living plants.

Architectural proposal for Buildings 5 and 6 of the residential complex "Nagorny" © "Sergey Kisselev and partners"

Architectural proposal for Buildings 5 and 6 of the residential complex "Nagorny" © "Sergey Kisselev and partners"

Architectural proposal for Buildings 5 and 6 of the residential complex "Nagorny" © "Sergey Kisselev and partners"

Architectural proposal for Buildings 5 and 6 of the residential complex "Nagorny" © "Sergey Kisselev and partners"

Architectural proposal for Buildings 5 and 6 of the residential complex "Nagorny" © "Sergey Kisselev and partners"

Architectural proposal for Buildings 5 and 6 of the residential complex "Nagorny" © "Sergey Kisselev and partners"

Architectural proposal for Buildings 5 and 6 of the residential complex "Nagorny" © "Sergey Kisselev and partners"
None
None
None
None
None
None
None
None
None
None
None
None
None
None
None
|