|
In one of the picturesque bends of the Skhodnya River, Architecturium" Studio is building the residential complex named "Novogorsk Olympic Village. Resort”.
"Novogorsk Olympic Village. Resort" © "Achitecturium", "Khimki Group"
The new complex continues the series of projects united by the common name of "Novogorsk Olympic Village" that is being implemented by "Khimki Group" developers. Different in the residential property market segment, construction area, and architectural solutions, these projects are united by the concept that the young generation needs to go in for sports: each project "comes" with a specialized sports center of its own. And, while in "Olympic Village" this is the "Irene Winer-Usmanova International Academy of Sport", and in the block "Novogorsk - Apartments” this is the martial arts complex "SAMBO 70", the first stage of "Resort" will become the residence of "A.Lebzyak Boxing School", and the second stage will host a volleyball school.
"Novogorsk Olympic Village. Resort" © "Achitecturium" The land site upon which the architects are building "Novogorsk Olympic Village. Resort" is located at the picturesque fragment of the Skhodnya where the river splits in two forming a small islet of an oval shape. Two stages of the projects took three hectares each on both sides of the river, while the island that is located exactly in the middle between the construction sites is included into the future complex as a recreation area. In many respects, incidentally, this is exactly why the new project is treated as a "resort": the forest, the river, and the landscape island are the perfect place for relaxation. The river banks will be connected to the island with four pedestrian bridges, two on each side. Currently, however, only the first stage of the project is under actual construction - three multi-section buildings that look as if they are "embracing" the embankment, and it is these buildings that we are going to give detailed coverage here.
 "Novogorsk Olympic Village. Resort" © "Achitecturium" "Resort" is being built 300 meters upstream from the "Olympic Village" and it is located within its direct visibility zone. The wavy roof of the sport center is plainly viewable from here, so it stands to reason that the architects used this proximity as one of the starting points in shaping the image of the future complex. The roofs of its buildings are also "taking a lot of liberties", although the smooth curves give way here to jagged facets that give the silhouette of the houses a distinct resemblance to the ECG line: it really looks as if the beautiful scenery around you makes your heart beat harder and faster. The dynamic "pulse" is also enhanced by the coating - the seamed metal of a dark-brown hue.
"Novogorsk Olympic Village. Resort" © "Achitecturium", "Khimki Group"
"Novogorsk Olympic Village. Resort" © "Achitecturium", "Khimki Group" But then again, for the sake of justice, it is worth mentioning that the proximity to the river proved to be not only a positive factor but also a considerable challenge for the architects. The complicated hydrogeology and the necessity to come up with measures aimed at dewatering and draining the territory are but two issues that the architects had to address before getting down to the project itself. In order to ensure the elimination of the possibility of flooding the territory during the springtime, the architects proposed to use a system of radial drainages and wells (developed by "Darvodgeo" Institute) and gabion structures, while the embankment was designed to be a two-level one. The water's edge is flanked by a plank embankment that is accessible by a few ramps, while the main territory is raised almost three meters above the water level.
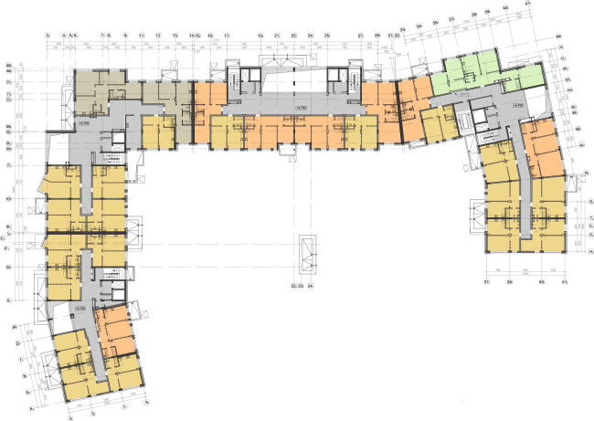
"Novogorsk Olympic Village. Resort" © "Achitecturium", "Khimki Group" On the plan, the houses look something like sharpe-angled horseshoes turned away from the Ivanovskoe Highway that flanks the site from North and East. Striving to create cozy and self-contained yard territories that open up to the embankment, the authors still did not want to lock these yards inside the high crude walls - so the number of floors in the houses gradually decreases as they approach the embankment. This "terraced" structure would have looked quite predictable, had it not been for the fact that the "steps" are alternately inclined to the left and to the right. Such "tectonics" have both artistic meaning (the slanting strokes visually support the jagged roof), and practical meaning as well: you cannot just walk out on these slanted terraces to hang out your laundry to dry or to make a barbeque, so these terraces are in no danger of glazing. “Regretfully, our long-standing working experience of building residential complexes forces us to stick to the solutions that will leave the end consumer devoid of the opportunity to ruin the architecture" - Vladimir Bindeman explains with a helpless gesture.
 "Novogorsk Olympic Village. Resort" © "Achitecturium"
The project also provides for the issue of placement of the air conditioners: the outdoor blocks will be equipped with special boxes: grouped in pairs and enclosed by thin lattice, they are perceived as facade elements, sort of a "finishing touch" added to the overall architectural solution. A couple of words must be said about the engineering systems that are routed out onto the roof: the architects coat the fairly tall vertical ducts that house the gas boiler rooms with the same dark-brown metal and add stained-glass to them - which makes these volumes look more like tiny studio apartments rather than technical structures. Considering the fact that the topmost (seventh) floor is completely glazed (transparent surface gets run directly under the roof breaks) and is going to contain penthouses, the appearance of the houses of those who lives on the roof starts making perfect sense.
"Novogorsk Olympic Village. Resort" © "Achitecturium" As for the facade solution, it is based on the contrast of the dark and light-colored surfaces. For example, the road and the driveways between the buildings are overlooked by the facades that are decorated with brick tiles of a dark-brown hue with small inserts of light-colored HPL panels. Some extra dynamics also comes from the triangular bay windows - decorated with white panels, they protrude from the bulk of the house like periscopes and "catch" additional views of the river. As for the facades turned inside the courtyard and onto the Skhodnya River, they are conversely decorated with light HPL panels with wood-simulating texture, and they have glazed surfaces of a considerably larger size.
"Novogorsk Olympic Village. Resort" © "Achitecturium"
"Novogorsk Olympic Village. Resort" © "Achitecturium" The maintenance floor that is located on the ground level, and the first floor that, besides the entrance lobbies, houses also the public premises, are decorated with "travertine-like" ceramic granite, creating an additional broad band and visually connecting the base of the building to the landscaped embankment. This connection is also supported by means of landscaping, and, together with the yards, wide open to the river, the embankment falls in fact into a single whole, at the same time forming a highly-developed network of public territories. For their recreation and leisure, the people who will ultimately live here will have at their disposal the island with a man-made beach, a beach bar (turned into a skate hire shop in the wintertime), a sports ground, and a children's playground as well.
"Novogorsk Olympic Village. Resort" © "Achitecturium"
"Novogorsk Olympic Village. Resort" © "Achitecturium"
"Novogorsk Olympic Village. Resort" © "Achitecturium"
"Novogorsk Olympic Village. Resort" © "Achitecturium"
None
None
None
None
None
None
None
None
None
None
None
None
None
None
|