|
On Moscow's Olimpiysky Avenue, "Asadov Architectural Bureau", together with M-19 of "Mosproject-2", has built the business center "Olympic Hall".
"Olympic Hall" business center © Asadov Architectural Bureau
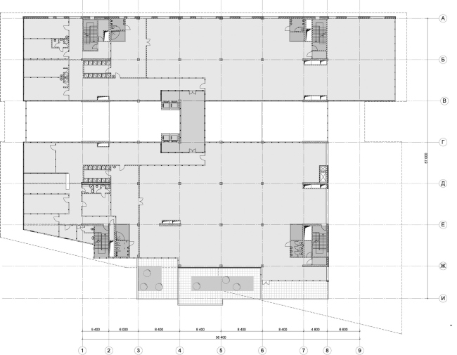
"Olympic Hall" has been erected at the crossing of the Olimpiysky Avenue and the Samarskaya Street, on a tiny spot that used to be but a wasteland and an outlaw parking lot in front the famous swimming sport complex. The new volume perched itself against the broad staircase of the sport complex, and, from the town-planning standpoint, such merger made a lot of sense - the building of the business center was to rearrange the "backyard" area before the Olympic objects giving them a feel of coziness and completeness.
The context that was also to be paid careful attention to was also an extraordinary piece of luck for the architects. Basically, every building around here is an icon of this or that historical epoch. This holds equally true for both Olympic buildings - the symbols of the 80's, and for the "horseshoe" of "Renaissance" Hotel, the symbol of the luxury of the 90's, and to the multilevel "Lukoil" parking garage which is the characteristic building of the 2000's. Also peculiar is the fact that each of these buildings sports at least one curvilinear facade. Moscow, just as any other megalopolis, is almost completely dominated by the rigid orthogonal grid - but somehow it is at this particular spot that it gives way to smooth and rounded shapes. Possibly, the reason for that are the smooth outlines of the hilly local terrain or, perhaps, it is the hypnotic effect of the ellipse of the main sports arena of the 80's Olympics - the laconic self-sufficiency of this volume is indeed hard to question... This way or the other, all the newer surrounding buildings are forced to bend and get distorted in some way, and, finding themselves in the epicenter of this "magnetic field", the Asadovs became no exception. On the contrary - they readily responded to the challenge of the context.
 "Olympic Hall" business center © Asadov Architectural Bureau
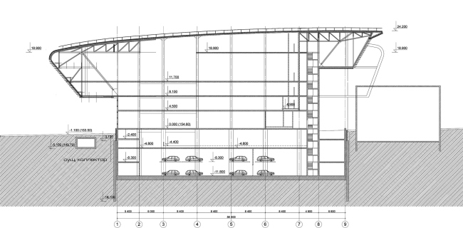
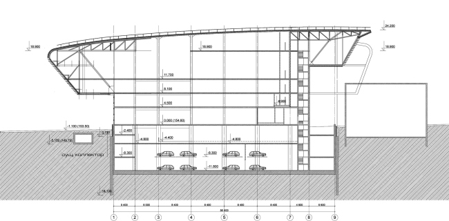
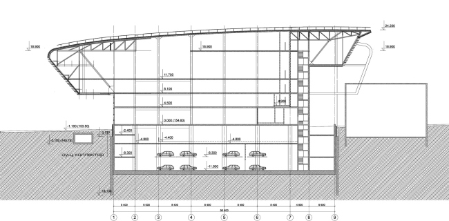
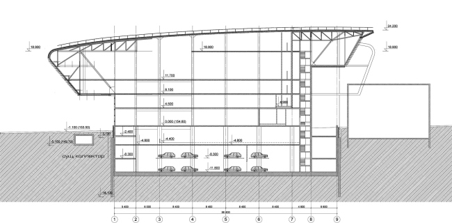
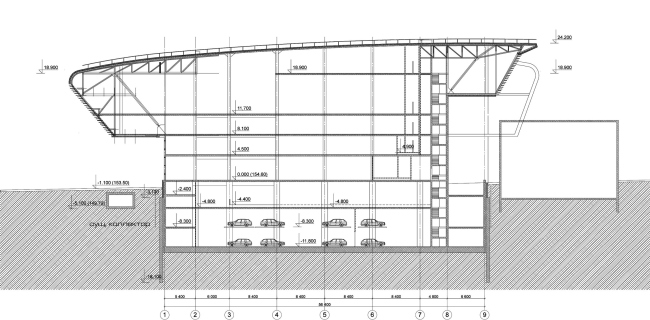
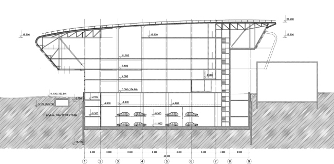
Still, even such non-trivial environment was but the secondary consideration for the architects. The first thing that the architects had to rack their brains over was the function of the designed volume. The thing is that it was not at all from the start that this project became a business center: originally, it was devised as a sports and entertainment facility, which actually was a better match to the building's surroundings. Initially, it was planned that this building would house a bowling alley, one of the largest in Moscow. Squeezing 50 lanes into such a modest volume was a tall order that the architects were only able to accomplish by adding two 15-meter cantilevers on both sides of the construction blueprint. And, to make sure that, when viewed in profile, the building would not look like the "Thor's Hammer", the Asadovs first gave to the protrusions a more "sculpted" pointed shape, and then split each cantilever in two. Still after that, the architects bent the roof a little bit, pulling its edges over the cantilevers, rounding the bending lines. Such a shape made the complex look like a catamaran that has been turned upside down - as the architects themselves recall, the customer was delighted at such a proposal: the vivid image, the memorable silhouette, and the obvious plastic and thematic likeness to its immediate neighbors - the Olympic objects.
 "Olympic Hall" business center © Asadov Architectural Bureau
"Olympic Hall" business center © Asadov Architectural Bureau
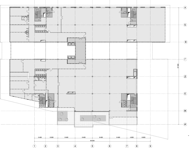
Splitting each cantilever with a fully transparent insert, the authors not only gave the building an imposing look and "fine-tuned" the new volume to the magnitude of the surrounding buildings but also provided the inside premises with an abundance of sunlight. And this is precisely why, when the bowling alley shrank to the size of a regular club and moved to the basement floor, the customer decided to keep the originally proposed structure fully intact. One will hardly dispute the fact that it was perfect for arranging the offices here: thanks to the cantilevers, the percentage of the useful area is extremely high, while the "multi-height" atrium gives these square meters comfort and dramatic individuality.
"Olympic Hall" business center © Asadov Architectural Bureau
Strictly speaking, the building looks like a catamaran only from a distance: on the facade that faces the Olimpiysky Avenue, the "link" is but conditionally "sunk" in between the two "hulls", while from the opposite side the "sterns" look totally different. The wing that opens up to the Samarskaya Street "picks itself up" and sucks itself in, while the one that overhangs the staircase is, on the contrary, developed horizontally. And, this tendency is supported by the second and the third floors of the complex: in fact, the building is "cut into" the giant staircase, sprawling over the stairs with glass blocks that are also designed as stairs against the background of the facade. This facade is arguably the most sophisticated one of all: being more of a match to the magnitude of the square rather than the neighboring buildings, it consists of a few smaller volumes between which the architects make incisions, cutaways, and extra mini-cantilevers. Accordingly, the finish material was chosen: the place is dominated by glass with the greenish metal framing the outlines of the cantilevers, while the lower floors are wrapped up in beige travertine that makes the new volume look like an integral part of the giant staircase.
 "Olympic Hall" business center © Asadov Architectural Bureau
"Olympic Hall" business center © Asadov Architectural Bureau
Quite a different story is the facade that faces the Samarskaya Street. Here, the stained glass of the windows is dissected with the horizontals of the intermediate floors, while the central part is designed as a rather massive stone canvas over which the rivulets of vertical windows seem to be trickling down. The finishing material is rendered still more palpable by the dark-gray porcelain stoneware with a metallic hue. The Asadovs confess that originally they wanted to finish the roof and the side walls of "Olympic Hall" with patinated copper - but then they yielded to their customer and agreed to the green metal, reasoning that, for this place, rich in plastic but still absolutely monochrome facades, what matters most is the color. The feeling of a slight discovery is enhanced by the powerful diagonals of the bearing metallic crossbeams of the cantilevers that are painted white fir some obscure reason, and thus are perfectly business through the stained glass - but this is the sad truth of Russia's construction tradition: the structures that are capable of being honest are rarely soft-spoken. In this context, it will also be relevant to mention the horizontal lamellae of the sidewall facade that faces the Olimpiysky Avenue: they are there on the renders, and from these renders it is obvious that, strengthened by them, the "main" cantilever takes on a much more complete aspect (for example, the vertical ribs of the rather coarse substructure are gone) but, alas, the customer was short if money for that. The customer still promises to add them later on, though.
 "Olympic Hall" business center © Asadov Architectural Bureau
The territory of the central atrium, thanks to the use of wood panels of two similar colors, turned out both festive and cozy-looking at the same time. The architects also tried to enhance this atmosphere with the black shine of the he floor tiles and the live trees in the tubs. The surrounding territory has also been transformed: on the spot that used to be the outlaw parking lot, there appeared a small pedestrian square that is securely protected from the rain and the too bright sunshine with the overhanging cantilever, while the staircase that used to be but a transient one, has turned into a self-sufficient public area.
"Olympic Hall" business center © Asadov Architectural Bureau
"Olympic Hall" business center © Asadov Architectural Bureau
"Olympic Hall" business center © Asadov Architectural Bureau
"Olympic Hall" business center © Asadov Architectural Bureau
"Olympic Hall" business center © Asadov Architectural Bureau
"Olympic Hall" business center © Asadov Architectural Bureau
"Olympic Hall" business center © Asadov Architectural Bureau
"Olympic Hall" business center © Asadov Architectural Bureau
"Olympic Hall" business center © Asadov Architectural Bureau
"Olympic Hall" business center © Asadov Architectural Bureau
"Olympic Hall" business center © Asadov Architectural Bureau
"Olympic Hall" business center © Asadov Architectural Bureau
None
None
None
None
None
None
None
None
None
None
None
None
None
None
None
None
None
None
None
None
|