|
The project of the residential complex "Wine House" is the result of joint work of Moscow's two largest architectural companies - "Reserve" and SPEECH.
Residential complex "Wine House". View from inside the yard. TPO "Reserve", SPEECH
The new residential complex is being built on the land site located between the Sadovnicheskaya Street and the Kosmodamianskaya Embankment. This is the very heart of the nation's capital: on the one side of it, there is the low-rise Zamoskvorechye district, on the other - the Moskva River and the spire of the Stalin-era high-rise standing on the Kotelnicheskaya Embankment. Before the "Great October Socialist Revolution" of 1917, this territory was occupied by the Peter Smirnoff winery, while in the Soviet times its neat brick walls were the place where "Cornet" champagne wad produced. In fact, it was this circumstance that gave the name to the project - one of the surviving buildings of the winery was included into "Wine House".
Residential complex "Wine House". TPO "Reserve"
Residential complex "Wine House". Location plan. TPO "Reserve", SPEECH
From the very start, the work of designing it was commissioned to Moscow's two largest architectural companies - TPO "Reserve" and "SPEECH". As the architects explain, this mainly had to do with the customer's desire to create a diverse and versatile residential block, in which every single building would have a magnitude and a recognizable character of its own. The closely standing buildings were not to "outshout" one another - but create an interesting architectural dialogue. Specifically because of this, the choice was made in favor of such stylistically different companies: "Reserve" with its austere and laconic tectonics of their buildings and no-frills approach, and SPEECH with its love of detailed reliefs and and top-quality natural materials.
Besides the fact that each company had the experience in the facade design (this task the architects simply split in half so as to make the facades, drawn by different teams, alternate with one another), the sphere of responsibility were divided as follows: TPO "Reserve" was functioning as the general designer, handling the layout, engineering communications and the landscaping of the territory, while SPEECH took all the technical issues of the facade design, as well as the interior design of the public territories. Apart from that, the team of Vladimir Plotkin developed a project for the restoration of the factory building included into the complex.
Residential complex "Wine House". TPO "Reserve", SPEECH
Built in 1888-1889 upon the project of Nicolas Voskresensky, this red-brick building with elegant white decorative elements has today the status of cultural and architectural monument. Its main facade is turned onto the Sadovnicheskaya Street. In accordance with the project of its restoration, all its architectural and artistic details: the snow-white rusticated pilasters, the window decoration, and the exquisite cornice crowning the building, are restored completely up to the original. On the inside, however, the factory building turns into a modern loft-style apartment house with high ceilings and spacious rooms. According to the architects' plan, on the first floor of this building there will be a restaurant.
Residential complex "Wine House". TPO "Reserve", SPEECH
For filling in the rest of the territory of the former winery, the architects chose the gridiron layout. The contemporary houses that do not in the least look like they were trying to mimic the historical building line up strictly along the perimeter of the site, which results in a broad courtyard securely protected from the eyes of the passers-by. One can enter it from the Sadovnicheskaya Street, where the architects leave two broad passages along the side walls of the restored building, as well as through the arches in the opposite-side building on the Kosmodamianskaya Embankment.
Residential complex "Wine House". TPO "Reserve", SPEECH
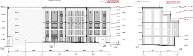
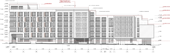
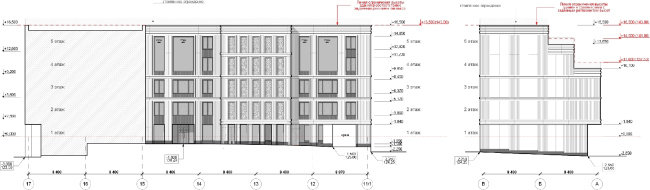
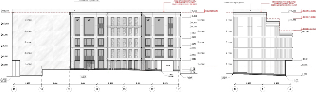
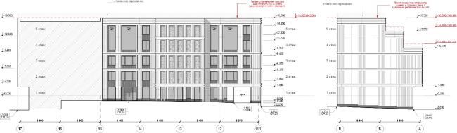
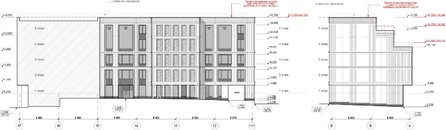
The buildings have a varying number of floors, rising, toward the Moskva River, in three large steps, on which the architects organize open-air terraces for the inhabitants of the apartments. Looking at the complex from above, one will see that the roof, cut into steps if different configuration, sports in fact many of such terraces that command fine views of the city. The first, 4-story building front supports the housing line of the Sadovnicheskaya Street with its "good old Moscow" cozy little houses. Deeper into the block, the houses reach up to 7 stories because at that point they have to neighbor on the rather tall Stalin-era buildings standing along the embankment.
Residential complex "Wine House". TPO "Reserve"
Residential complex "Wine House". TPO "Reserve", SPEECH
The authors of this or that particular building in the complex is pretty easy to guess - one only has to look at their facades. Following the single concept, Vladimir Plotkin and Sergey Tchoban express themselves each in a language of his own. The Plotkin facades with their broad apertures of windows drawn against the white canvas of the wall, are terminally graphic: each line and each angle is drawn with geometric precision and follows the strict proportions. Quite different are the Sergey Tchoban facades - the walls of his houses actively use the cut natural stone of light hues. Sometimes these are simple relief surfaces, and sometimes these are sophisticated patterns. Here and there one can see the soft rounded angles, imposing cornices, and the pristine array of belts, pylons, and demi-columns.
Residential complex "Wine House". SPEECH
Residential complex "Wine House". SPEECH
Residential complex "Wine House". TPO "Reserve"
Residential complex "Wine House". TPO "Reserve", SPEECH
The lower floors on the Sadovnicheskaya Street side and along the side passages will house the public functions - the boutiques with large glass showcases, a fitness club, a spa, and a beauty salon. From the opposite side on the level of the courtyard, separate entrances to the two-level apartments are provided. Totally, the seven buildings of the complex will include 176 apartments with an area from 62 to 227 square meters. Besides the standard apartments, there will be penthouses, apartments with access to the terraces, and apartments with loft floors.
Residential complex "Wine House". TPO "Reserve", SPEECH
Project of landscaping the territory of "Wine House" © TPO "Reserve"
Project of landscaping the territory of "Wine House" © TPO "Reserve"
Special mention should be given to the organization of the yard territories that was done by TPO "Reserve". The original idea of duality of the architectural solutions proposed by two different companies was fully implemented in the concept of the yard territories. The main courtyard, situated on the stylobate part of the complex and securely protected from the outside world, is treated by the authors as a regular garden, while the green territory outside "Wine House" (the adjoining territory, free from any structures) turns into a "wild" terminally natural garden. And, while the latter is dominated by large trees planted on a freehand array with the walk paths between them barely visible, the solemn rhythm of the courtyard is set by the pristine geometry of all of its elements, be that flower beds, recreation areas, or the trails. Special attention was paid to the choice of the materials: the paving of the central trails will be done with Flemish brick that will rhyme with the preserved factory building, while the outside borders if the yard will be marked by granite slabs echoing the facades if polished natural stone. The design of the lawns that are somewhat elevated above the yard level will also use the Jurassic stone and the corten steel that together form an interesting dialogue of the modern and the contemporary that runs like a golden thread through this entire project.
The construction of "Wine House" is due to be completed in 2016.
Project of landscaping the territory of "Wine House" © TPO "Reserve"
Residential complex "Wine House". TPO "Reserve", SPEECH
Project of landscaping the territory of "Wine House" © TPO "Reserve"
Residential complex "Wine House". TPO "Reserve", SPEECH
Residential complex "Wine House". TPO "Reserve", SPEECH
Residential complex "Wine House". TPO "Reserve", SPEECH Residential complex "Wine House". TPO "Reserve", SPEECH
Residential complex "Wine House". Plan of the typical floor. TPO "Reserve", SPEECH
Residential complex "Wine House". TPO "Reserve", SPEECH
Residential complex "Wine House". Master plan. TPO "Reserve", SPEECH
Residential complex "Wine House". TPO "Reserve", SPEECH None
None
"Wine House" residential complex. Location plan. TPO Reserve, SPEECH
None
None
None
None
None
None
None
None
None
None
None
None
None
None
None
None
None
None
None
None
None
None
None
None
"Wine House" residential complex. Master plan. TPO Reserve, SPEECH
None
|