|
A detailed report of the project by "Reserve" Studio that took the second place at the contest for the concept of a residential complex at the Rublevskoe Highway in Moscow.
Contest project of the residential complex at the Rublevskoe Highway © "Reserve" Studio
At this point, we will remind you that the contest for the best project of a residential complex that will be built in Moscow at the crossing of the Rublevskoe Highway and the Yartsevskaya Street, was organized by "PIK" Group and Moskomarkhitektura at the end of last year. Today we are featuring the work by "Reserve" Studio that won silver.
As Vladimir Plotkin reminisces, he agreed to take part in this contest, first of all because of this particular land site itself. The architect lives nearby himself, and he knows this district very well. The "sag" in the town-planning tissue at the crossing of the Rublevskoe Highway and the Yartsevskaya Street, has for a long time been a "pain in the head" for him, and he readily responded to the opportunity to rethink this situation and propose a solution of his own for the problem that has long since become of interest to him. Furthermore, once the architects had the specifications on their hands, the solution of the future complex suggested itself. The hand that was holding the pencil drew the sketch before the architect was through reading the specs. And - this spontaneous solution turned out so apt and fitting that the composition and planning idea was never once changed ever since - it was only the program and the facades that got additional treatment.
 Contest project of the residential complex at the Rublevskoe Highway © "Reserve" Studio
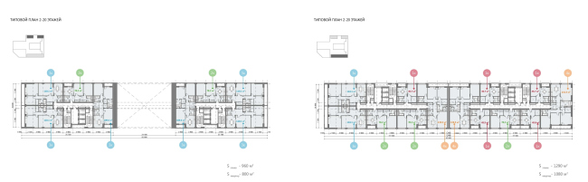
The authors proceeded from the presupposition that the complex should look completely different from the cars moving down the Rublevskoe Highway and the Yartsevskaya Street. Both housing fronts of the Rublevskoe Highway are rather dense and at the same time rather chaotically arranged - so what the architects wanted to do was offset these continuous chains of houses with an imposing volume that would be visibly present in the panorama of the highway and would intrigue those driving by. The Yartsevskaya Street is quite a different story. It runs at a lower height and quickly comes down to the district of Mnevniky whose panorama can boast a lot of "air". Consequently, what suggested itself to be used there was thin slender verticals that would not introduce any radical changes to the existing picture. And this is how Vladimir Plotkin complex was ultimately formed: it consists of two 40-floor double-section slabs of the residential buildings that are oriented perpendicular to the Rublevskoe Highway. Inside each one of them, the architects make a 19-floor cutout in such a way that the slabs turn into the Cyrillic letters "Ï" - one of them rests on the stylobate and becomes a portal of sorts, while the other, on the other hand, stands with its strokes turned upwards, providing room for the extra public space below. Such "reverse mirror" solution gives this generally laconic composition dynamics, dramatic silhouette, and the desirable "transparency".
 Contest project of the residential complex at the Rublevskoe Highway © "Reserve" Studio
This solution provides a number of other indisputable benefits. First of all, it helped the architects to minimize the number of apartments whose windows overlook the noisy Rublevskoe Highway. It also allowed the architects to get rid of the ineffective corner sections, as well as to minimize the number of staircase/elevator blocks, which, for the economy-class housing (and apartments of this particular class will be built here) is critical. And, finally, it was all about the purely compositional aspect. Across the Yartsevskaya Street, there is a very tall, and, in all senses of the term, a very "big-sized" residential house, the sheer mass of which is hard to ignore: flanking the site with two slender slabs, the architects visually offset this volume, creating a sort of propylaeum of the Yartsevskaya Street, at the same time turning onto the Rublevskoe Highway the "windows" that are hard to overlook.
Contest project of the residential complex at the Rublevskoe Highway © "Reserve" Studio
The complex also gets visual lightness at the expense of the elongated two-story volume that is inscribed between the side walls of the buildings on the Rublevskoe Highway side. Having a depth of one section, it is fully glazed, which not only helps to support the street front but also make it more penetrable and friendly-looking. The functions are selected here accordingly: it is planned that here there will be the public and shopping territories that would serve the city outside. And it is this dramatic glass "latch" that closes up the yard territory, separates it from the pedestrian flows of the Rublevskoe Highway and works as the noise screen of sorts.
Contest project of the residential complex at the Rublevskoe Highway © "Reserve" Studio
The rest of the stylobate that in fact occupies the whole site houses the parking garages, while on its roof the architects create a green courtyard meant for the local people. This seemingly standard architectural element gets saturated with as many as possible various functions: there are sports grounds (on the roof of the visitor parking garage, a shady garden (for planting large trees it is planned to set up real soil, sacrificing some of the car stalls), and children's playgrounds. Within the scope of a single landscape system, the architects manage to create a subsystem of diverse public territories that includes even a small but classy creek. And the landscaping of the roof in the eastern part of the complex (the one that is the horizontal stroke of the letter "Ï" turned upside down) will allow for an extra open-air lounge area at the height of the 21st floor.
Contest project of the residential complex at the Rublevskoe Highway © "Reserve" Studio
Contest project of the residential complex at the Rublevskoe Highway © "Reserve" Studio
The architects also came up with several options of the facade design that are hugely different from one another. One of them is based on the use of large-stroked "graphics" formed by the diagonal that appears at the expense of the juxtaposition of horizontal and vertical partitions; in the second case each of the slabs is conditionally divided into two parts, one of which the architects cover with fractal pattern, and the other - with small "pixels".
Contest project of the residential complex at the Rublevskoe Highway © "Reserve" Studio
Contest project of the residential complex at the Rublevskoe Highway © "Reserve" Studio
Yet another two options are based on the active use of color. The more radical solution provides for the use of red hue that the architects paint both the side walls of the buildings, and most of the partitions, while the more reserved solution is based on the alternation of yellow and white surfaces. As Vladimir Plotkin himself confesses, the authors could never make up their minds as to which one of these facades was the best, so they submitted to the judging panel all the four options. And one cannot blame the architects for that, really: the sculptural form that they proposed is so self-sufficient that virtually any coating pattern will enhance its expressiveness.
Contest project of the residential complex at the Rublevskoe Highway © "Reserve" Studio
Contest project of the residential complex at the Rublevskoe Highway © "Reserve" Studio
Contest project of the residential complex at the Rublevskoe Highway © "Reserve" Studio
Contest project of the residential complex at the Rublevskoe Highway © "Reserve" Studio
Contest project of the residential complex at the Rublevskoe Highway © "Reserve" Studio
Contest project of the residential complex at the Rublevskoe Highway © "Reserve" Studio
Contest project of the residential complex at the Rublevskoe Highway © "Reserve" Studio
Contest project of the residential complex at the Rublevskoe Highway © "Reserve" Studio
Contest project of the residential complex at the Rublevskoe Highway © "Reserve" Studio
Contest project of the residential complex at the Rublevskoe Highway © "Reserve" Studio
Contest project of the residential complex at the Rublevskoe Highway © "Reserve" Studio
Contest project of the residential complex at the Rublevskoe Highway © "Reserve" Studio
Contest project of the residential complex at the Rublevskoe Highway © "Reserve" Studio
Contest project of the residential complex at the Rublevskoe Highway © "Reserve" Studio
Contest project of the residential complex at the Rublevskoe Highway © "Reserve" Studio
Contest project of the residential complex at the Rublevskoe Highway © "Reserve" Studio
Contest project of the residential complex at the Rublevskoe Highway © "Reserve" Studio
Contest project of the residential complex at the Rublevskoe Highway © "Reserve" Studio
Contest project of the residential complex at the Rublevskoe Highway © "Reserve" Studio
Contest project of the residential complex at the Rublevskoe Highway © "Reserve" Studio None
None
None
None
None
None
None
None
None
None
None
None
None
None
None
None
None
None
None
None
None
None
None
None
None
None
None
None
None
None
|