|
ADM Studio developed a project of an office center of the Nakhimovsky Avenue in Moscow.
Office center at the Nakhimovsky Avenue © ADM
The new office center will be built in the vicinity of "Nakhimovsky Prospect" Metro station, between the Varshavskoe and Kashirskoe highways. However, with all its highly developed transport infrastructure, this area can hardly be considered attractive. Presently, it is little shy of a junkyard: piles of makeshift garages, broken asphalt, occasional unkempt trees and piles of junk welcome the passengers getting off the subway trains here. The only valuable piece of architecture that one can find here is perhaps the building of the College of Economy and Law, located along the Nakhimovsky Avenue. On its right, upon the project of SPEECH Bureau, a large business center is being built, consisting of three semicircular glass towers.
Office center at the Nakhimovsky Avenue. Location Plan © ADM
Office center at the Nakhimovsky Avenue. View from the Sivashskaya Street © ADM
In this respect, the new complex occupies a less advantageous position: it is ousted inside of the avenue and it will get but one driveway - from the side of the Odesskaya and the Sivashskaya street along the narrow passageway amidst privately owned garages. The authors of the project could not improve this situation in any way: the garages were built here on lawful grounds, and the only intervention that was possible here was renewing the asphalt. But - ADM would not have been ADM had they not pushed all the limits to provide for this site maximally diverse and interesting landscaping solutions. So it comes as no surprise that the office volume as such occupies but a small (and rather narrow, too) fragment of the he site, while on the main territory, according to the architects, a park will be made.
Office center at the Nakhimovsky Avenue. Driving and pedestrian traffic plan © ADM
Designing the standard-plan office building (the floor of free planning and the central communication nucleus), the architects paid special attention to the outer appearance and plastics of its facades. What the authors of the project did was divide the conditional parallelepiped into two equal parts that they shifted in respect to one another whittling away the straight corners of each one of them, after which the volume immediately took on softer features that imperceptibly echo the arches of the buildings of another business center that is under construction nearby. For finishing the facades, the architects chose glass and terra-cotta panels with a wavy pattern. The latter not only sets the strict rhythm but, by outstanding beyond the glazing surface, adds to the facades interesting depth and multidimensionality. This effect is strengthened thanks to the fact that the panels differ in their width and their relief pattern.
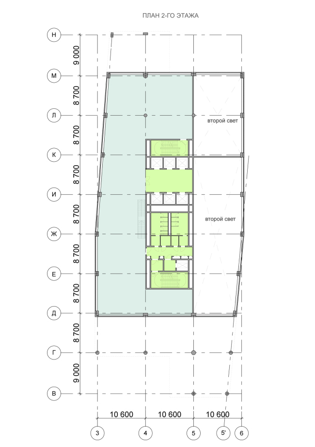
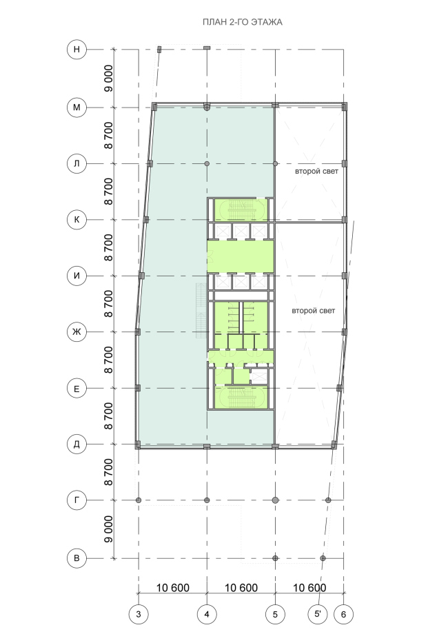
 Office center at the Nakhimovsky Avenue. Plan of the typical floor © ADM
Office center at the Nakhimovsky Avenue. © ADM
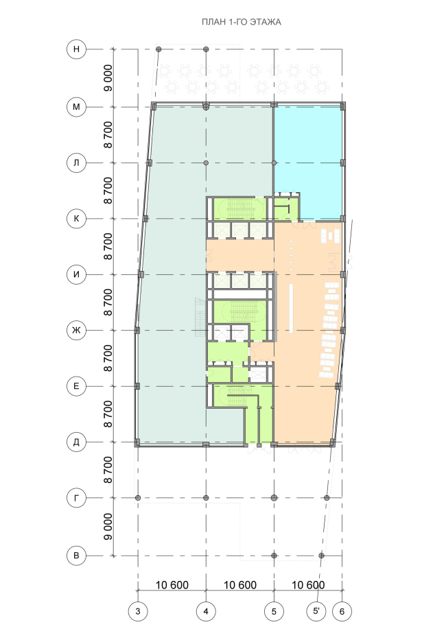
Thanks to the shift of the volumes on the levels of the first and second floors both side walls of the complex got cantilever protrusions resting on a row of slender round columns. It is here that the entrances to the building are organized. From the direction of the college and the Nakhimovsky Avenue, from where the most active pedestrian flow will come, the first floor of the complex will be given to a restaurant. In front of the restaurant the architects are planning to make a small public square, framed by a punctured line of concrete tubs with green plants. In the warm time of the year it will be possible to set up a summer cafe here. As for the central entrance, it is situated in the opposite side wall that is raised about three meters above the natural hill. This part of the building is turned to the Sivashskaya Street, from where the driving access to the territory of the complex will be provided.
Office center at the Nakhimovsky Avenue. View from the Nakhimovsky Avenue © ADM
Office center at the Nakhimovsky Avenue. © ADM
Office center at the Nakhimovsky Avenue. © ADM
Totally, the building has in it 14 floors, the technical 15th floor being shifted deeper inside in respect to the main volume. The two underground floors are occupied by the parking garage that is accessed by the direct driving route from the direction of the hill, while the bottom floors are given to the public functions - a spacious double-height lobby and a restaurant. Higher up, offices are situated. Andrew Romanov stresses that the building is strictly verified by the ratio of the area of the floor, the proportions of the nucleus, and the overall height if the building.
Still, even with all the immaculate accuracy of the contents and the expressiveness of the outward appearance, one could hardly appreciate all the benefits of the complex amidst the city environment that has been forming around the site for decades. The authors tried to change this situation as well - first of all, at the expense of their work with the terrain. The existing height difference was used by ADM for creating a most diverse and picturesque landscape: the trees come close to the road and fill the spaces between the loops of the serpentinous pedestrian road that has been "punctured through" with a set of steep staircases, while the tall grass make the landscape akin to the wild one. The minimalist design of the street lights scattered around the slope makes their presence almost ethereal. In other words, the architects are planning to surround the complex with, though small-sized, but still self-sufficient natural environment, comfortable and safe to be in, that, according to the architects' plans, will make the visitors forget the unkempt piece of the city they've just seen.
 Office center at the Nakhimovsky Avenue. Facade design © ADM
What is interesting is the fact that that the upper landing around the complex has as much greenery on it as the slope does. Arranged in a row, the fluffy treetops follow the right border of the site and further in between the complex and the college, turning into a green fence of sorts. A second line is presented by a barcode of multicolored flowerbeds, green plants, and street furniture. On the left, a car park is provided. However, even the marks of the car stalls get interrupted by flowerbeds, little trees, and a fully-fledged green lawn.
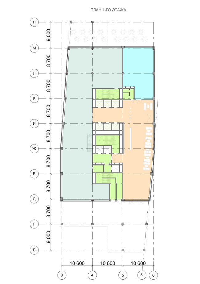
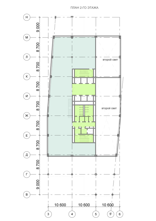
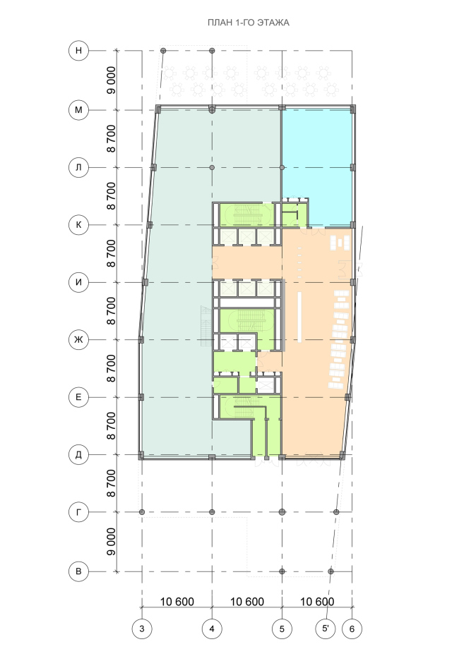
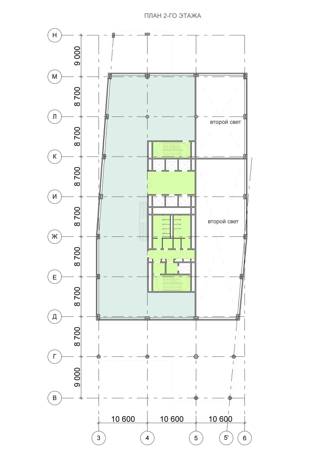
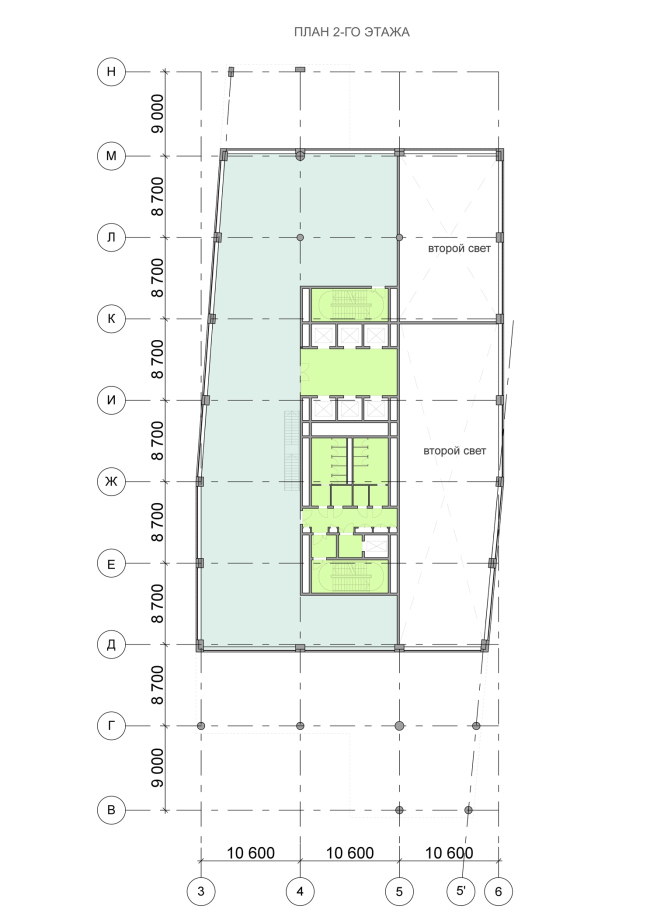
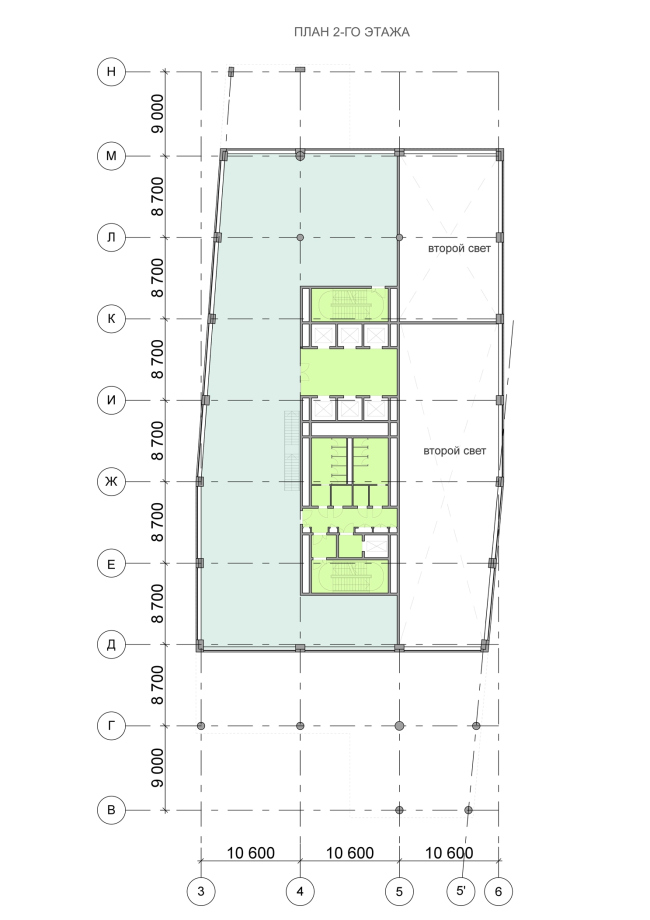
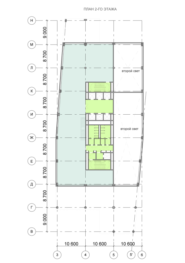
Office center at the Nakhimovsky Avenue. Master plan © ADM Office center at the Nakhimovsky Avenue. Section view © ADM Office center at the Nakhimovsky Avenue. Section view © ADM Office center at the Nakhimovsky Avenue. Plan of the second floor © ADM Office center at the Nakhimovsky Avenue. Plan of the first floor © ADM Office center at the Nakhimovsky Avenue. Plan of the first floor © ADM Office center at the Nakhimovsky Avenue. Plan of the second floor © ADM None
None
None
None
None
None
None
None
None
None
None
None
None
None
None
None
None
|