|
A detailed story of a housing project on the Rublevskoye Highway, with which "Sergey Skuratov ARCHITECTS" won a closed architectural tender.
Concept of the residential complex at the Rublevskoye Highway © "Sergey Skuratov ARCHITECTS"
The contest for the best project of a residential complex that is planned to be built in Moscow at the crossing of the Rublevskoye Highway and the Yartsevskaya Street was organized by "PIK" Group and Moskomarkhitektura in the fall of last year. Announced on the threshold of the winter holidays, its results were already covered by Archi.ru. In this issue we will share in more detail about Sergey Skuratov project whose solution was unanimously voted to be the best by the judging panel.
Concept of the residential complex at the Rublevskoye Highway © "Sergey Skuratov ARCHITECTS"
As the author reminisces, the project included two ultimate priorities: highlighting the town-planning importance of the land site and creating a new centerpiece of this area. The thing is that the crossing of the Rublevskoye Highway and the Yartsevskaya street is a very high point (this is the crest of the Krylatsky Hill) and it is perfectly viewable from the capital's even most remote places - but the developers that already tried their hand at this place, least of all concerned themselves with their town-planning responsibility. In spite of the proverbial expensiveness of the newly-built houses on the Rublevskoye Highway, their appearance leaves one at best unimpressed, if not scared by their height and thickness. Actually, this was the reason why Moskomarkhitektura launched this architectural contest: the land site that faces the crossroads is virtually the last vacant spot here that, thanks to its front position, can still be capable of "rearranging" the haphazardly-forming urban environment.
 Concept of the residential complex at the Rublevskoye Highway. Compositional options © "Sergey Skuratov ARCHITECTS"
Concept of the residential complex at the Rublevskoye Highway. Compositional options © "Sergey Skuratov ARCHITECTS"
Concept of the residential complex at the Rublevskoye Highway. Compositional options © "Sergey Skuratov ARCHITECTS"
Totally, "Sergey Skuratov ARCHITECTS" developed over a dozen options of the town-planning solutions of the future complex, consequently filling the almost rectangular site sometimes with "slab" houses, sometimes with a "megastructure" screen-house, and sometimes with various towers. The idea that it was towers that would best suit this place, came to the architects' minds, strictly speaking, at an early stage: the exceptional observability of this site dictated the transparent and silhouette-based solutions – but their quantity and positions were the subject of a long discussion. The numerous models show that the high-rises would many times change their shape and move around the site. The studio even came up with an option when the towers were connected at the bottom by a Y-shaped stylobate with its "bird" facing the Rublevskoye Highway. From the remote points, however, they would overlap with one another, and the contest was won by a composition of four volumes of different height, spaced out along the perimeter of the conditional rectangle, and positioned closer to the midpoints of each of its sides.
 Concept of the residential complex at the Rublevskoye Highway. The final composition of the volumes © "Sergey Skuratov ARCHITECTS"
Concept of the residential complex at the Rublevskoye Highway. © "Sergey Skuratov ARCHITECTS"
The tallest tower (40 floors) is the one that faces the Yartsevskaya Street. On the other side of the street, there is already a high-rise in the shape of a stepped arched ridge. The Skuratov residential complex picks up the "red line" set by this building - but its pristine thin verticals offset the latter's excessive weight, setting a new frame of reference in the panorama of this neighborhood. The tower that borders on the Rublevskoye Highway relief road, and its vis-a-vis located within the site, are of equal height (30 floors), and, in turn, pick up the pattern set by more distant high-rises that close up the perspective of the Yartsevskaya Street on the other side of the highway. And finally, the most northern tower, the farthest from the tunnel, has only 24 floors in it - it serves as a transition element of sorts, one that fixes the relief drop that starts behind the construction site. What is interesting here is the fact that, by opting for the different-height composition, Skuratov virtually violated the specifications that provided for the detailed distribution of useful area over the sections of the complex. "Yes, we deliberately decided to disregard this clause by placing our bet on the dramatic compositional solution that "catches" the chaotic vertical rhythms and empty spaces of the old and new houses, bringing into this town-planning chaos a note of balance and tranquility" - explains the architect. As we already know, the judging board agreed with this reasoning.
 Concept of the residential complex at the Rublevskoye Highway © "Sergey Skuratov ARCHITECTS"
The architectural solution of the towers is simple and dramatic at the same time. Each of the volumes has two "material" and two "penetrable" facades. The former are ceramic surfaces with the "punch-cards" of windows; the latter have on them, above the all-surface glazing, light and clear-cut grid of lamellae that hide the stanza balconies with the outdoor blocks of split-systems. The color palette of the complex consists of but two colors - white and terra-cotta; they alternate from facade to facade in such a way that each house is different from its neighbors. At first glance, the whole idea looks pretty simple: white "punch-card" here, red "punch-card" there (side wall this time) - but is this particular way of alternating the colors that enables the authors to maximally enrich the visual feel of the complex from dirrerent sides.
Concept of the residential complex at the Rublevskoye Highway © "Sergey Skuratov ARCHITECTS"
Concept of the residential complex at the Rublevskoye Highway © "Sergey Skuratov ARCHITECTS"
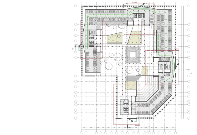
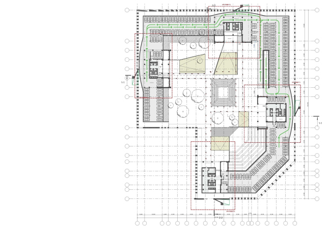
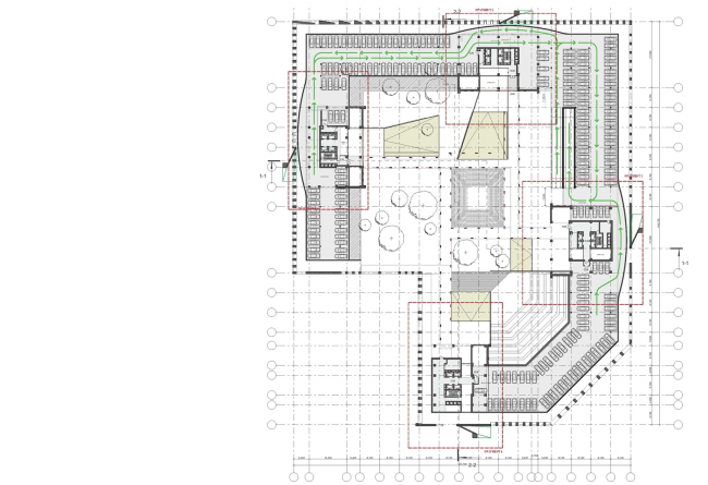
The silhouette is rendered still more dramatic by the caps of the towers - slender as they are, the high-rises grow thinner as they go up becoming more penetrable. Skuratov does not place the living floors under the very roof but, conversely, builds here public terraces framed by a pergola. The most important public area, though, is the three-level stylobate that takes up almost the whole site and comprising all the maintenance and service facilities of the complex. Its outer perimeter houses the area of the shops, offices, banks, and other services, and is marked with the genre-classic "arcade", while in the intersection points of this horizontal with the verticals of the towers the "stone fabric" if the facade gets elegantly bent out marking the entrance lobbies of the living floors.
Concept of the residential complex at the Rublevskoye Highway © "Sergey Skuratov ARCHITECTS"
Concept of the residential complex at the Rublevskoye Highway © "Sergey Skuratov ARCHITECTS"
Generally, turn-ups and bends become the most important finishing touch that completes the architectural image of the complex. And it seems like this technique was prompted by the same immediate context - at this very point, the Yartsevskaya Street plunged down into a tunnel, and its elongated funnel is turned directly to the future complex. A similar deformation takes place not only on the bottom level but on the topmost one as well: the roofs over the public terraces of the towers are visibly sunk inside. On the layouts, the architects even draw tell-tale lifting weight, and Sergey Skuratov adds to it a poetic explanation that once a helicopter landed here and left this huge dent. Because of this, one of the supports of the pergola came out slanted - not really the most eye-catching detail against the background of the entire complex but sure a fair bit of intrigue for a keen observer.
Concept of the residential complex at the Rublevskoye Highway © "Sergey Skuratov ARCHITECTS"
Concept of the residential complex at the Rublevskoye Highway © "Sergey Skuratov ARCHITECTS"
While the stylobate itself is accessible for the general public, its roof is only meant for the people that live in the complex. Upon it, Sergey Skuratov proposed to make a park of a complex terrain and with a whole system of ramps, bridges, and overpasses. Along its perimeter runs a jogging track, from which green slopes come down in a giant amphitheater to the central area with a sports and a playground. What is interesting is the fact that above these venues the architects propose to install awnings and connect them with each house with covered passages which will provide the tenants with an opportunity to go outside in any weather. Of course, the softscape with a natural terrain effect is a costly luxury but it will not pump up the budget of the project: the architects propose to cut the costs at the expense of the original layout of placing the car parks and the maintenance facilities (one underground one above-ground, skillfully hidden under the slopes, instead of the usual expensive construction pits).
 Concept of the residential complex at the Rublevskoye Highway © "Sergey Skuratov ARCHITECTS"
Concept of the residential complex at the Rublevskoye Highway © "Sergey Skuratov ARCHITECTS"
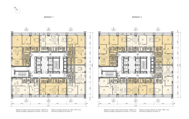
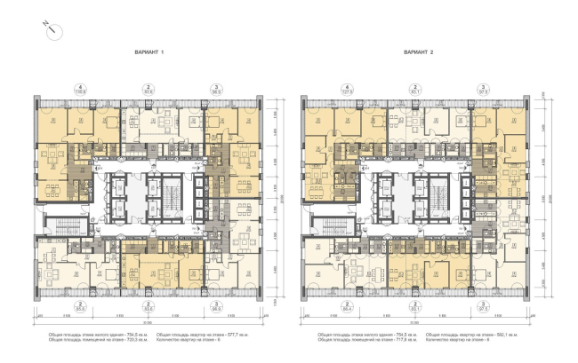
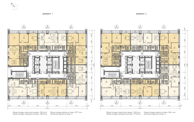
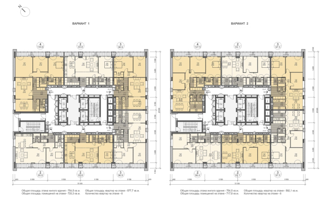
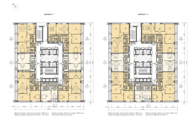
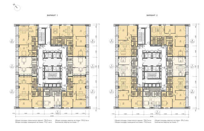
Incidentally, just as rationally the authors of the project approached the task of designing the apartment part of the complex. For example, the wetcore areas of all the apartments are placed along the inside perimeter of the floor, next to the communication nuclei, which will provide the tenants with an opportunity to plan out their apartments to their own liking. The use of "Zerringer" facade system will allow for mounting the facades from the inside to the side edges of the intermediate floors, i.e. without building the trestle and parallel to the construction of the monolith framework, which will also help to cut the time and the cost of the construction. The economic benefits of the project were appraised by the judging panel as highly as the architectural and planning solution of the complex. One can only hope that the future apartment buyers will value these benefits just as highly - namely, the comparative accessibility of these apartments and their stylish up-to-date feel.
 Concept of the residential complex at the Rublevskoye Highway © "Sergey Skuratov ARCHITECTS" Concept of the residential complex at the Rublevskoye Highway © "Sergey Skuratov ARCHITECTS" Concept of the residential complex at the Rublevskoye Highway © "Sergey Skuratov ARCHITECTS" Concept of the residential complex at the Rublevskoye Highway © "Sergey Skuratov ARCHITECTS"
Concept of the residential complex at the Rublevskoye Highway © "Sergey Skuratov ARCHITECTS"
Concept of the residential complex at the Rublevskoye Highway © "Sergey Skuratov ARCHITECTS"
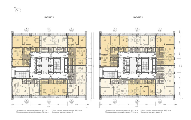
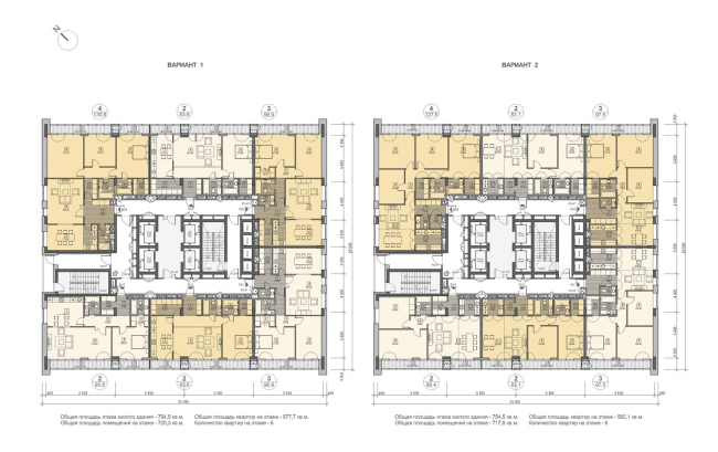
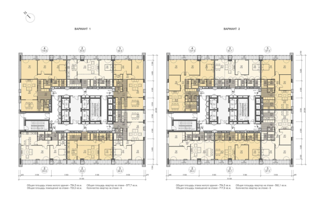
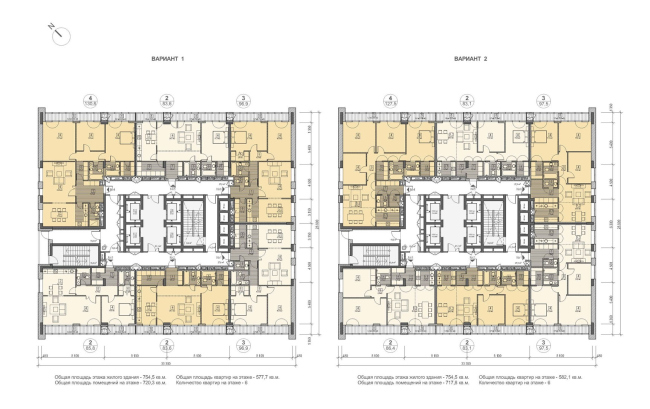
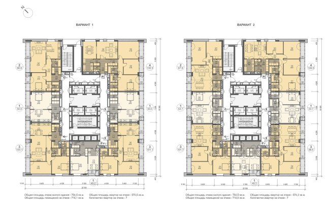
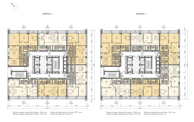
Concept of the residential complex at the Rublevskoye Highway © "Sergey Skuratov ARCHITECTS" Concept of the residential complex at the Rublevskoye Highway © "Sergey Skuratov ARCHITECTS" Concept of the residential complex at the Rublevskoye Highway © "Sergey Skuratov ARCHITECTS" Concept of the residential complex at the Rublevskoye Highway © "Sergey Skuratov ARCHITECTS" Concept of the residential complex at the Rublevskoye Highway © "Sergey Skuratov ARCHITECTS" Concept of the residential complex at the Rublevskoye Highway © "Sergey Skuratov ARCHITECTS" Concept of the residential complex at the Rublevskoye Highway © "Sergey Skuratov ARCHITECTS" Concept of the residential complex at the Rublevskoye Highway © "Sergey Skuratov ARCHITECTS" Concept of the residential complex at the Rublevskoye Highway © "Sergey Skuratov ARCHITECTS" Concept of the residential complex at the Rublevskoye Highway © "Sergey Skuratov ARCHITECTS" Concept of the residential complex at the Rublevskoye Highway © "Sergey Skuratov ARCHITECTS" Concept of the residential complex at the Rublevskoye Highway © "Sergey Skuratov ARCHITECTS" Concept of the residential complex at the Rublevskoye Highway © "Sergey Skuratov ARCHITECTS" Concept of the residential complex at the Rublevskoye Highway. Building 3, plan of the typical floor © "Sergey Skuratov ARCHITECTS"
Concept of the residential complex at the Rublevskoye Highway. Building 2, plan of the typical floor © "Sergey Skuratov ARCHITECTS" Concept of the residential complex at the Rublevskoye Highway. Building 1, plan of the typical floor © "Sergey Skuratov ARCHITECTS" Concept of the residential complex at the Rublevskoye Highway. Sergey Skuratov's sketches © "Sergey Skuratov ARCHITECTS"
Concept of the residential complex at the Rublevskoye Highway. Sergey Skuratov's sketches © "Sergey Skuratov ARCHITECTS" Concept of the residential complex at the Rublevskoye Highway. Sergey Skuratov's sketches © "Sergey Skuratov ARCHITECTS"
None
None
None
None
None
None
None
None
None
None
None
None
None
None
None
None
None
None
None
None
None
None
None
None
None
None
None
None
None
None
None
None
None
None
None
None
None
None
None
None
None
None
None
|