|
The country house that UNK Project designed in the settlement "Zhukovka XXI" became the "visiting card" if the bureau long before it was actually completed. And now that the customers have finally moved in, it has become clear that the "advance" high critical acclaim was more than justified.
This house has a
large area - some 1000
square meters - and, because of its dimensions, as well
as its elongated shape and facing of natural stone, it looks very imposing
indeed - much more than a "cottage". Rather, it is a sculpture, a
piece of refined modernist art inscribed into the landscape.
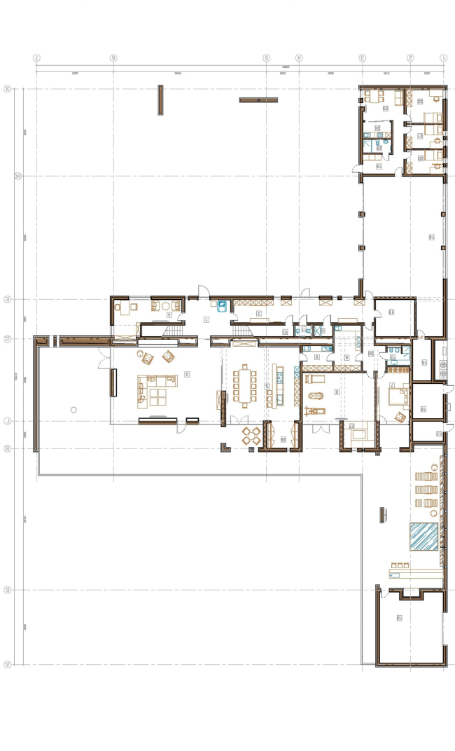
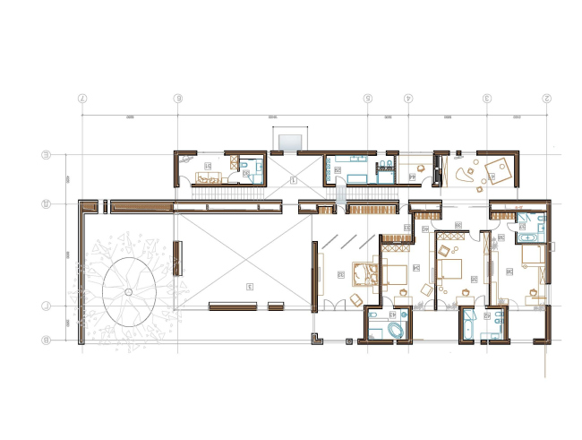
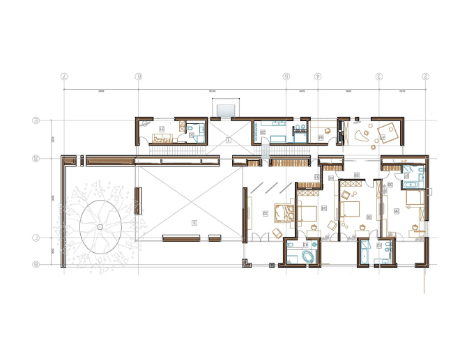
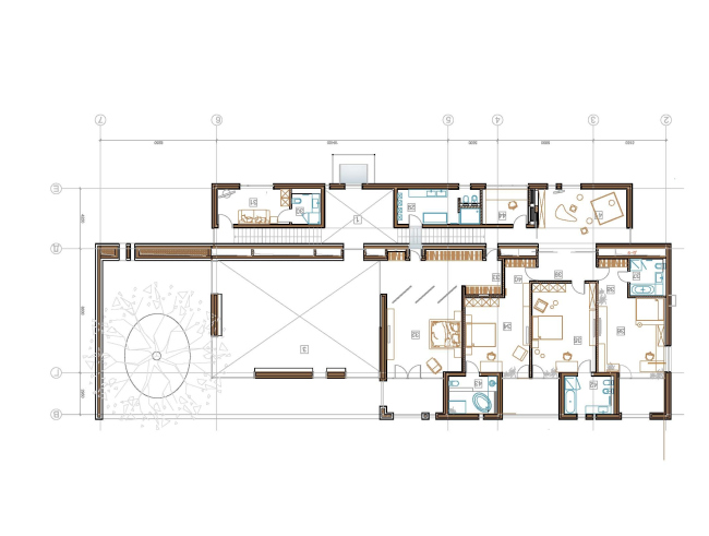
In terms of
composition, things are pretty simple here. The land site had neither
significant height difference nor any particular vegetation and was absolutely
easy to see through. And, because the option of building a tall fence around
the house was never even considered, it was the house itself that was to play
the part of such fence. This explains its extremely elongated shape - the
architects positioned the house across the land site, exactly in the middle of
it, clearly separating the public and private areas. Quite predictably, the
entrance is faced by the premises that are not "afraid" of the
onlookers' eyes, while the backyard is commanded by the windows of the living
room, the dining room, and the bedroom. On this same side the main open-air
veranda is also situated. And, to give the backyard an even more
"private" feel, the architects fence it off with the garage that they
position perpendicular to the main volume. Presently, on the
"entrance" side of the yard, there are only metallic parallelepipeds
- the basis for the future sculptural compositions of lianas.
The customer wanted
a modern house, and the architects felt free to indulge themselves into
building one that is modernist from top to bottom. The blocks - both
residential one and the garage - keep the original parallelepiped shape, and it
is this laconism together with the austere geometry that become the main theme
of this project. In actuality, however, the parallelepipeds are only shells
inside of which a complex "space" intrigue is played out.
Just as they do
with the land site, the architects divide the elongated volume of the house
into two parts: public and private. And, while the bedroom block takes up the
entire wing of the house, rectangular on the plan, the double-height living
room and the dining room take up only half of it. The remaining quarter is the
open-air veranda that is treated as an integral part of the house: it looks as
if the architects "emboss" part of the yard-side facade and fully
glaze the "bent" section, thus rendering the boundary between these
two areas pretty ethereal. Thanks to such a transformation, the building gets a
peculiar "hood" of a kind in which the architects cut a large round
opening. And it is this grand opening that has a tree growing right through it
and that let's the sun rays move around the entire veranda during the day, that
got so much press coverage - over the seven years that the house was under
construction there was hardly a single industry magazine that did not publish
the "coordinate system" developed by UNK. The architects were able to
achieve the effect that it looks as if this house had actually sprung from and
then developed around this tree - even though things were exactly the other way
around: the pin, or, rather, the "pivot", with which the house is
pinned to the land site, appeared after the construction was completed - as the
vertical centerpiece that the composition was in desperate need of, and just as
a "story-telling" element. The crown of the pine tree casts the
picturesque ever-changing shadows on the walls and the floor of the veranda,
while the straight line of the tree trunk is supported by the narrow vertical
windows, with which the architects visually fracture this elongated volume. There
is also a narrow slit directly behind the tree: when sitting on the veranda one
can see through it if somebody has arrived from the side of the road without
being seen himself. 
The facade finish consists of but two materials - glass and
natural stone. The house itself is faced with light-beige travertine, while the
garage is coated with narrow slate tiles, which clearly indicates the hierarchy
of these two objects. The architects think, though, that such a perfect
concordance of the materials would have been impossible to achieve, had it not
been for the background of natural verdure. The vegetation is present here in
all possible shapes and forms - it is the grand-scale lawn, the draping of one
of the gazebo's walls with grapevine, and, ultimately, the architectural
centerpiece of a pine tree. 

In the interiors of
the house, glass and stone are also actively present - but here they share the
scene with wood that softens them and brings into the rooms the necessary
comfort and warmth. The architects designed or selected the furniture to match
the exterior - all the premises are designed in an as laconic way as possible. As
Julius Borisov reminisces, instead of the "frills", traditionally
expected in a country house, the customer was after unconventional and creative
ideas and solutions. Misleadingly simple, this reserved interior design is in
fact full of sophisticated solutions. Suffice it to mention the glass little
bridge that connects the bedrooms and the bathrooms: in order to make it
possible for a person to cross it without embarrassing himself or herself, the
glass partitions are equipped with motion sensors, and, once they are active,
the walls turn from transparent to opaque.
Building this
"contemporary" and "aesthetic" house in every possible
sense of this word, the architects were able to make it really cozy indeed. The
austere geometry and perfect laconism do not scare one away with their cold
perfection but quite the other way around, create all the necessary conditions
for a person to feel at one with the universe. 













None
None
None
None
None
None
None
None
None
None
None
None
None
None
None
None
None
None
None
None
None
|