|
The Klyazma Lake is going to see Totan Kuzembaev build yet another house - this time in the shape of a rectangular portal into which a "honeycomb" of wood and glass is inscribed.
The land site upon
which this house will be built is rather large but is burdened with a whole
bunch of encumbrances, so, when getting down to working on this project, the
architects from the very start had their hands tied. For one, the construction
blueprint, seemingly vast, was in fact less than moderate: the water protection
zone and the communications running through the site rendered the house
construction possible only on a small rectangle of land. And, due to the fact
that the customer asked to build for him a house of more than 1500 square meters
of useful area, the configuration of the volume was pre-defined from the very
start.

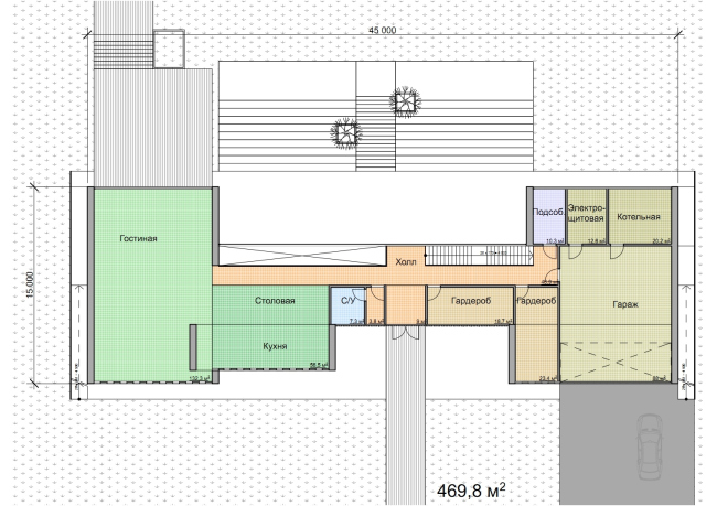
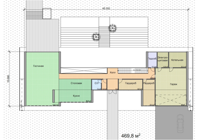
On the plan, the
house presents an elongated rectangle that occupies the allowed construction
spot almost to capacity. As the architect himself reminisces, had he left in
this place a parallelepiped of the required dimensions, this would have easily
yielded the customer the required number of square meters. But... A
straightforward parallelepiped in the reserve of Pirogovo? Or, parallelepiped
and Totan Kuzembaev, for that matter? An alliance like this is really hard to
see in one mind's eye - this is ultimately what architects are for - to create
buildings of a harmonious, yet non-trivial shape and plastic.
Besides the rather
large square footage, the customer had a few other requirements for the future
house. In particular, it was necessary to maximally "space apart" the
"grown-up" and "children" zones and make the whole house as
sunlit as possible. This made the architects use glass as one of the main
facade materials, while the original parallelepiped shape was used to create
two independent blocks tied into a single system. In fact, what Totan Kuzembaev
does is leave only the outer shell of the parallelepiped, into which he
"implants" a multitude of separate volumes. Visually, their
independence is accentuated with the help of developed consoles - the
"cubicles" of the separate premises, three in each wing, are placed
with a perceptible shift to one another - while the space between the blocks is
executed from glass. From the outer "frame", they are also separated
visually - along the inner side walls of the parallelepiped, the architect runs
open-air staircases, one of which provides a direct link between the garage and
the second floor of the house, while the other, conversely, leads to the
basement floor.
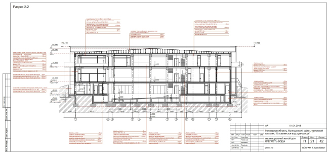
The feeling of the
entire structure being all too "massive" is also subdued by the moat
that surrounds the house, over which the architect throws a few bridges of
varying breadth. The moat also plays quite a down-to-earth part - it provides a
street access to all the premises of the basement floors which will enable the
serving personnel to get to them without having to enter the house. The
accumulation of water in it should be prevented by the roof pitch, while the people
going through it will be protected from the rain by the roof itself - the upper
crossbeam of the frame, though high-positioned, will serve as a safe awning
because of its sheer size.
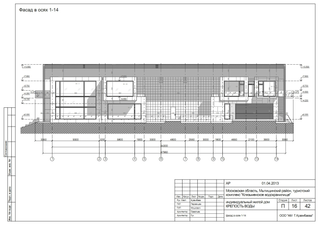
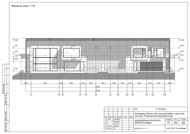
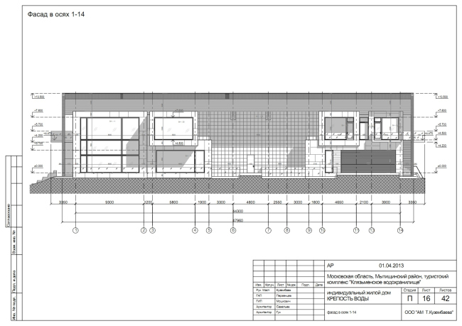
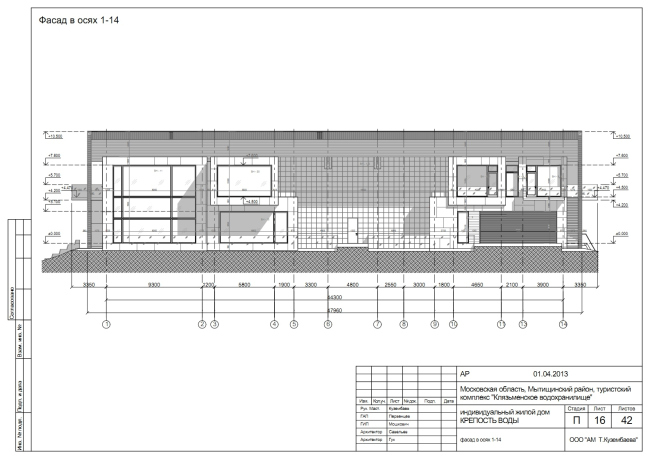
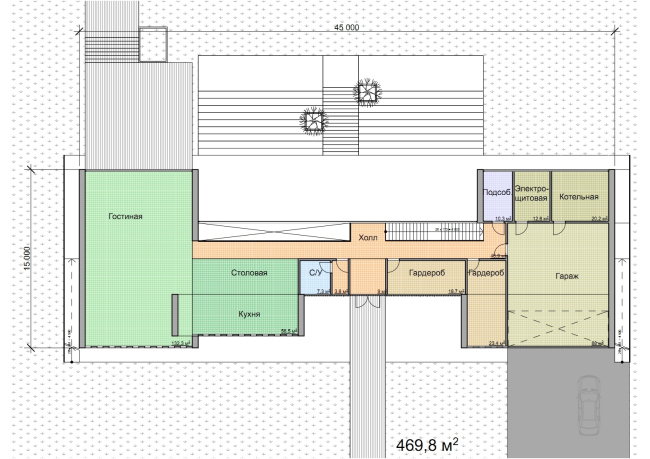
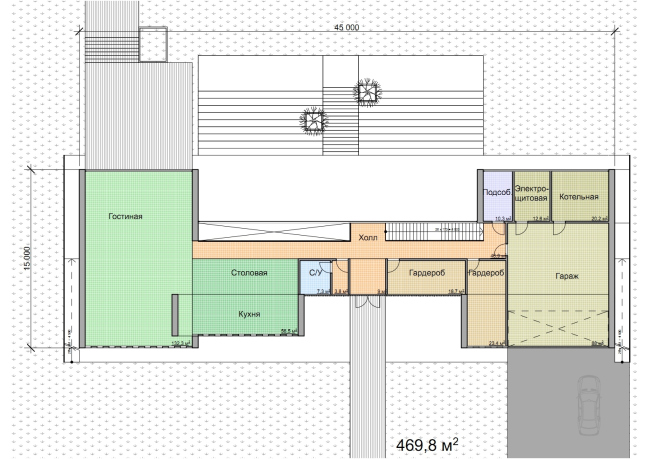
As for the
functional plan of the house, the architect fully meets the customer's
requirement to provide the different generations of one family with as much
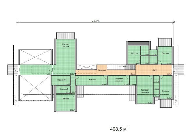
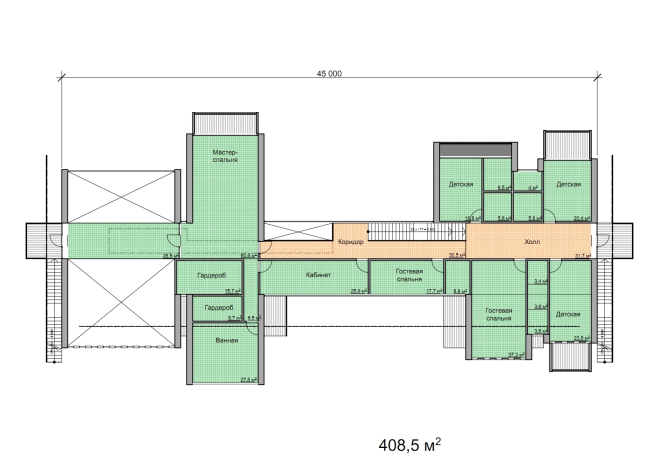
independence as possible. In the left part of the building on the first floor
there are the double-height living room and the kitchen/dining room, on the
second floor - the masters' bedroom with closets and a bathroom; in the right
part - a two-car garage and the maintenance rooms, above them - guest bedrooms
and the masters' studies.
Initially, Totan
Kuzembaev planned to provide all the bedrooms with panoramic glass windows,
inserting a piece of stained glass into each of the cubicles - but the fair
proximity to the highway that the house commands en face, made the architect
find a more subtle facing solution for the main facade. The stained glass
pieces ultimately consist of glass and wooden squares alternating in a
staggered order, picking up and developing, on the micro-level, the theme of
the same-looking wooden consoles. And in the central art that is fully glazed,
the part of "black squares" is played by the opaque glass pieces that
create, on the one hand, let inside the house as much light as possible, and,
in the other hand, securely protect it from the prying eyes.
At the opposite
side of the house that commands the lake view, the situation is quite different
- here the transparent surfaces definitely prevail. Encased in exquisite wooden
frames, they reflect the surrounding landscape making the house look like a
gallery of ever-changing pictures of living nature. What is peculiar here is
the fact that the architect, at the expense of the height difference, was able
to fully expose the basement floor here - in the summertime its swimming pool
turns into an open-air one. Rooted in the landscape, the house continues in a
while series of open-air terraces cascading down to the water, and their
connecting stairways without any railings whatsoever.
One should say here
that fences or railings of any kind are pretty much non-existent in this house.
Of course, on the balconies of the second floor, on the porch, and above the
moat, there are protective structures but they all are executed from
heat-strengthened glass that the architect does not even frame with anything.
The same transparent casing of the very same kind is used to cover the garage -
its glass surfaces are barely discernible against the background of its wooden
lath walls. Introducing such a huge quantity of glass into the project, and
also, whenever possible, substituting the blind wooden surfaces with lathwork,
Totan Kuzembaev not only achieves the effect of incredible visual lightness of
this not-so-small house but also the unity of this complex composition. So it
is for a good reason that the architect himself calls this house a
"honeycomb" - assembled from separate "cells" it looks
whole and self-sufficient. 




None
None
None
None
None
None
None
None
None
None
None
|