|
"T+T Architects" took part in the tender for the development of the design concept of the second construction stage of "Alkon" business center. The main decorating element of the public areas of this complex, according to the architects' plan, is a parametric lighting structure.

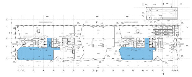
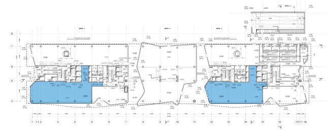
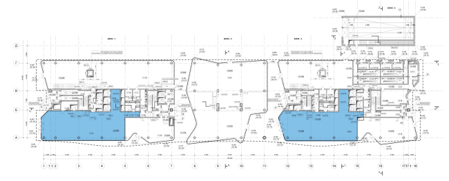
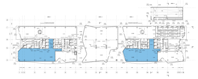
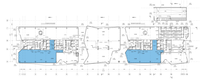
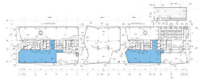
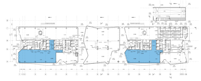
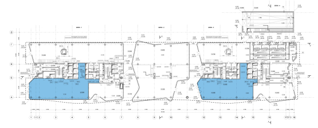
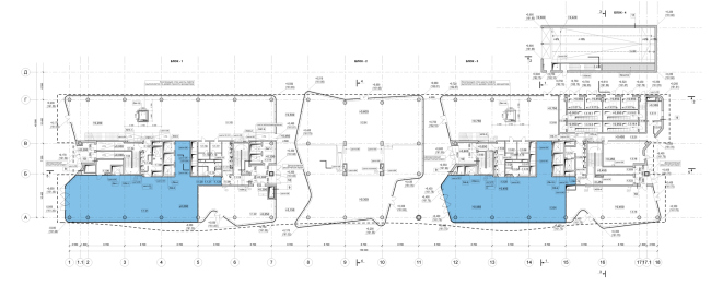
The subject of the competitive bid was the public
areas of "Alkon" business center located on the Leningrad Avenue in the neighborhood of
"Sokol" metro station - a territory of some 700 square meters
that in fact is only separated from the noisy highway by its fully-glazed
facade. On the one hand, this is all ultra-contemporary and fashionable-looking
but, on the other hand, such a constant visual connection with the city
presented a serious challenge - "T+T Architects" were not only
looking to avoid the "aquarium" effect but also to counterbalance the
overloaded highway with an interior design that looks interesting both from a
speeding car and from a traffic jam.
"This area also had its evident strong points,
and we at once decided to make them work for the project's benefit - for
example, its dimensions or the presence of substantial-looking surfaces that
gave us a lot of opportunities for the grand-scale plastic work, and for
creating the thought-through details on the line of human vision - shares the
leader of "T+T Architects" Sergey Trukhanov - Generally speaking, it
was this particular combination of the original givens - the elongated
configuration of the premises, the glazed facade, and the blind "background"
walls that prompted us the idea of creating a space that is light, full of air,
and that is dominated by one grand-scale centerpiece that attracts everybody's
attention". 
Before getting down to creating such an indoor
"anchor", the architects most carefully thought out the functional
plan of the future central lobby. Proceeding from the assumption that a lobby
must be a comfortable area to be in both for the employees of the companies
that rent offices here and the numerous visitors of the center, the architects
of the project singled out a few different zones in it. At the entrance, the
visitors find the so-called "service area" - compactly placed ATM's
and payment terminals, while the central role is naturally given to the
reception counter that the architects give an ostentatiously elongated shape
that traces the line of the main facade. 
Thanks to such a solution, the counter in fact splits
the lobby into two major parts - the main and the transit one. The first one
includes a small expo area, as well as a waiting and a meeting area that
consists of separate cozy clusters grouped along a translucent wall; the other
part is in fact a corridor, only one that has no clear boundaries, providing
access to the underground parking garage, and to the elevator lobbies. The side
surfaces of the reception counter are navigating panels that help the visitors
to find their bearings in the building of the business center and
simultaneously give this element a more monumental look, letting it unabashedly
dominate over the lobby area. 

The architects propose to execute the reception
counter from the natural Italian granite of a light-beige color, achieving, by
the high-quality polishing and calibration of this material, a seamless finish
of its vertical and horizontal surfaces. As for the lobby, its walls are also
going to be light-colored, finished with slabs of imitated stone texture. The
sterility of the white color is meant to be diluted by the "accent"
materials - copper and wood, as well as stainless steel, from which the
fittings and the floor moldings are made. 
Placing their bets on the simplicity and laconism of
the interior palette of the central lobby, the architects in fact treated it as
a background. "It is a background for the parametric lighting system, be
that a crystalline grid or a wave that this spacious and light area turns into
the main hero of the play" - comments the head of the concept department
of "T+T Architects" Polina Voevodina. 
Settling on the lights as the "visiting
card" of the entire project, "T+T Architects" were looking to
find for them a shape that is meaningful yet reserved. After a long
deliberation they settled on the image of a wave - reasonably abstract and at
the same time clearly echoing the plastic of the main facade that looks like it
is wrapped in broad horizontal stripes of glass and concrete. The wave of light
is to run through all the public areas of the first floor, the architects
dividing it into two, though intertwining, yet still separate flows one of
which serves to light the transit zone, and the other to serve the main one
respectively. The project provides for two options of execution of the wave:
this can be a "cloud" wave consisting of thin "rays" of
photodiodes running parallel to one another, or a "grid" wave in
which these "rays" form crystal-like clutches built on the principle
of parametric design. 
In both options each single light can be individually
controlled which will allow for a great multitude of possible lighting
scenarios for the wave of light created by "T+T Architects": it can
change its intensity depending on the time of the day as well as the weather
outside, backlight separate areas when people are there, create a glittering
effect and so on. And, to make the cost sheet of the project more humane, the
architects propose a third option as well -using as the basic element of the
"wave", instead of the lamps, a figure made of organic glass or
plastic. Thanks to their concave shape, together these figures form the same же elegant trail waving above the lobby, while the necessary effect is
created by means of backlighting the entire structure from all sides with
spotlights. Accidentally, this solution, besides its less expensive cost, has
extra benefits such as an interesting play of shades and reflections. If we add
a projector here as well, the "wave" will turn into a multifunctional
media object. 





None
None
None
None
None
None
None
None
None
None
None
None
None
None
|