|
By the project of "Architecturium" Studio, on the Mashkinskoe Highway, the construction of "Novogorsk Olympic Village" is underway. This year, the checkpoint building and the four-story residential house, located on the front line of the settlement, have been put into operation.
The project of "Novogorsk Olympic Village"
was launched back in 2009, and it is now entering its final phase. The
townhouses have already been built, the people have moved in, and underway is
the construction of the multifunctional complex with a restaurant, a school,
and the training center of the Olympic team of Russia in rhythmic gymnastics.
Complete is the "entrance gate" of the settlement - the checkpoint
building - as well as the four-story residential building located nearby. These
two volumes, due to their situation, promise to become the "visiting
card" of Novogorsk, so it stands to reason that the architects paid
particular attention to their design. 
The project of the building that, besides the security
office, is going to house the operation services and the sales office underwent
numerous changes in the course of the development the image of the
"Olympic Village". For a long time, the architects treated it as an
integral part of the multifunctional complex - formally, these volumes were
separated by the road that links Novogorsk to the Mashkinskoe Highway but the authors used
their proximity to design an imposing arch between them. Later on, the building
of the multifunctional complex grew considerably larger in size, and the arch
that now was only half of its height started looking strange, so the architects
had to give it up. Vladimir Binderman's team, however, wanted to keep some
visual unity between these two structures, and this is why the checkpoint building,
while formally breaking away from its "big brother", develops the
same image and plastic theme that was set by the main public building of the
"Olympic village". And, while this large volume gets on top of it a
wave-shaped roof that is meant to imitate the Olympic ribbon, the compact
checkpoint becomes its tail or its shred that for a split second bounced over
to this side with a wave of the gymnast's hand. Hence the "tell-tale"
shape of this small-sized construction: the wave of the neighboring roof wears
down to nil here, cascading down to the ground. 
Checkpoint building in the settlement of "Novogorsk Olympic Village"

Checkpoint building in the settlement of "Novogorsk Olympic Village" It is the roof that plays the most important part
here: the building has a prominent marquee that proudly towers over the fully
glazed sidewall overlooking the entrance and the multifunctional complex, while
on the opposite side the roof makes a dramatic bend and turns into a
fully-fledged facade. The expressiveness of this "gesture" is
enhanced manifold by the rather tangible thickness of the roof chosen by the
architects, its dark-chocolate color, as well as its seam. Plus - the presence
of a few grown trees on the land site made the architects cut a large
rectangular opening in the marquee. "In spite of the fact that it made the
whole construction more complicated, this solution was still of the win-win
kind: thanks to it, we were able to keep the trees intact, and take the
excessive weight off the roof" - Vladimir Binderman explains. Out of the
same conservation reasons, the architects raised the building a little above
the ground by placing it on a slab of reinforced concrete with low-rise
supports; the space underneath them filled with gravel. 
Checkpoint building in the settlement of "Novogorsk Olympic Village"

Checkpoint building in the settlement of "Novogorsk Olympic Village" On the layout, this volume has an arched shape with
its inner radius turned in the direction of the road. Apart from its sloping
"back", created by the bent end of the roof, all of its other facades
are almost completely glazed. However, while the "entrance" side-wall
is left completely transparent, the longer facades are protected by slanting
pergolas. These elements connect the base of the slab with the roof,
simultaneously serving as a screen that conceals the outdoor air conditioners
and at the same time singles out a small gallery that unites the different
entrances to the building. 
Checkpoint building in the settlement of "Novogorsk Olympic Village" 
Checkpoint building in the settlement of "Novogorsk Olympic Village"
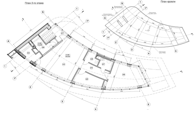
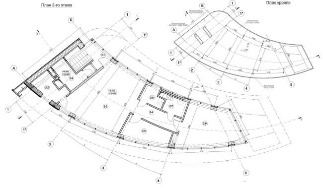
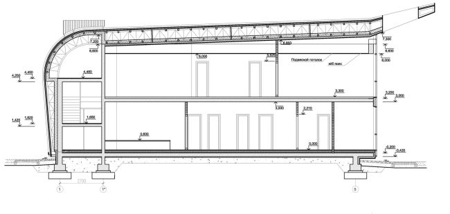
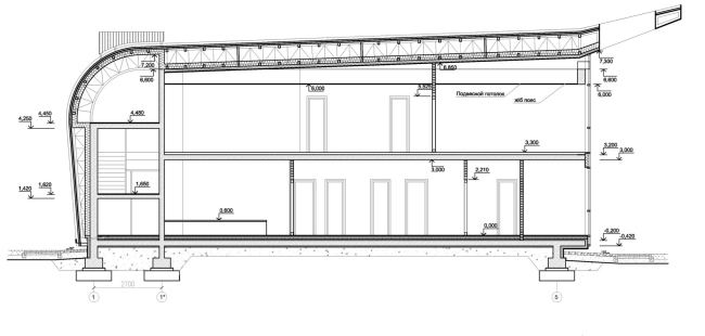
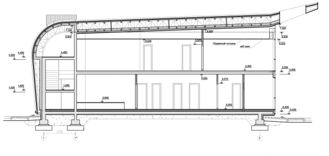
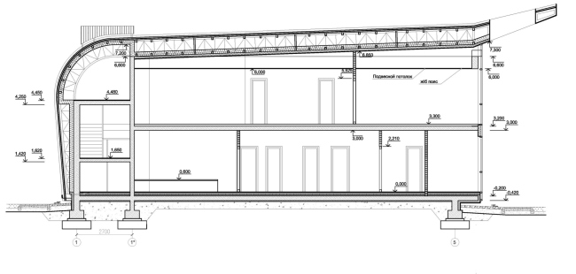
The plan of the residential house is also based on the
idea of the arch that follows the bend of the Mashkinskoe Highway that makes a rather
sharp turn here. The architects did not want to replicate the configuration of
the red line verbatim, though, and this is why they trace it not with a
semicircular facade but with numerous dentils. In other words, the architects
built a gearwheel house, and not a joint-hinge house. Still, the indoor layout
of this building does bring up the "hinge" associations: its two
smoothly bent residential wings are linked to the central "core" of
the communication nucleus with two stairwells, an entrance lobby, and a freight
elevator. 
Residential apartment building in the settlement of "Novogorsk Olympic Village"
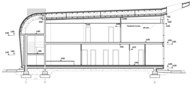
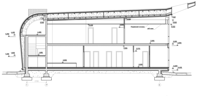
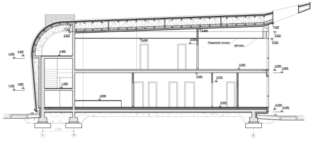
The fact that the house is situated at the turn of the
highway left its mark not only on the compositional solution. In order to
prevent this building from rendering this section of the highway even blinder
to the drivers that it already was, the architects raised it on the supporting
pillars one floor high. So it made perfect sense that the commissioner wanted
to use the resulting space for setting up a parking garage here: initially this
idea was in the project but when getting the approvals was already in full
swing, new construction regulations were issued that forebode to place the
open-air car park under a residential house. The car park version was not
approved, even in spite of the presence of the fire marquee and the technical
floor above it, so this "rising" really played into the hands of the
highway drivers. Come to think of it, the building benefited from it too: now
being in fact six floors high, it looks more imposing and proportional,
dominating over the fence and providing secure protection from the highway
noise to the townhouses behind it. 
Residential apartment building in the settlement of "Novogorsk Olympic Village"
The fact that the house is located too close to the
highway is compensated by the beautiful views of the levee on the Skhodnya River that flows on the other side of
the highway. The water area that, by a stroke of luck, is the spot where the
sun sets every evening is commanded by all the apartments of the house, while
the townhouses are commanded by the corridors of the gallery type. The
exception is the side-wall sections that, according to the project, house
apartments of a greater square footage and thus having a double-sided
orientation. The fanged plastic of the main facade is enhanced by the bay
windows coated with dark wood - they serve as a substitute for the balconies,
which, according to the authors, guarantees the preservation of the facade in
its original state. For these same reasons, incidentally, the architects were
able to persuade the commissioner to install the outdoor air-conditioner blocks
on the roof - a special channel is connected to each and every apartment which
helps avoid the appearance of mismatching boxes under every window. 
Residential apartment building in the settlement of "Novogorsk Olympic Village"
In its present state, this house sports a genuinely
noble look: the supports and the technical floor are coated in light-beige
stucco, the three residential floors above it are faced with dark-beige
artificial stone, and the top "attic" floor is "pieced
together" from multiple glazed units that, in turn, rhyme with the
chocolate seamed roof. The color of the fence also matches the color of the
house: the color of the horizontal composite panels is very close to the shade
of the roof, while the color inserts echo the two main colors of the facade
finish. At the turn, the architects extenuated the fence to almost utter
transparency - so the drivers speeding down the highway only see the narrow
bright inserts which add to the beauty and attractiveness of the new complex. 
Residential apartment building in the settlement of "Novogorsk Olympic Village" 
Residential apartment building in the settlement of "Novogorsk Olympic Village" 
Residential apartment building in the settlement of "Novogorsk Olympic Village" 
Residential apartment building in the settlement of "Novogorsk Olympic Village" 
Residential apartment building in the settlement of "Novogorsk Olympic Village". Plan of the typical floor. None
None
None
None
None
None
None
None
None
None
None
None
None
None
None
None
|