|
The Architectural Workshop ADM turned an obsolete protracted construction into a modern office center.
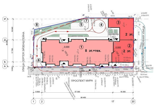
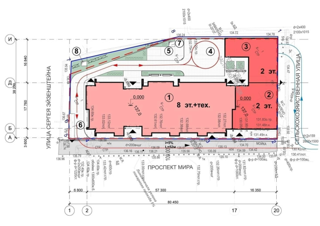
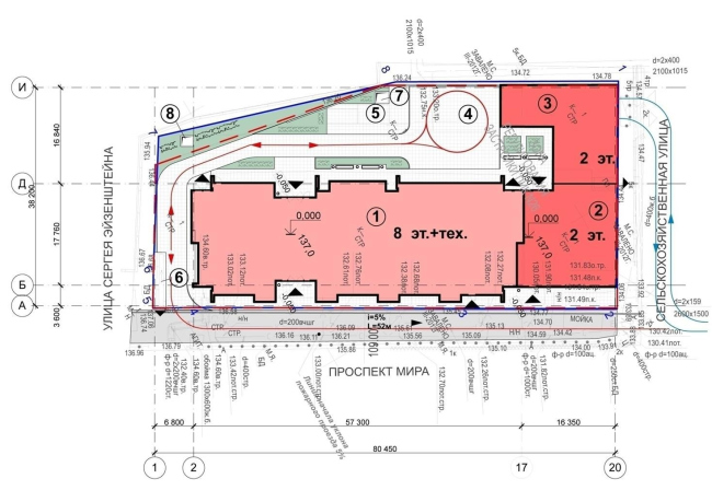
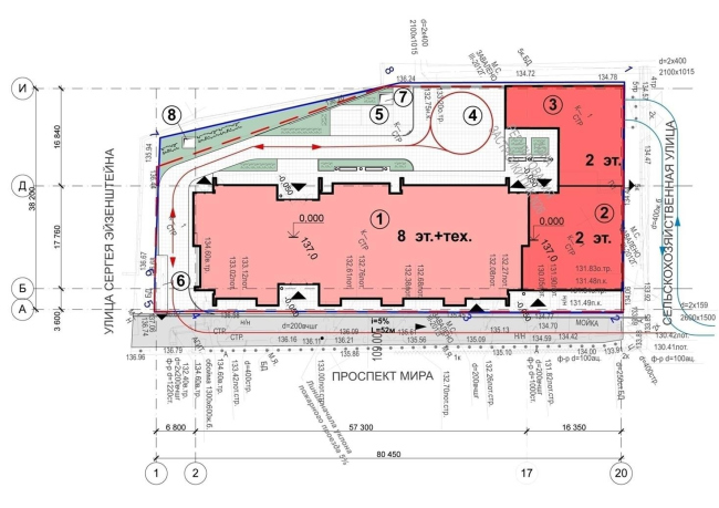
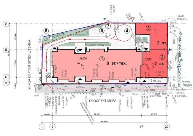
For over five years, an unfinished concrete volume stood on the
Mira Avenue in Moscow making a gloomy impression on the pedestrians with its hollow
embrasures and the massive lattice constructions. Last year, the new owner of
the building turned to the architectural studio ADM requesting to bring the
“ruins” in order, turning the abandoned framework into a modern office complex.
However, the customer wanted to preserve the projecting concrete pylons, so the
architects literally couldn’t go beyond these pretty rigid limits.
Moreover, these “limits” were not of completely ideal
proportions: the already squatting volume seemed even stockier under a massive
concrete canopy. And the brutal style, claimed by the former authors (unknown
architects from abroad who made the original sketch-idea) goes off-key with the
context of Stalinist architecture that prevails on the Mira Avenue. Of course,
Andrew Romanov did not intend it to fully merge with the background but he still
had to consider the surroundings. “We didn’t want the new building to become a
featureless glass-faced building. We wanted it to fit in line of the Mira
Avenue with its typical Stalinist architecture, that is, the skillfully traced
facades, abundance of details and the indispensable ceramics” – the architect explains.
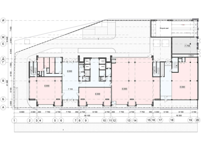
Having thoroughly analyzed the present state of the
unfinished building, the architects came to the conclusion that a cosmetic
repair of the facade would not suffice. First of all, it was due to the fact
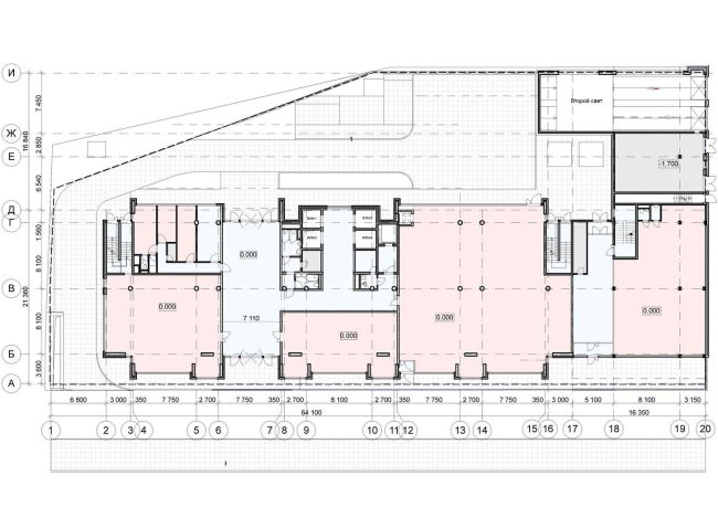
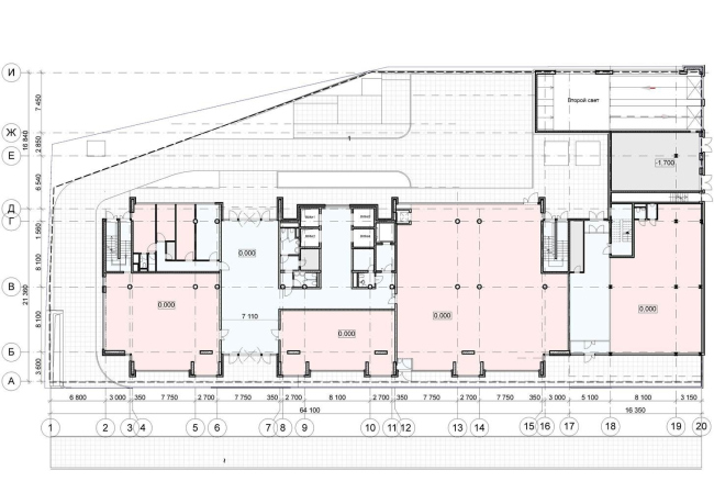
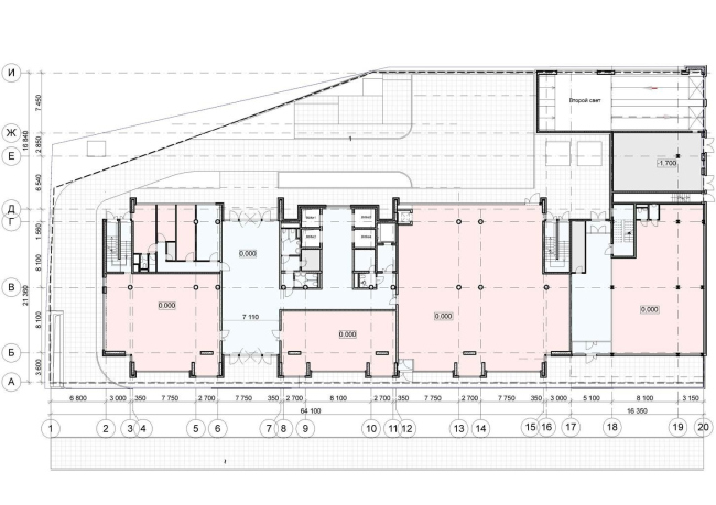
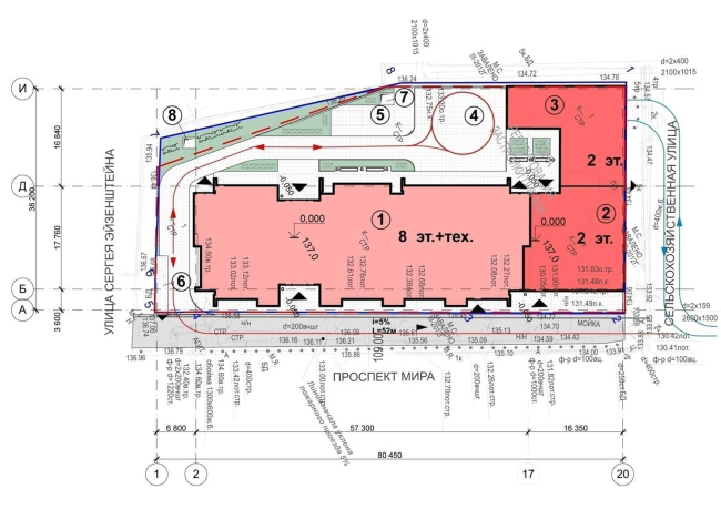
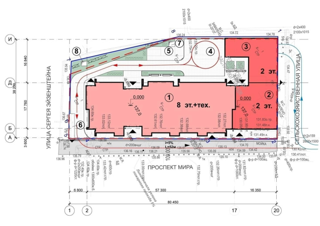
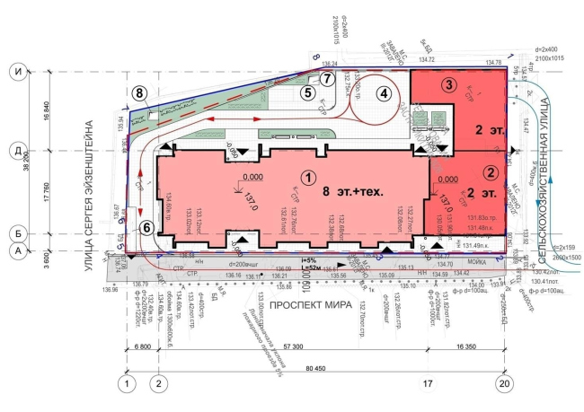
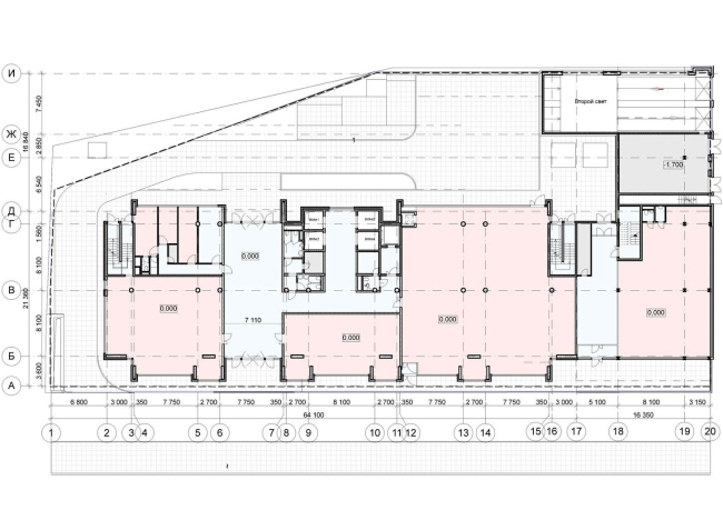
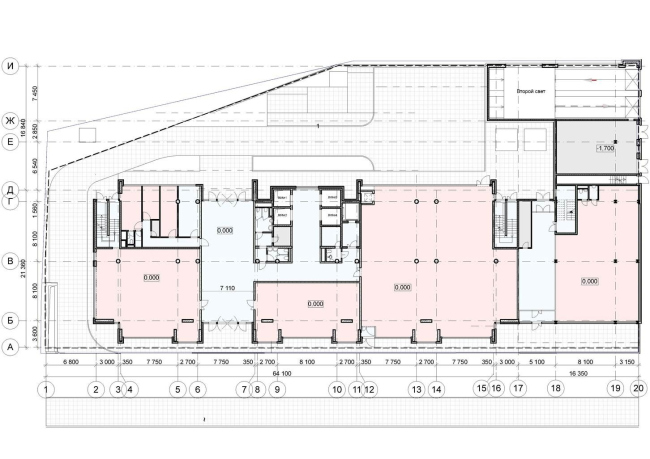
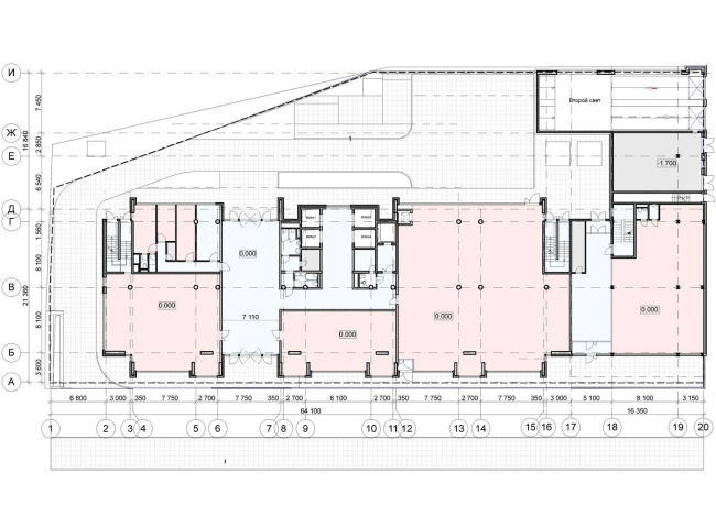
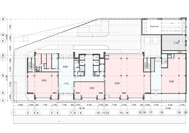
that the schematic layout of the building did not quite correspond to its new
functional program. For example, ADM had to do over the bank of lifts – add
passenger and technical lifts; link them in an ergonomic way, organize
comfortable elevator lobbies. But, of course, the main focus was set on the
façade.
The first step was to fix the proportions. The building was
“pulled up”, extending the five protruding bay windows, thus visually
lightening its top and shifting the emphasis from the canopy. Another
improvement had to do with the design of the facade – the architects wanted to
give it an expressly modern but not minimalist look, and make the laconic surfaces
look more sophisticated with the help of plastically regulated decorative
elements. The detailing is achieved through graphical segmentation of the
façade with protruding laths lined with composite Alpolic material of tree
texture, that are set along to the glass. The solid parts of the facade (walls
and pylons) are made according the Diat system of ventilated facades with
“antique” ceramic tiles.
Wood and variegated brickwork add warmth to the image and
layout of multi-format slats and the thorough execution of the details
(stemalite window-sill blocks, T-bars belted along the floors) set a human
scale. The horizontal and vertical segmentation of the volume corresponds to
the facades of nearby buildings and does not disturb the impression of the site
development.
The first floor, used for the shops and the service sector
establishments, is covered with gray granite, which gives it solidity and
visually emphasizes the typological zoning. The seven upper floors are designed
for free layout office space. The top floor is provided with an exit to the
open terraces. In addition, there is a two-story volume attached to the main framework:
its first floor is also intended for public functions, and the second one – for
the offices. And, while the “wooden” slats of the main building are delicately
fused with the brick coating, in the extension they serve the only finishing
element – the visual lightness and the natural color of these elements are
designed to emphasize the small-scale look of the additional volume.
The construction of the office center is planned to be
finished by the end of this year. And then one more “missing tooth” in Moscow
will be made up for. “I felt sorry for this project. And, in spite of the fact
that we were very strictly limited in its improvement and could not do all
sorts of fronts, we have tried to do our best in the name of the city, so that
we return the building, so that we could return the building to the city”. 

None
None
None
None
None
None
|