|
Late last year, yet another medical institution in the southeast of Moscow got positively-looking multicolored facades that inspire confidence in the art of healing and the triumph of life. The project of reconstruction of Research Center for Obstetrics, Gynecology and Perinatology named after Kulakov, situated on Akademika Oparina Street, was developed by the author team led by Alexander Asadov.
The architects got this order thanks to the successful implementation of
their project of Federal Scientific and Research Center of Pediatric
Hematology, Oncology and Immunology whose dazzling facades beautified the
crossing of Leninsky Avenue
and Miklukho-Maklaya Street.
The reconstruction and remodeling of its interior premises had been carried out
in the center a few years back - now it is not only Moscow's but the whole
Russia's most advanced clinic in its class - but from the outside it still
looks like a rather ordinary gray volume. Its image is in fact a nutshell of
the basic principles of Soviet modernism - simplicity and harshness of
composition, laconism of decoration, minimal plastics - and it is probably the
length of its main building alone that makes it stand out against its
surrounding background. After the Center
of Pediatric Hematology,
Oncology and Immunology was built nearby, the management of the center got a
vivid example of how bright and unconventional the architecture of a medical
institution could be. The decision to commission the development of the project
of facade reconstruction to the same team of architects made perfect sense,
even though the immediate vicinity of the already implemented
"prototype" created a few extra challenges.
The thing is that Akademika
Oparina Street runs parallel to Leninsky Avenue and stops dead crossing
that same Miklukho-Maklaya Street.
In fact, it is the same block that the Center of Pediatric
Hematology, Oncology and Immunology has already
been built in. The crucial difference in the location of the two medical
centers consists in the fact that the Daedalus Prize winning children clinic
building stands with its main facade turned to the multilane carriage way,
while the Obstetrics
Center is flesh and blood
of the tensely populated residential area. It is specifically because of the
density of the housing that the two medical buildings do not interact with one
another - but once you exit the maternity home and walk just a few meters away,
you start seeing time and again, in the clearances between the houses, the
bright colors of the pediatric center. This is why the architects got the task
of coming up with a fundamentally different "color code" - the
renewed facades of the Maternity Center were to be different from those of Pediatric Center but be as optimistic-looking.
Working on the new image of the facades, the architects looked not only
to refresh them but also to develop the building's intrinsic principles of
modernist architecture and highlight the strong points of the latter. This is
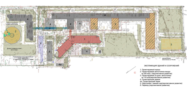
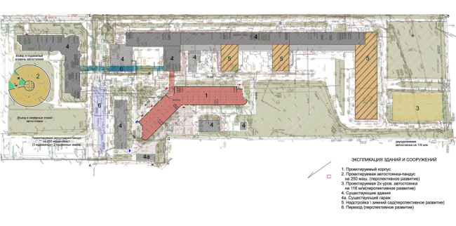
why as the starting point of the reconstruction project was chosen the layout
of the complex built back in 1979. On the plan it looks like a hair comb and
consists of the main longitudinal building and five transverse ones, the length
of them varying and the height being twice as little (three floors versus six
in the main building. The longest "tooth" that is turned to the
crossing of Akademika Oparina and Ostrovityanova Streets, plays the part of the
main facade of the entire complex - it is here that the main entrance is
situated, manifested by brutal triangular pillars and rectangular bay windows. So
it was this fracturing into separate bulky segments that became the main theme
of the new "color code".

Totally, there are five bay windows, each of which the architect painted
into a distinct color of its own - red, yellow, blue, dark green, and bright
green. The latter becomes the leitmotif of the decoration of the entrance group
- it bleeds onto the long horizontal beam above the main entrance porch and the
pillars flanking it from the opposite side. The niche itself, in turn, is
painted yellow. Highlighting the main plastic elements with color and coating
them with Kraspan panels fundamentally changes the image of the facade: what
used to look like a mono-texture light-gray mass, now has become a canvas with
bright strokes that not only make the building look more dramatic but also help
the visitors find their bearings a lot easier.

The five basic colors that are brought to the surface of the entrance
facade form the color palette off the complex. One could compare them to a set
of magic markers or maybe to a barcode that bears the encrypted information
about this building, or, rather, about the changes that the obstetrics center
underwent in the course of the reconstruction. And while the facades of the
pediatrics center are surfaces painted with bright optimistic colors, this
building, on the other hand, is dominated by white color - possibly, the most
appropriate metaphor for the birth of a new life and the aseptic conditions in
which it must take place. Apart from the already-mentioned bay windows, only
the side walls of the transverse buildings are executed in full color - all the
other facades present snow-white surfaces, over which the colorful strokes (or
"splashes", as the architects themselves call them) are thrown. What
is interesting is the fact that their length varies from floor to floor which
helps avoid the trivial "striped pattern" and make each part of the
facade look individual. This technique looks particularly striking on the
facades of the longitudinal building - the multicolored barcode visually
fractures the elongated volume, at the same time keeping its linear character.


Apart from "sanitation" of the existing facades, the
reconstruction project developed by Asadov team and "Transumed"
company provides for the construction of a whole new building on the territory
of the complex - the contemporary perinatal center. The architects plan to
position it in the yard in such a way that three transverse buildings out of
five became the overpasses from the old building into the new one - the
connecting galleries are going to be built on the roofs of the three-storey
volumes. And, since it makes little sense to start a reconstruction just
because of but one overpass, the authors propose to use its space for the conservatories,
meeting rooms and recreation areas for the patients. On the plan, the new
volume has the shape of a tick mark - one wing of the building is located
parallel to the main building of the center, and the other one is turned at a
45-degree angle to it. "Such positioning lends us the opportunity to make
the most of the land site allotted to us and maximally expand the area before
the main entrance to the future perinatal center", - the designers
explain. The architectural solution of the new building develops the theme
given by the following volume: the terminal laconism of the parallelepipeds is
softened by the multi-corner side walls, and the color barcode is added by a
frieze with stained-glass pieces with colorful inserts between them.

And, while the the construction project of the perinatal center has
entered the concluding stage of obtaining the final permissions, the
reconstruction of the facades of the center is already complete - the
snow-white 290 meter
long building, dissected with multicolored vertical stripes, has really made a
difference in the outlook of Akademika Oparina Street, bringing into the rather
faceless and aggressive visual environment a bright and dramatic centerpiece
that symbolizes the purity and joy of a new life being born. 










None
None
None
None
None
None
None
None
None
None
None
None
None
None
None
None
None
None
None
|