|
Moscow area is seeing the construction of a new country house built by the project of Roman Leonidov architectural studio; the project is based on the principle of being at one with the universe.
Roman Leonidov studio started working on this project back in mid 2011,
and now the construction is entering its final stage. The house is being built
in the east of Moscow
region, at the otherwise vacant land site. Around the house, as far as the eye
can reach, thick leafy forest and green meadows spread for miles and miles
around. According to the specifications, the architects were to place a rather
bulky volume on a square site with an area of 0,35 hectares in such
a way that would leave extra space for the orchard and an open-air gym. And,
because on the plan the house got a shape of an elongated rectangle, the
authors inscribed it into the quadrant exactly along one of the latter's sides.
Thanks to such a shift in relation to the central axis of the site, behind the
house there appeared a vast area for sports and recreation where the orchard,
the barbecue zone, and the playground border on squash courts, street ball
grounds, and ping pong tables. In fact, the commissioner's passion for sports
became the starting point in designing the house - it manifested itself in the
activity of the architectural image, as well as in the rationality of the
interior plan and in the logic of the yard territory.
It will be safe to say that from the first renders that one lays his
eyes on, this house is immediately seen as being Leonidov style: the expressive
multidirectional arcs of the roofs, the huge terraces, clear division into two
wings connected by the central nucleus with the front access door. Thanks to
the terraces, these "wings" noticeably step forward, as if flanking
the central two-storey volume that Roman Leonidov almost completely covers with
glass putting a pitched roof on top of it. The double columns, sheathed with
wood, support the bare structural skeleton of the roof and the stone slab of the
open-air terrace at the second floor level.

Project of a residential house in Moscow area. General overview
The right-hand "wing" that houses all the indoor sports
facilities - the gym, the swimming pool, and the sauna - "flies"
forward as a dynamic glass volume whose flat roof serves as the large terrace,
protected from the sun and the fall-out with a wave-shaped marquee. From the
left side, the composition is offset by the austere awning that conditionally
takes on the function of the left-hand "wing". Beneath it, there is
the walking area that leads to the central entrance, while the awning is turned
into yet another terrace, this time of an open-air type.
Generally, the abundance of terraces and open spaces in this project is
quite amazing. In fact, they surround the house from all sides - practically
from its every standpoint, be that the first or the second floor, one could get
to one of the terraces to feel at one with the surrounding birch wood. And
inside the house, thanks to the huge floor-to-ceiling windows, the feeling of
being at one with the nature never for a minute leaves you, the confines of the
house expanding to infinity.

Open interiors. Orchard view from the dining room The architectural image of this country house is based on the crossing
and interaction of simple geometric figures and planes. For example, the giant
wall of natural stone breaks through the main volume, splitting it into two
parts and towering over the roof. It is echoed by a less tall but more massive
stone wall that also serves the function of the bearing structure of the right
wing. These dramatically articulated details bring variety to the horizontal
orientation of the terraces and awnings.
The house is divided into several parts not only
visually but functionally as well. For example, the first floor is divided into
a "sports" area and the public area, the latter housing the kitchen,
the study, the recreation room, the wine room and bar, as well as the poolroom
and the music room that also provides access to the back yard. The connecting
link between the sports and the day-to-day activities is provided by a
double-height drawing room, the main decoration of it being the stone portal of
the fireplace and the floor-to-ceiling aquarium that separates the drawing room
from the kitchen. The second floor and the drawing room are connected by a wide
staircase leading to the inside balcony that, in turn, serves as the buffer
between the master's and the guest bedrooms.
Double-height drawing room with a fireplace and an aquarium
Peculiar is the fact that in decorating the interior the architects use
the same materials that they use on the outside - wood, stone, and glass. The
connection between the outside and inside images is enhanced by the wooden
roof-supporting structure that is to be seen from inside the house. Feeling at
one with the universe is also enhanced by the commissioners' deliberate refusal
to use any modern electronic devices. The house does not even have a television
in it, because, according to the owners, the fire in the fireplace and the
forest outside the windows yield a lot more food for reflection and are far
more eye pleasing. 
Drawing room. Overview 
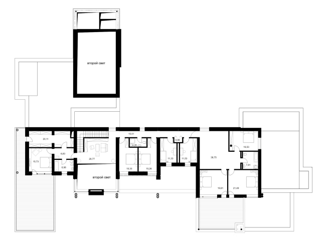
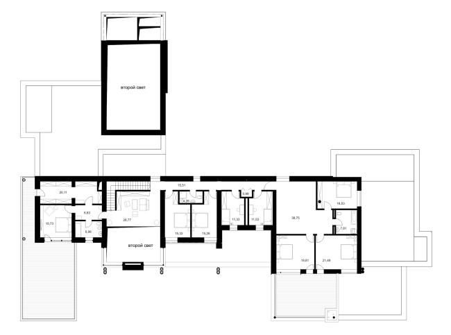
First floor layout 
Second floor layout
None
None
None
None
None
None
None
|