"Graffiti" Hostel. Photo (c) Repeen Techveen, source: panoramio.com
In spite of the
building's popularity, Committee on State Control, Use and Protection of
Historical and Cultural Landmarks, denounced the bright "cube" as a
dissonant element of the cityscape, and Eugene Gerasimov agrees to this
definition. What matters here is the position of the land site - it finishes
the distance of the Moika
River from the Bolshaya Morskaya Street
side and is plainly viewable from the close as well as remote points on both
embankments. And, while the hostel building "holds" the panorama in
its own way, it is perfectly obvious that it does not fit in its environment -
visually oppressed by the higher roof of the building behind, it violates the
scale and the facade rhythm of the embankment's housing. "We did not for a
minute doubt that the optimum house planning solution for this spot was a
building that would be capable of regenerating the historical cityscape - Eugene
Gerasimov explains. - In other words, with this new building we tried to
restore the planning and 3D structure of the area, and specifically, restore
its original perimeter as well as close the housing line from the side of the
Krukov channel".
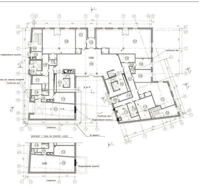
Building the residential
house on the spot where Lithuanian
Castle once stood, the
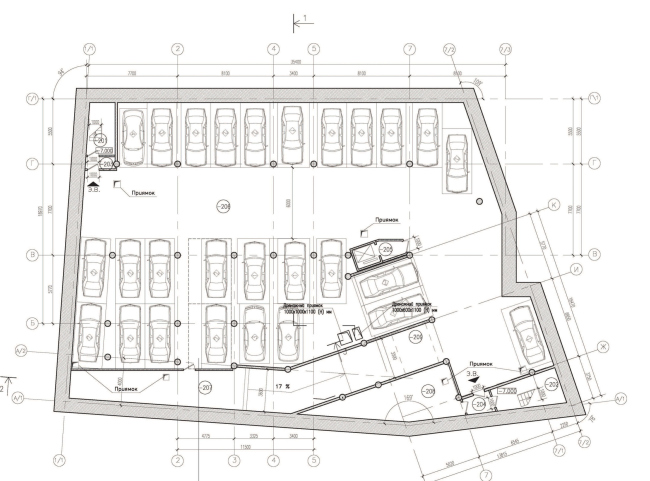
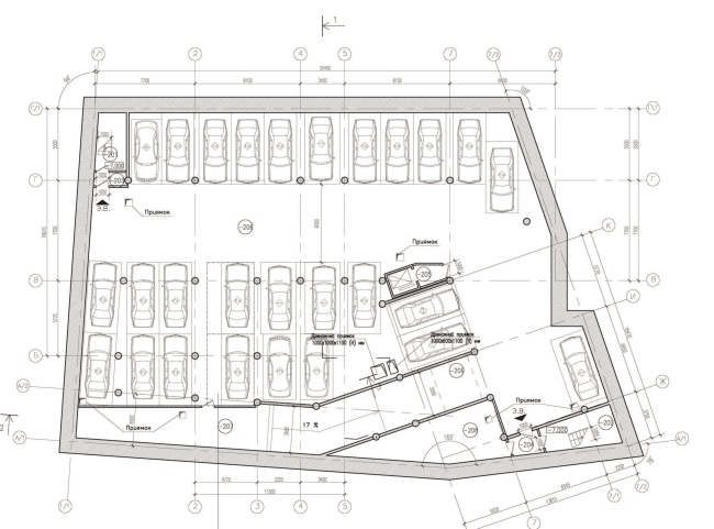
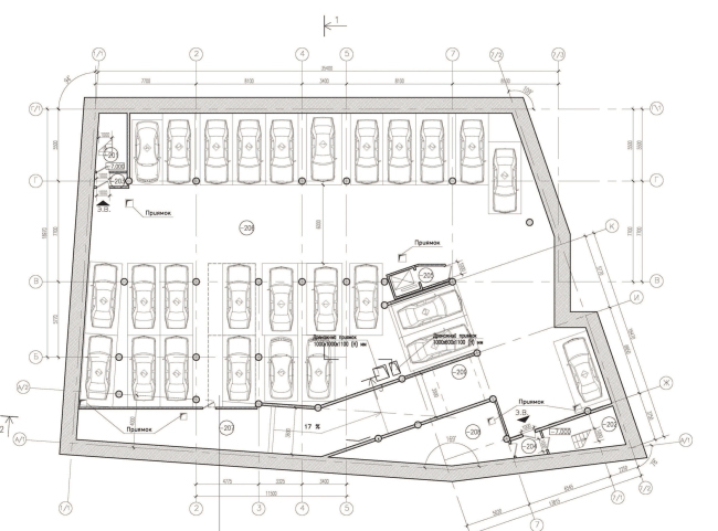
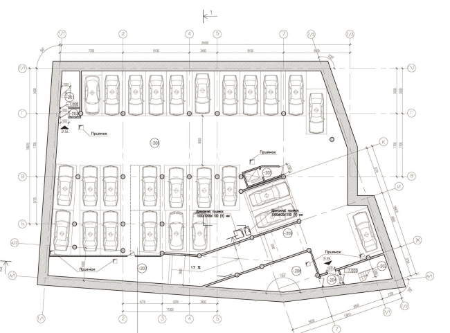
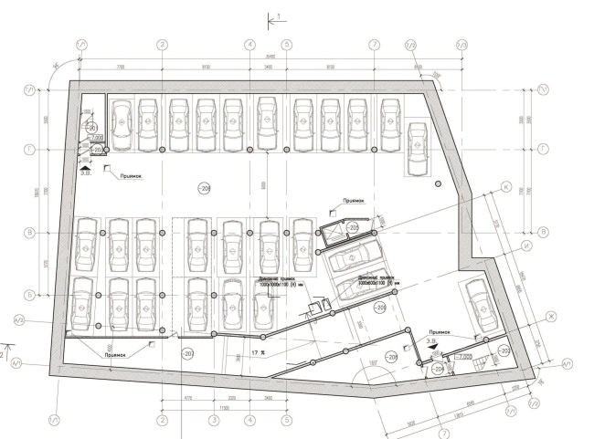
architects virtually borrowed the layout of the latter. The underground part of
the building, occupied by the parking garage has the shape of THE pentagon -
which gave the architects the opportunity to make the most of the construction
site area - while the above-ground volume presents a layout in the shape of the
letter "R", between whose lower strokes a courtyard is inscribed. As
is easy to guess, the latter is placed on top of the underground parking
garage.

While inscribing the
house into the Moika panorama, the architects tried to make it look flesh and
blood of the embankment housing that dates back to the XIX century. Hence the
proportions and the scale of the designed building - two-section and
six-storey, it sports a whole number of elements and techniques that makes it
akin to its immediate neighbors. For one, the main facade has a solution that
is symmetric to the recessed central part - the niche of the main entrance that
is flanked by two big oval-shaped windows. The first floor is coated with
rusticated stone, while the others are finished with natural stone, of a more
delicate nature, and with shades varying from dark beige to almost ivory.

The authors obviously
drew inspiration from Saint Petersburg Neoclassic of 1910's: the tell-tale
attic, inscribed into the balustrade above the roof, the brutal "fur
coat" of the rusticated stone on the first floor, and the pilasters
stretched over the entire height of the three floors leave no room for doubt
about that. Although the choice of the Ionic order, the flutes on the
pilasters, and the generally rich but at the same time austere outside ornament
rather refer us to the earlier "historicism" architecture, while the
oval windows that flank the main entrance could have, of course, been a part of
a neoclassic building but would have looked more habitual in the facades of the
houses built in "Northern Modernist" style.

Still, Lithuanian Castle
remains - and this is clearly seen - the main source of inspiration for the
architects. It was a distinctly "Empire" edifice, at the corners of
which, partially drowning in the bulk of two-storey buildings, traditional for
the late classicism, large squatting towers stood. Paying tribute to the building's
predecessor, the architects also suspended round towers on the corners of the
main facade; although their proportions are a lot more on the vertical and
elegant side. The towers are echoed by two three-facet bay windows - all put
together makes the facade commanding the embankment view look surprisingly
plastic, moulded, and three-dimentional. When viewed from a distance, the
building indeed looks like a castle but not like the Lithuanian squatting
castle, and rather some Hungarian castle of the XIX century, romantic and
almost toy-like.
Yet another
motif of the Lithuanian
Castle is the large,
tall, but schematic three-glyph frieze that crowns the main part of the
building. A frieze very much like this one crowned the caste of
Starov-Charlemagne, and in this particular case the motif looks an
unmistakeable quotation. Neoclassic style used no such elements. But then
again, a three-glyph frieze is also to be found on the neighboring Empire
building - and the frieze from Eugene Gerasimov's facades visually continues
its horizontal line, striving, as we already said, to fit in with the
historical housing.
And finally, the attic
fronton, that we earlier recognized as neoclassic, can also be seen as a
reminder of the fronton that crowned the entrance section of the Lithuanian
castle. What is interesting is the fact that for the neoclassic architects the
shape of the attic with a pitched roof was in itself a reference to the Empire
style. In this particular case, two themes - the Empire prototype and the
neoclassic style - are unobtrusively blending into one, giving the искусствоведам интерпретаторам a lot of room fr theorizing and (which is probably even more important)
- the multi basis contextual rationale to the design of the new building.
Thus, Eugene Gerasimov's
new project reveals a multitude of historical allusions: some of them serve to
remind of the Lithuanian Castle that was burned down during the revolution,
while some help to make the new house fit in with the housing array of the
embankment, and (which is also important) to highlight the fact that it belongs
to the elite category of residential houses.
The new house, however,
reveals a number of contemporary traits as well. In particular, one of the
characteristic traits of the contemporary historicism is the polysynthetism of
the quotations, the possibility to discover, at close examination, signs of
different styles (in this case, Empire, Modernist, and Neoclassic). Besides,
the contemporary character of the house is revealed by the wide windows, as
well as by the fact that the corner towers lack the characteristic supporting
console, a sort of "double chin", and a crowning hipped turret or a
faceted dome that we're all but obligatory at the turn of XIX and XX centuries.
Due to the fact that the
towers are not either supported or crowned by anything, the unsupported
vertical theme gets weaker and one starts perceiving the building as consisting
of horizontal layers - the "basic" ground one, and two upper layers
that are simpler, lighter, and look a lot like the additional stories that were
often built above the tenement houses in the per-war era. Hence two things.
First of all, this building has a lot less tectonics about it than its
historical prototypes did, but at the same time, in spite of all the
conservatism of its facades, it shows the horizontal attraction that is quite
modernist. Two themes, the classic tectonic one, and the "ribbon"
modernist intertwine in quite a peculiar combination - which makes the building
look recognizable and up-to-date at the same time.
Second of
all, the recessed upper floors, looking indeed like later-on additions on top
of a historical building, set the theme of imitation of a few life cycles of
the building - as if the totally new house makes believe that it has been
several times rebuilt, which also can be considered a sign of the times. And
finally, the stepping silhouette created by the recessed sixth floor is the
most recognizable trait of the house built in this historical city.
Incidentally, the mansard floor, even though hiding from the passers-by by a
cornice, serves a good turn when viewed from a distance: thanks to its
tallness, behind the new house, like behind a screen, the old soviet houses
will disappear.