|
Story of the project office and retail building on Kulneva Street (better known under its former name of “Mirax Plaza”) losing its designer supervision, being re-done, and then finally getting back into the hands of its authors to retrieve its architectural integrity.
The project of the office
complex “Mirax Plaza” is well known to anyone interested in the contemporary Moscow
(see our article on the 2007 project). Although
after the global financial crisis set in and the main investor left the
project, it lost its proud-sounding name, the two austere prismatic towers
saluting to the Moscow City skyscrapers from the opposite side of the Moskva River,
are still almost complete and are clearly visible to the cars driving by down the
Third Transport Ring.
The towers, however, were but a part of the entire concept. The other part of it was the group of ten-storey buildings inscribed
into the neat oval of the layout at the foot of the two high-rises. The yellow stone buildings braced by dramatic horizontal ribs looking a
lot like flying buttresses, had to continue the row of Stalin-era buildings
standing along Kutuzov Avenue,
and create an offset contrast to the office towers.
The
previous version of "Mirax-Plaza" project
However, as often is the
case, not everything went to plan. The
designer supervision over the construction of part of the “island” (the
building that is turned onto Kutuzov Avenue and that makes up the “nose” of the
oval), was handed over to another architectural office, the project was
changed, and the building was not built the way it had been intended. In a
nutshell, it was generalized and simplified: now there was less stone, more
glass, and the horizontal ribs, while still preserved, became thinner and more
monotonous. The casing blocks, from horizontal and tawny, with “scorch marks”
so characteristic of Stalin times houses, turned into pink-gray and vertical,
now looking very much like “seashell” casing that was used back in the 1970’s
for coating the Soviet movie theaters and office buildings.
The
building on the Kutuzov Avenue,
built with neither designer supervision nor with “Sergey Kisselev and Partners”.
Photo: panoramio.com, stargate
During the work on the
ten-storey building that in fact makes up the elongated part of the oval
situated next to the Third Transport Ring (designated by the letter
"B" on the various layouts of the complex) it became clear that
keeping its original shape would be impossible due to the recent changes in the
land-use and development rules of the adjacent section of the railroad line.
"While formerly our situation provided the opportunity of placing the
stylobate pillars directly on this railroad section, now the agency for
land-use would not even condescend to considering such a possibility" -
the architects share. In other words, according to the original design, the
volume of Building "B" and the railroad line actually crossed: the
dome-shaped arch of the facade would have overhung the tunnel that pierced the
volume of the building from side to side chordwise but now the building was to
recede into the confines of its construction site.
The original layout
The commissioner
announced a tender for the design adjustment of the ten-story building -
naturally, with a view to preserve in the new project the original square
footage with expenses minimized. For the architectural office "Sergey
Kisselev and Partners" this in fact was a chance to retrieve its original
project, and finally bring it to fruition. Knowing their own project inside and
out, the architects quickly found the solution to the problem that was set
before them. The design, of course, underwent a few significant changes (under
the given circumstances it simply could not have been otherwise) but the
authors "did their best to consider the structures that were already
erected and were making all of their planning decisions, if it's possible to
put it like this, in the reconstruction mode". In a word, they only
proposed to make the most necessary changes, at the same time giving back to
the project all of its original useful space.
The regular-shaped, compasses-drawn but protruding too far beyond the confines
of the site arch of the oval layout had to get cut off to make room for the
railroad line - the layout of the building was no longer a segment and took on
the constrained and squeezed shape, like a 1960's TV with straight sides and
rounded corners.
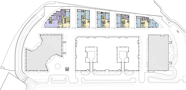
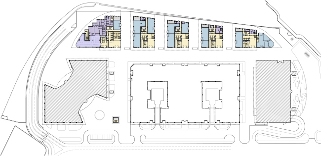
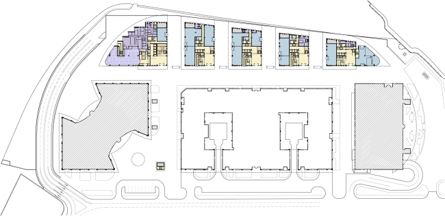
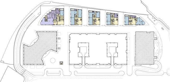
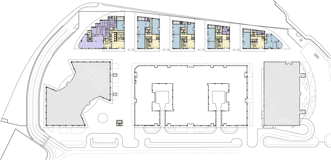
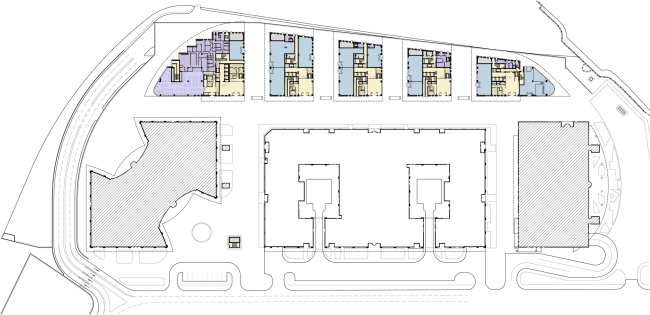
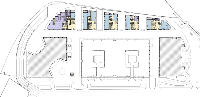
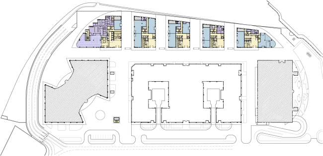
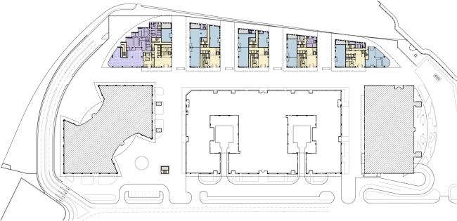
 Site plan
In order to compensate
for the lost useful square footage, the architects divided the elongated
building into five parts, replacing the four atriums with open courtyards. Each
of the five resulting volumes got expanded lengthwise at the expense of
reducing the space of the yards. This measure helped to retrieve all the lost
square meters without increasing the height of the buildings. The yards, in the
meantime, started looking more like short fragments of pedestrian boulevards:
they all lead to the longitudinal inner street that connects all the five
buildings. The latter, at the same time, overhang in deep cantilevers above the
pedestrian space thus winning yet some more useful space and forming small
marquees over the boulevards below.
Visualization. Project of 2012. Version 2.
What is peculiar is the
fact that the architects deliberately opted out of making their
"yard" streets car-passable, fully reserving them for the
pedestrians. This resonates a little with a reminder about the cancelled deluxe
atriums - the yards, of course, lack the luxury of their glass surfaces
stretched at a ten-storey height but they still remain the safe and comfortable
space to be in. Unlike the atriums, however, the yards are open to the city and
thus are more democratic: anyone can walk in and around here. This solution is
more on the European than on Moscow side: Moscow is still having a
difficult time getting rid of its endless fences and checkpoints, so the open
little streets of the office center are a small but still an important step to
meet the city community halfway.
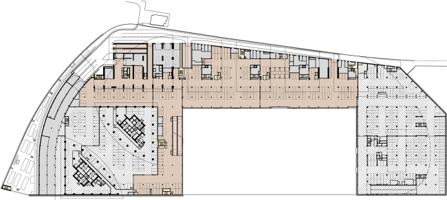
The pass-through pedestrian street of Building B
The facades, of course,
also had to be remodeled: now they are made up of the same alternating pattern
of horizontal stripes of stone and glass as the towers. At the rounded side
walls the stripes get narrower - here they resonate with the graphics of the
building that stands on the side of the Kutuzovsky Avenue. As we can see, the
architects ultimately came to one of the most wide-spread, if not to say
"classical" facade techniques of office architecture. The
striking-looking "arrested" cascade of stone braces that in the
original project was meant to bring association of the age of high speeds and
similar technogenious things, has now turned into a respectable office street.
Still, the authors have been able to restore the project's integrity, which was
particularly important to them. The "courtyard" streets splitting the
once-single building into five separate volumes, will look, at a quick glance
cast from the side of the Third Transport Ring, like narrow slits and will not
violate the integrity of the facade's image. Andrew Nikiforov is also positive
that the architects have ultimately been able to keep the idea of the
"oval island".
 View from the Third Transport Ring
One cannot but be happy
about the fact that the shattered and scattered project got almost unexpectedly
"fixed". This story once again goes to show that a competent
architect will always be able to solve the commissioner's situation as well as
retrieve the all-but-lost project to restore its integrity and find a new image
for it.
This "new image" that came as a result of the transformation
described, is also worth special mentioning. It is more relaxed, more
practical, and more democratic. "Mirax-Plaza", though austere and
conceptual, was still dramatic and expensive-looking. It was meant to strike
one's imagination with the glass of the atriums, the flying buttresses, and the
regular arches and circles. Its architecture sported the contrastive tension:
between the concrete and glass, the towers and the avenue (the former being the
symbol of the power of money, the latter - the power of the tyrant). The
contradictions of the city were aptly reflected in it and turned into a dramatic
and powerful story. Which was quite resonant with the times: the period of
quick growth, arrogant investors, and giant projects.
Now the contrasts are all but erased, the contradictions are softened, and the
story is taken to a whole new level: now it has ceased, to a large extent,
being a theatrical performance arrested in stone, and has started looking more
like the natural history of finding common ground, reasonable economy, and
architectural integrity. The complex is stepping back from the obstacle that
its predecessor was stepping upon but at the same time it opens its arms and
lets itself into the city. These are marks of our times - possibly, just as
good as one can think of.
None
None
None
None
None
None
None
None
None
None
None
None
None
None
|