|
For the tourist resort "Cote d'Azure" that is located in Istra district of Moscow area, Totan Kuzembaev architectural studio has designed a guest cottage with facades that look as if they were multicolored wooden jigsaw puzzles.
Initially, the studio got the commission for designing the entire
resort, and Totan Kuzembaev team developed the general layout and the master
plan of "Cote d'Azur"
resort, as well as the sketches of the public buildings and the solutions for
improving the quayside and the embankment with its floating swimming pool.
Against the background of such grand-scale work, the little guest houses were
little short of being the most insignificant part of the commission. The
architects even had the time to come up with such unusual volumes for the new
resort as a suspended tea house and a dance floor terrace of a water-drop-shaped
layout, when it turned out that the commissioner was only now planning to limit
himself to the construction of cottages. Thus the initially peripheral project
became the main and only one, serving to show how responsibly and
unconventionally Totan Kuzembaev studio approaches the task of designing each
and every tiny volume.
The initial specifications for the guest house were simple and as
expectable as one could ever imagine - with a structure as economic as possible
it was to look unusual and recognizable, have a convenient layout, and,
generally, become the great getaway to spend your vacation in, one that makes
you get back to it over and over again. At the same time, the commissioner
intended to get a scalable project that he could multiply many times gradually
increasing the number of cottages, and this is why Kuzembaev was to propose
some sort of a versatile architectural solution that would only get better with
being multiplied many times. And it was this very task itself that prompted the
architect the image idea of the project: if one house here is part of the
whole, and this whole is to be formed for years to come, then Kuzembaev thought
it appropriate to liken the guest hose to a piece of a jigsaw puzzle. This
metaphor found its reflection both in the name of the house and in the
decorative design of its blind wall. 
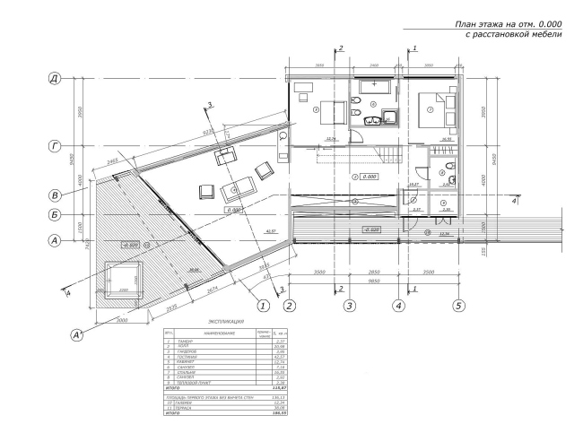
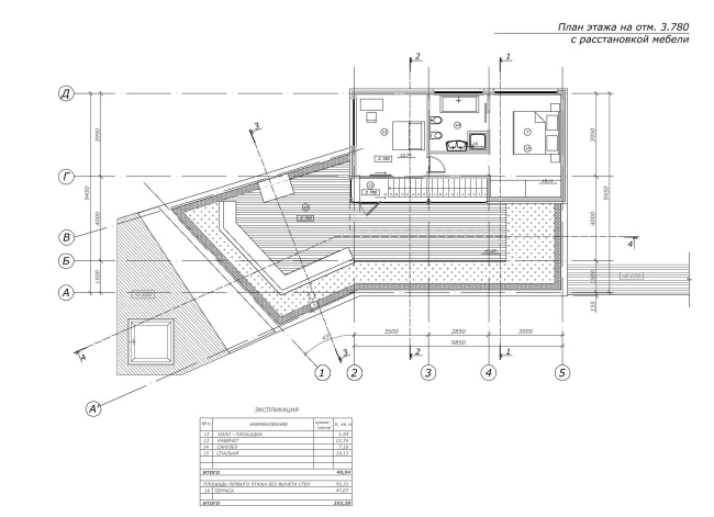
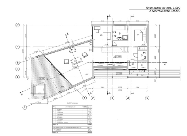
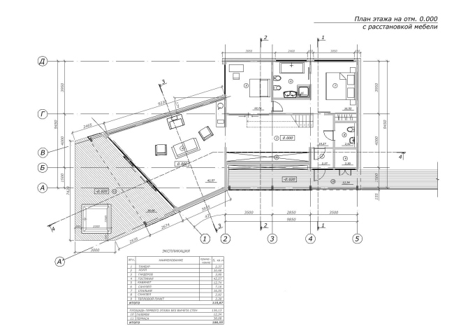
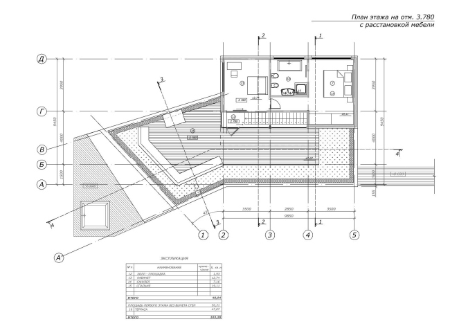
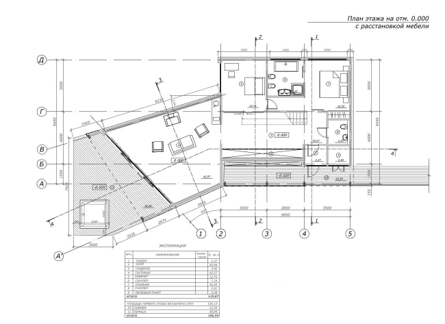
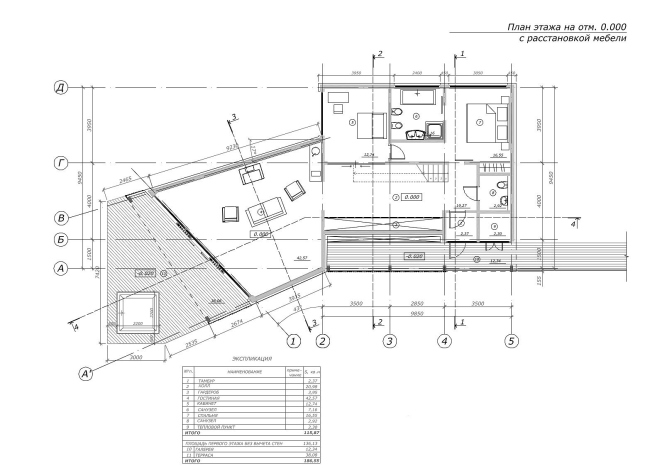
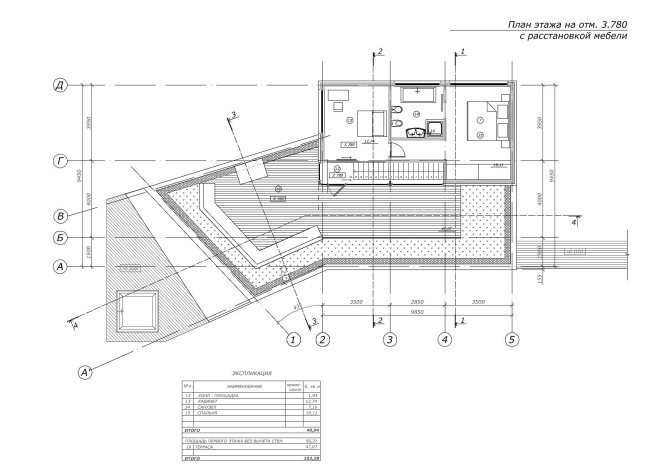
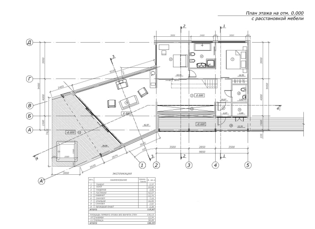
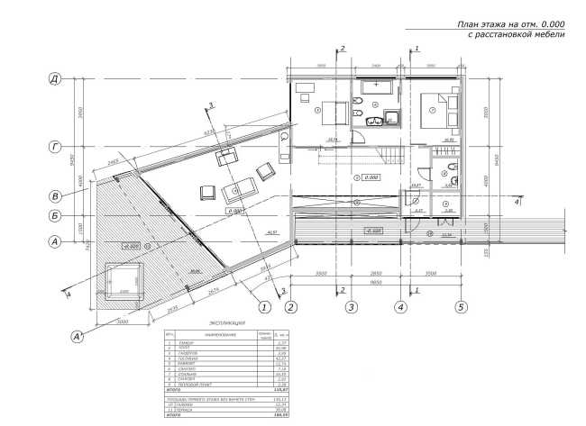
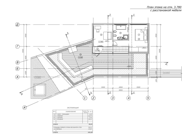
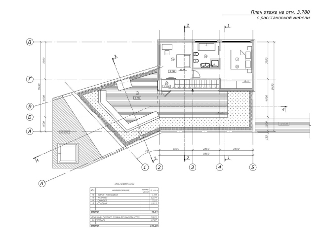
The layout of the house grew literally out
of its purpose: the most lapidary part with private and technical premises
(bedrooms, bathrooms, stairways and the like) is complemented by the freely
drawn recreation areas - both indoor and open-air. These areas are of a rather
varying character: apart from the traditional space of the living room, joined
with the kitchen and the dining room, there are open and closed terraces,
elongated ramped galleries, green roofs, a barbecue spot, and even an open-air
bathtub. The system of these spaces embodies Kuzembaev's yet another important
idea that he himself calls a "Passe-Partout for the forest". In other
words, this house is intended as a means of contemplating the surrounding
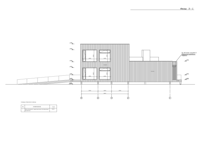
century-old forest. This is why each separate room has in it huge transom-less
window openings; the opposite walls of the living room slightly "open
up" on the floor plan, setting the direction for admiring the beautiful
scenery, and the open-air spaces of the house are really numerous - according
to the architect, if one goes out to see the nature, he shouldn't bar himself away
from it with any walls.

The premises are arranged in such a way that they smoothly
"lead" the guest out of the inner space into the open one - via the
roofed terrace onto the open-air terrace, and out of the gallery onto the
gently sloping ramp. This idea is also implemented by the devices that in fact
erase the boundary between the house and the woodland: the facade of the house
overlaps with its interior, the railings of the terraces are transparent, and
some of the living room walls are designed as vertical Venetian blinds.
Besides, in accordance with the original design, the roof of the house will be
pierced with green plants: so far this "green roof" idea has not yet
been implemented but with modern insulation materials it should not present any
difficulty.
The interiors of the house, supporting the Passe-Partout idea, are as
laconic and clear as possible. Their main decoration consists in the massive
glued beams that are part of the structural design of this framework house.
Their array is a little bit more saturated than is necessary for performing the
bearing function, which is made for the decorative purpose - the inner spaces
take on a more dynamic feel.

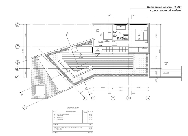
The design of the house has yet another solution in it, hat serves both
utilitarian and aesthetic purpose. These are the stairways that lead to the
second floor and double one another. One of them is located in the inner space
near the bedrooms, and the other one is in the gallery that is separated with
the Venetian blinds wall that echoes the rhythm of the beams with its
verticals. This solution will give the owners of the house rent it out as a
whole or rent out some of its floors only. Visually, the stairways are
connected, and, together with the semi-transparent wall, and the passage
running alongside the gallery, create the multi-layered space, a little
tangled, and incredibly attractive.
It should also be noted that the "Jigsaw Puzzle House" exists
in the single-story version as well. In the single-story the outdoor stairway
leads to the accessible roof area, while the indoor one disappears, which makes
the space even more simple and larger. As Totan Kuzembaev himself says:
"While what city needs is beautiful and imposing edifices, here, in the
woodland and near the water, one only needs architecture that is very simple
and laconic". 











None
None
None
None
None
None
None
None
None
None
None
None
None
None
None
None
None
|