Published on Archi.ru (https://archi.ru)

08.11.2012

On the Wings of Sport

Anna Martovitskaya
Architect:
Andrey Asadov
Alexander Asadov
Studio:
ASADOV architects

The Moscow area's settlement of "Zhukovka XXI" got a public sports center built by the project of "Asadov Architectural Bureau".

When he shares about how he came up with the idea of this dynamic building that looks as if it spreads its wings to welcome the oncoming traffic flow, Andrew Asadov inevitably quotes the famous Richard Bach novel "Jonathan Livingston Seagull". This book, one that literally defined the worldview of a whole generation, was recalled by the architects once they found themselves on the future construction site: the picturesque valley at the bend of the Moskva River was asking for a solution that would be easy and spiritually close to the ambience of freedom and space that pervades this place. "It seemed that the idea sort of suggested itself that we would design a building looking like a seagull that has just landed on the riverbank and is now spreading its wings only to take off a second later" - Andrew Asadov shares. 

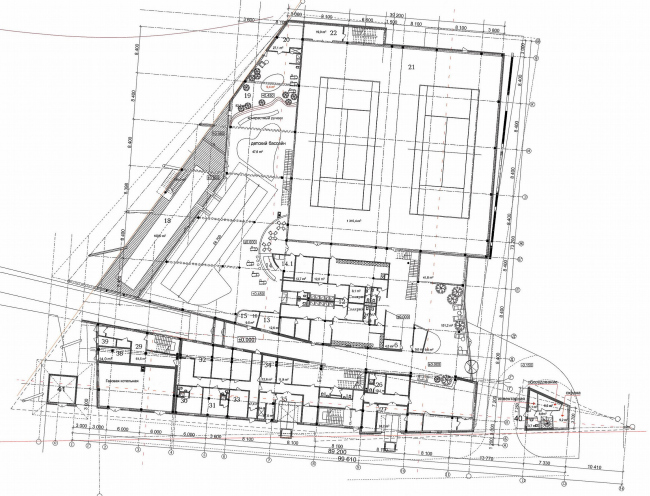
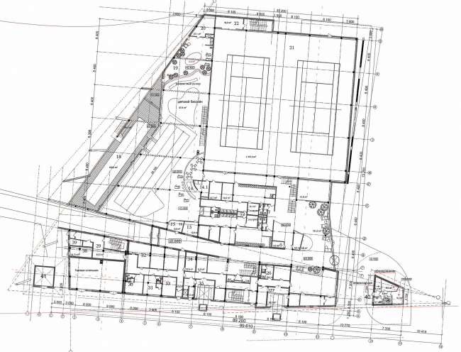
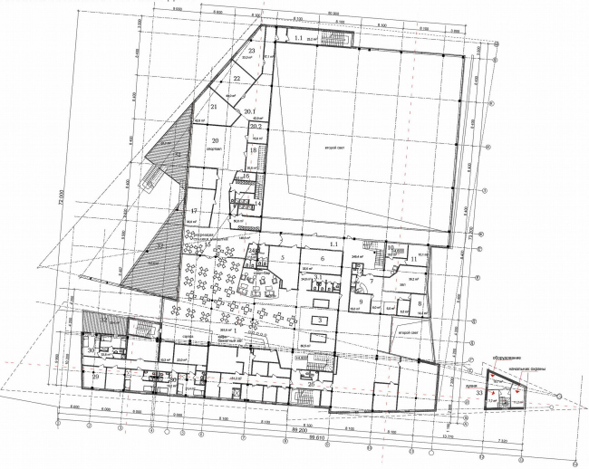
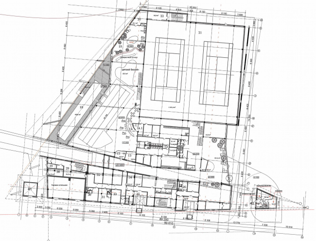
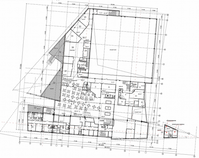
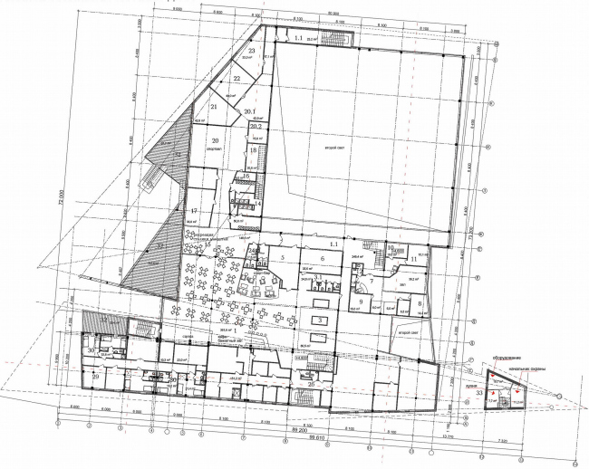
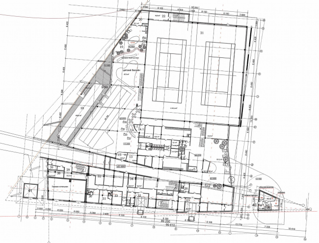
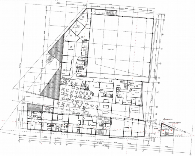
First of all, what architects drew on the master plan was literally a bird - a building of a triangular layout, whose "beak" is turned in the direction of the road, with its "wings" spread on either side of the pass-through highway. The metaphor of the flight could be read here very clearly, and although later on one of the wings grew rather "stout" because of two extra indoor tennis courts, the architects were able to keep the idea generally intact. 
In particular, the project retained the sharp beak that overhangs the highway, and the central spine of the passage that splits the volume into two independent parts whose roofs have wide awnings. It is their triangular shape that makes the building look like a bird indeed - its wings are supported by slender pillars, these being set at angle to the building by the architects which adds extra dynamics to the entire composition. To cut a long story short, from the bird's eye view, the actual building does not look very much likes winged creature but when viewed from the ground, it definitely arrests one's attention with its "avian" look. 

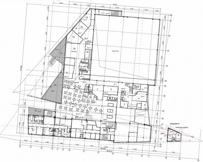
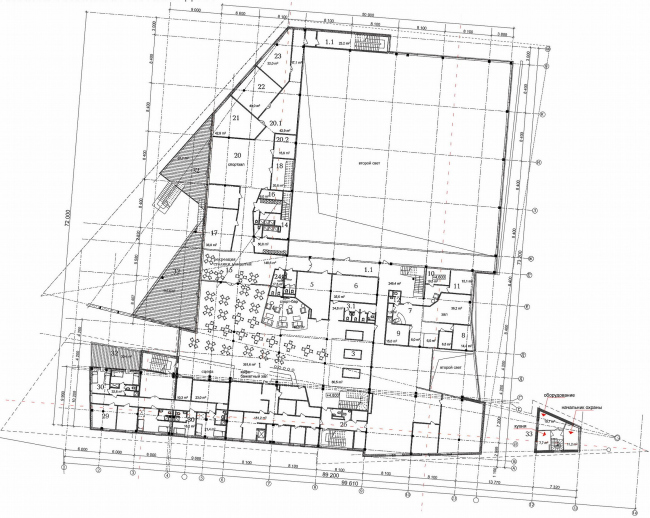
What is interesting is the fact that only one of the two "wings" is completely solid-body, while the other is pierced with triangles of various shapes, and the set theme of pergolas becomes one of the main ones here. The numerous awnings virtually skirt the building along its perimeter, forming indoor intermediate spaces that connect the inner premises with the outside landscape. One cannot help but admit that for this typology this solution is the best possible one: the inner space of the complex has in it the two already-mentioned courts, a fitness center, a spa salon, a children's club and a cafe. From the side of the river, the building gets the sport fields, while the indoor swimming pool gradually turns into an outdoor one.

None
None
None
None
None
None
None
None
None
None
None
None
None
None
None
None
None
None
None
None
None
None
None
None
None
None
None
None
None
None
None
None
None
None
None
None
None
None
None
None
None
None