Published on Archi.ru (https://archi.ru)

25.09.2012

Non-typical Transformations

Tatiana Pashintseva
Architect:
Roman Leonidov
Studio:
Studio of Roman Leonidov

Roman Leonidov architectural office is developing a reconstruction concept for a former "pioneer camp" (the Soviet name for a children's summer camp - translator's note) located in Moscow region.

The initially challenging task assigned by the commissioner - to preserve and use the 1960's buildings and make the outdated grim boxes come alive with a new architectural image - was rendered still more challenging by the accompanying circumstances. First of all, the bright and unusual piece of architecture was to be created "for a reasonable budget". Second, and worst of all, the existing lightweight foundations would not have stood any extra load. And even though the authors were tempted to start from scratch, they ultimately found a brilliant solution of this problem.

The concrete boxes of the residential premises are masked with shells of glued wooden structures. These structures are used both for as the jacketing of the facade and as the supporting elements that, not unlike columns, stand out beyond the contour of the bearing-wall buildings. The advantages of such a solution are pretty obvious: the glued wooden structures are light; they do not require massive foundations, and do not form the "cold bridges" at the joints with other types of materials. What is also important is the fact that this environment-friendly material allows creating sophisticated sculptural compositions that, with all their expressiveness, do not wreak havoc on the construction budget. 

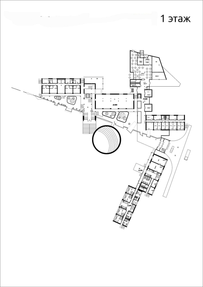
Totally, the architects were to reconstruct five buildings, three of which were blocked together in a "stairway" array, with the other two standing at a 90-degree angle to them. In order to avoid spending his resources for each separate "box", Roman Leonidov groups the buildings: on the layout, he draws a large triangle, into which he inscribes all the five volumes, each of which he dresses into the wooden "camouflage" filling the space between the buildings with a few elements of landscape design. The multi-level landscape space and the diversity of the new "skin" give the former "pioneer camp" a totally new image: now it is not just five concrete parallelepipeds but a new composition that is dynamic and diverse. At some places the facade is dominated by a fancy roof with a pergola, at some places - by broad horizontal stripes pierced with slanting square-section beams. 

The centerpiece of the complex is the round sunk-in amphitheater, around which the architect forms a stern orthogonal system of dormitory blocks and their connective galleries. The amphitheater is meant for various open-air events while the galleries provide every person in the health resort easy access to all of its facilities. Now the campers will be able to enter the cafeteria, the gym, and the medical, recreational, and public areas without having to go outside.

None
None
None
None
None
None
None
None
None
None
None
None
None
None
None
None
None
None
None
None