Published on Archi.ru (https://archi.ru)

17.09.2012

A Couple at the Crossroads

Anna Martovitskaya
Architect:
Sergey Skuratov
Studio:
Sergey Skuratov architects

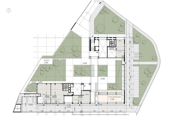
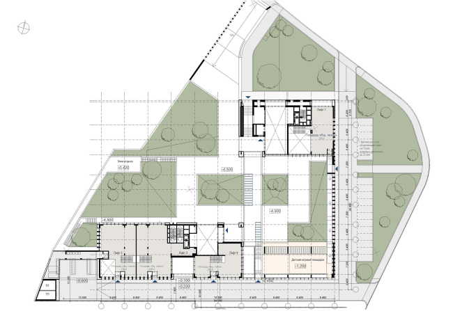
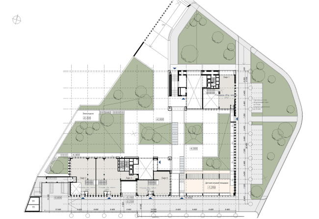
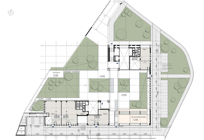
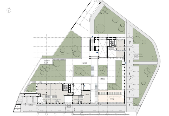
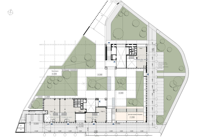
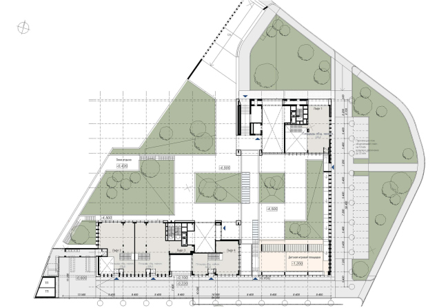
On Moscow's Novoalekseevskaya Street, by Sergey Skuratov's project there will be built a residential complex consisting of two brick houses and a sunk courtyard

The complex will be built between two red-brick buildings of historical value - the Bakhrushiny Brothers Orphanage and Alekseevskaya Pump Station - so the idea of creating some sort of material and meaningful link suggested itself early on.  Besides, there is hardly any architect other than Skuratov that could handle this task better, what with his consuming passion for red bricks.

Having settled on the red bricks, the architect made two crucial decisions still before the development of the execution plan. First of all, he straightened out the southeast boundary of the land site where it borders on the historically formed industrial area - which turned the site into a triangle, more convenient for house planning in this particular case. Second of all, Skuratov placed his stake on designing a high-rise centerpiece which is really vital for his place. The thing is that the opposite side of the street sports the tall modernistic building of Glavtransproject with yet another standard residential high-rise only a block away, which makes the alley "give under" visually. What the architect wanted to do was to support the "pulse" of the cityscape and at the same time not to cram too many verticals in one place, this is why he found
the infallible combination - Skuratov positions the new buildings on those sides of the triangle that are farther away from the residential tower. 

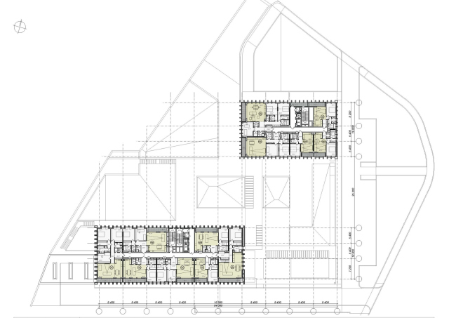
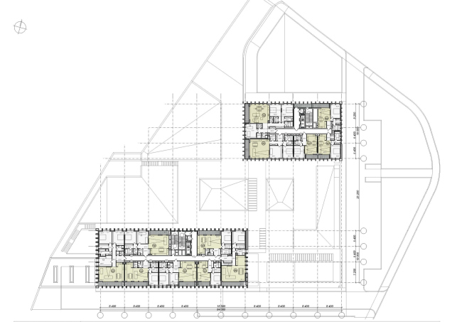
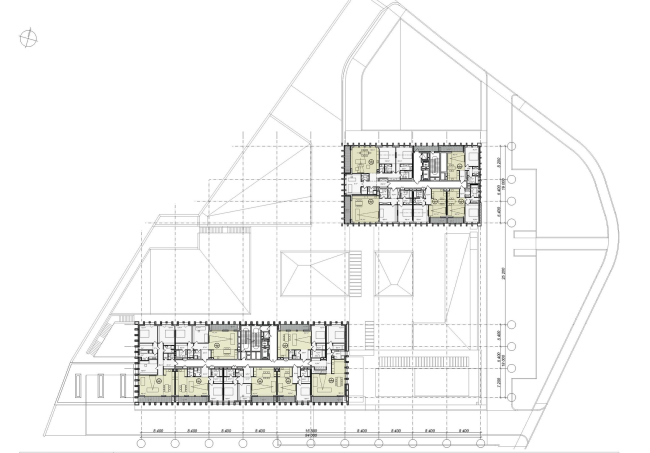
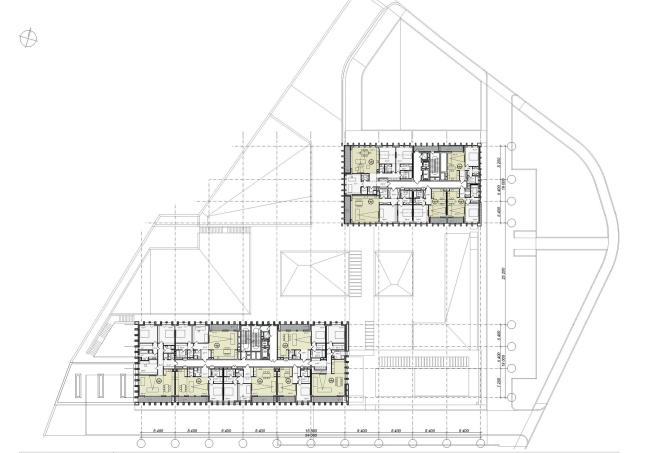
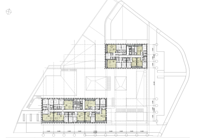
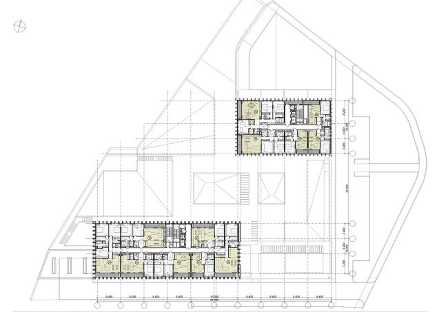
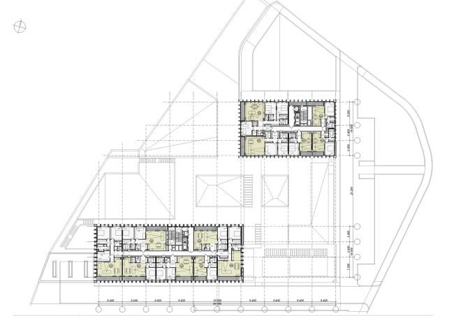
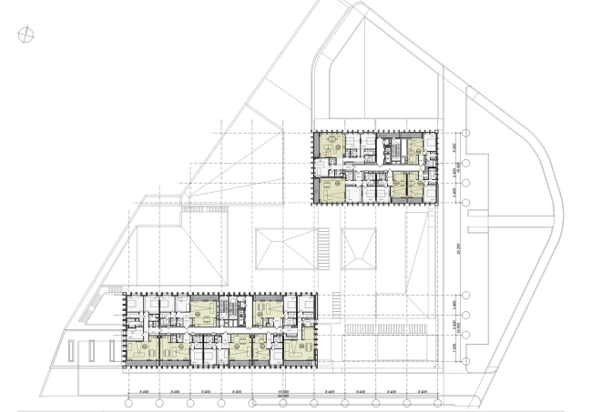
From the compositional standpoint, the complex consists of two buildings placed on a single two-level stlylobate.  The two volumes are of equal width but very different in their length and height. Building "A" has 15 residential floors in it, and two floors of public premises, while Building "B" is almost twice as low: it has 8 residential floors, two publics ones, and it is twice as long at the same time. From the side of the crossroads, the complex looks like two narrow towers placed on a single base and having almost identical facades whose pattern is formed by the alternating tall and high windows and recessed cells "embossed" into the building. And, while the place of several streets crossing used to be dominated, even if from a side, by the high-rise building of Glavtransproject, pierced from top to bottom by look-alike stitches of windows, now the two new volumes with facades that are as modernist but a lot more diverse and sophisticated, make the former centerpiece "step back" a little. 

What is interesting is the fact that at the same time the towers are NOT standing on the same straight line: Skuratov moves the taller volume closer to the crossroads, thus making it actively react to the traffic situation. Vertically, this tower is split into two halves of almost equal size - the upper floors are separated from the lower ones with a translucent belt - and it is turning its "head" to the right, with its layout following the routing of 1st Rizhsky Side-street. The other volume is not left unattached either but its plastic is not as active: the facade facing the crossroads sports a characteristic "dent" but because of the smooth brick surface it does not meet the eye at once. 

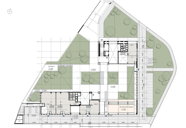
The stylobate that takes up almost all of the land site area is predictably used by Sergey Skuratov for the purpose of making the inner courtyard. The architect, however, is consciously refrains from the stereotypic solution of landscaped functional roof, reasoning that under the megalopolis conditions it will not be capable of providing the appropriate level of comfort and security, and thus he sinks the yard more than three meters down into the ground, building a brick wall along its perimeter.  Thanks to the height difference and the wall-to-wall openings, the wall does not look like a fortress wall at the same time clearly dissecting the courtyard space, separating it from the city public square, as well as from the driveway leading to the underground parking garage. Sinking the courtyard down into the ground, the architect was also able to design double-height entrance areas that are nothing more nor less than 8,4 meters high. The colossal lobbies sport 100% glass walls, thanks to which the border between the outer and the inner space is practically erased, while the impression of a skillfully designed environment where the modern architecture is at peace with nature, is particularly strong.

None
None
None
None
None
None
None
None
None
None
None
None
None
None
None
None
None
None
None
None
None
None
None
None
None
None
None
None
None
None
None
None
None
None
None
None
None
None
None
None
None
None
None
None
None
None
None
None
None
None
None
None
None
None
None
None
None
None
None
None