Published on Archi.ru (https://archi.ru)

28.08.2007

Creating lounge atmoshere

Maria Fadeeva
Studio:
PANACOM


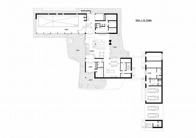
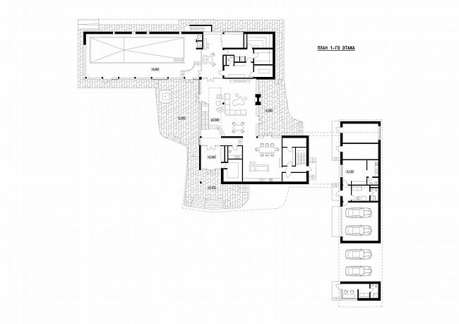
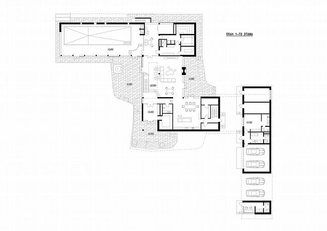
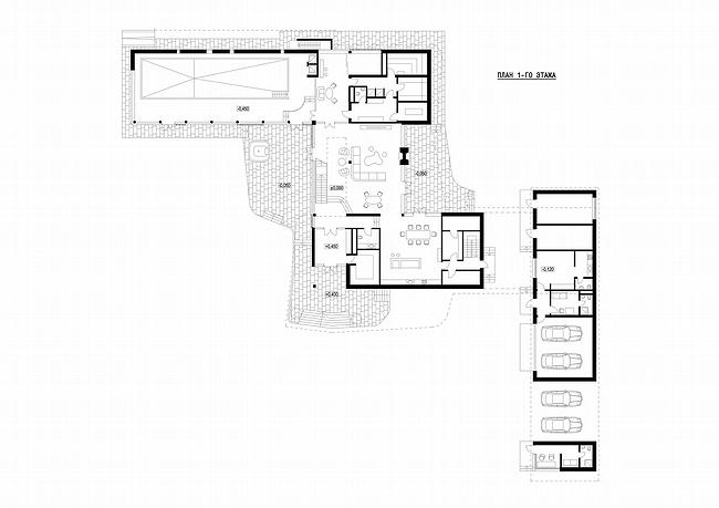
Large, 1500 m2, the house designed by architectural company PANAKOM for in Nikolsakaya Sloboda is the huge, but light and elegant variant of a country house in lounge-style. The authors of the project are playing a series of stylish miniatures of country life

Every day we have work to do, always in a hurry, and can’t stop even if everything’s done and no one asking anything. The more we work, the faster is our business life, the more we feel urge to have a good relaxation in rare moments of rest and it is fine when architecture of own house makes it better. When you look at this house, another one designed by PANAKOM for Nikolskaya Sloboda, you might think of the foreign word, now also usual in Russian, ‘lounge’. The architects, that a few years ago used to design regular houses and interiors with contrast combinations, seem to have relented now.

The large house (1500 m2) has imposingly spread on its site – like a man, who’s comfortably sitting in a deep seating armchair, spreading arms on the wide arms of the chair. The site location is quite advantageous, it views the pond – the banks of it we have already described, telling about the other three projects that make the ensemble of the settlement’s central zone.

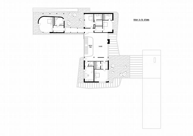
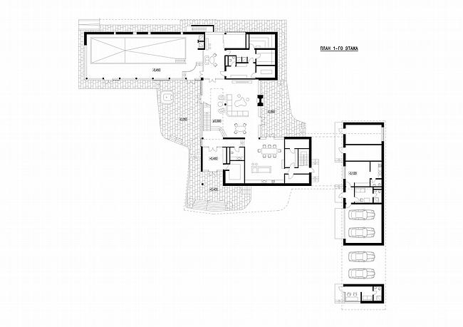
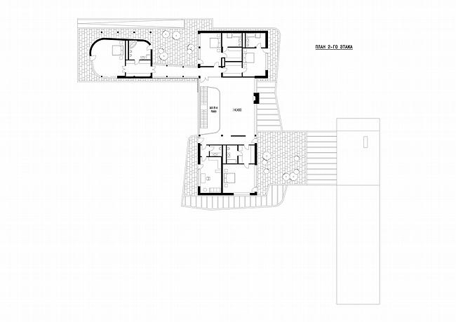
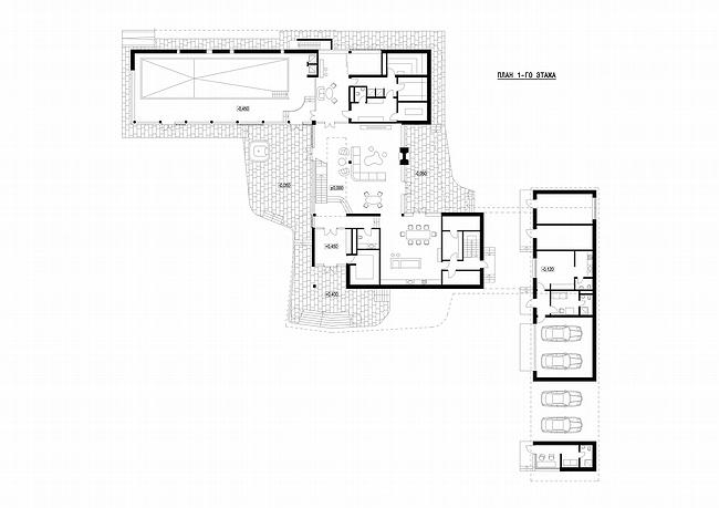
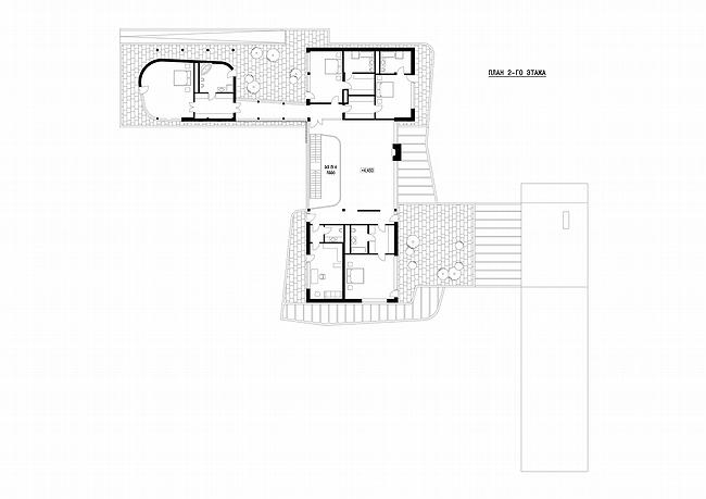
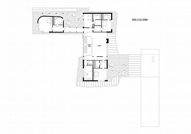
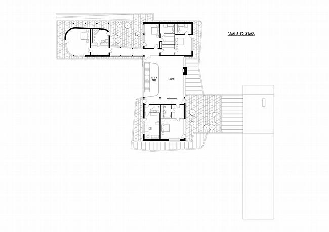
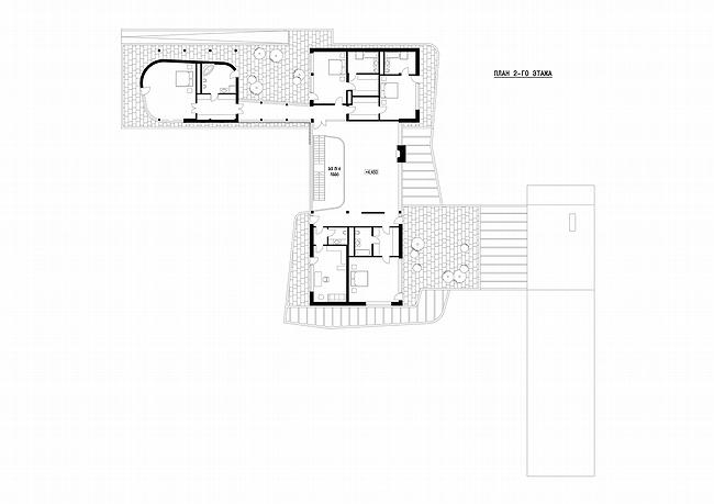
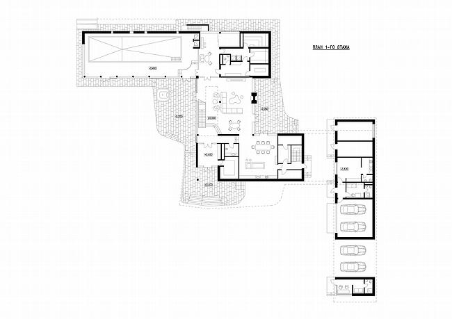
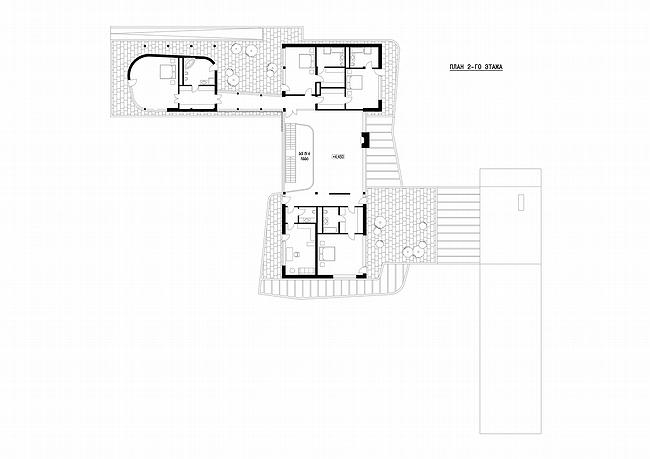
The house has three units: the first is the swimming pool with the owner’s bedroom over it, the second is the general zone - children rooms are upstairs, and the third one is the one-storey block of utility rooms and the garage. To unite all these components into a harmonic ensemble, the architects have made a few ‘stage miniatures’

The second ‘miniature’ is about country life. The main not private place, living room, is turned into verandah. It is right between the two yards. The exterior glass walls make the livingroom-verandah be seen throughout. Besides, from the both sides there are open wooden verandah decks, with the ways out to both. They become figural pass from the street to the seen interior of the living-room, and it leads to more closed inner rooms. So, instead of traditional contrast of ‘outside-inside’, there appears gentle flow of the space with different level of privacy: yard – verandah – living room, seen throughout – home.

The chain of connotations is maintained with the water theme that comes out all the time - the public pond outside, swimming pool inside and a small spa, appearing on verandah as if a drop has separated from the ‘waters’, also a kind of ‘conversion’.

This conversion-flow is more vivid in design of the living part facades: on some part shiny and transparent glass is covered with vertical wooden lamell-jalousie, and in some parts neighbors with blind wooden facing. Altogether these texture effects make a kind of continuous ribbon, flowing, vibrant, in which the façade is ‘wrapped’. This accentuates the horizontal outlines of the house, emphasized by the developed verandahs and canopies, marked with white color.

If get back to ‘miniatures’ about countryside life, the second storey design should be also pointed out. Bedrooms are separated pavilions, connected with passages. The parents room is connected by the glass gallery with the children room, and over the living room there is mezzanine, which also has ways to rooms. This mezzanine is another scene. The architects say that clients often ask to make one more living room on the second storey for more comfortable rest. It is quite large, and with most splendid views to the pond. On the whole the performance is interesting and quite in lounge style. Just like it is imagined in endless monotony of workdays.

None
None
None
None
None
None
None
None
None
None
None
None
None
None
None
None
None
None
None
None