Published on Archi.ru (https://archi.ru)

06.08.2012

A Stylish City in the Meadows

Tatiana Shovskaya
Architect:
Sergei Tchoban
Sergey Kouznetsov
Studio:
Ostozhenka Bureau
SPEECH

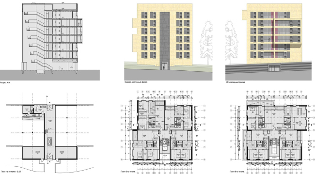
In the settlement of Zarechye of Moscow Region, the construction of the new residential compound “Grünwald” has been completed, the general designer of which has become the architectural bureau “SPEECH Choban&Kuznetsov”. This project has united four designer visions of up-to-date high-standard residential architecture.

This project was launched back in the pre-crisis 2004, when the company “Group LSR” set off to build a residential complex, one of the most notable features of which would be the high-quality architectural environment. The advantages of living outside the metropolis were to be combined here with the comfort and cozy atmosphere of a European city. The commissioner placed his bets on Russia’s leading architects, Sergey Choban and Alexander Skokan, while they, in turn, while developing the masterplan, suggested that the author team should be expanded by inviting other authors to work on separate volumes within the project. These people were Anton Mossin who at the moment worked for “Meganom”, and the German bureau “AssmannSolomon”. The land site, allotted for the construction of “Grünwald”, is situated on the river bank and is notable for a prominent height difference – about 5 meters. The residential compound borders on a wide field that separates it from the technology city of Skolkovo. In order to visually single out the territory and give it a cozy feel, the architects surrounded the “Grünwald” with an earth mound, into which they hid the parking garage. The mound forms two layers of public space: the main one, the boulevard surrounded by the buildings and protected by a green hill, and the secondary one – an array of terraces set upon this hill, i.e. on top of the parking garage, commanding a fine view of the surroundings. No two houses here are exactly alike. The round volumes mark the corners, while the sector building creates the dynamic entrance area. The height of the buildings is also carefully chosen – they tower just a little bit over the surrounding treetops, not domineering over the nature but just making their presence visible. The house designed by “Ostozhenka” studio, was aptly named “Sector” because it looks like a quarter circle on the layout. This shape, stylish by definition, did not require any extra volume elements – that’s why the facades here are dominated by the so-much-like-Ostozhenka pattern of window openings and the combination of finishing materials, natural stone and wood. The “Cubuses”, houses by the German bureau AssmannSolomon, originally the largest ones of all, got the facades with prominently protruding elements. Arguably, the most unusual facades are sported by the “Veil” house designed by Anton Mossin. They look as if they were covered with a green openwork shell that forms various floral ornaments. This shell serves the function of an extra façade and provides not only visual and acoustic protection but also creates the air buffer protecting from the heat in the summertime, which helps cut the air conditioning expenses. The round house, designed by SPEECH Choban&Kuznetsov and nps tchoban voss, according to the masterplan, was to become the outpost of the settlement, and the architects treat it accordingly as a tower, enhancing this metaphor with the rhythmical window belts. The facades of this house, with a poetic name of “Waltz”, are finished with rusticated stone blocks that the architects run between the window openings in crisscross bands. The interior of the well-like elevator lobby also takes the tower association to a new level: the light from the high-rise lights permeates it from top to bottom, and the elevators are accessed by hanging bridges.

None
None
None
None
None
None
None
None
None
None
None
None
None
None
None
None
None
None
None
None
None
None
None
None
None
None
None
None
None
None
None
None
None
None
None
None
None
None
None
None
None
None
None
None
None
None
None
None
None
None
None
None
None
None
None
None