Published on Archi.ru (https://archi.ru)

17.09.2007

Mannerism through modernism

Julia Tarabarina
Studio:
Architectural workshop Lyzlov («AML»)

Two buildings set projected by Nikolay Lyzlov for Pirogovo combines purity of forms with their sophisticated interpretation. The resulting complex image is submerged into its natural environment and at the same time re-shaped it.

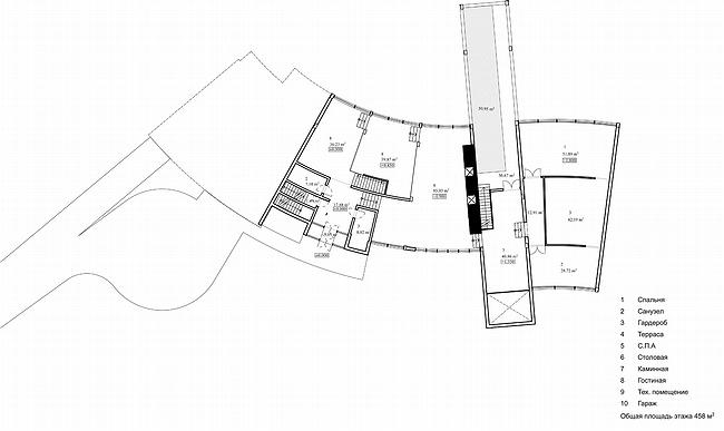
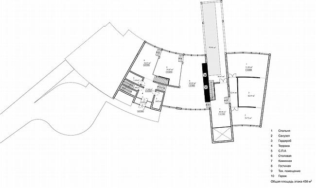
A villa projected by Nikolay Lyzlov for ‘Pirogovo resort collection’ consists of two buildings dug into earth next to the ideal surface of a golf-field in such a way so they were almost invisible. Most of the walls are of glass, are roofs are supposed to be covered with turf so that they would remind one of nearby fields. All these tricks are typical for a modernist villa; they help to hide a house in the surrounding landscape, uniting it with the nature; on the other hand, glass walls let the landscape in. In order to develop this idea the architect goes even further by taking it inside one f the houses: an inner wall in one of its living rooms is made of glass, and behind it a water surface – a pool - is placed. These motifs as well as the desire to be united with nature are the basic ideas of modernism. Digging-in, uniting a building with nature are implemented through the use of one very old, classical technique – namely, the houses reminds one of amphitheatres. It could be seen clearly in the layout of the larger building: its whole volume is placed around a relatively small circular square, and on the side turned towards its imaginary centre the house’s height decreases smoothly. The Villa-theatre overlooks its neighbourhood; the focus is on the circular lawn of the main court, which is given the place if an imaginary scene. Accordingly, the entertainment consists of watching arriving guests. Thus the central lawn is turned into a ‘court d’honneur, front court. The second house is smaller and is intended for one person. Its larger part is also curved although in the opposite direction; its focus is on the opposite side from the front court of the larger house, so that the two houses turned their backs to each other. Together the two curves create an S-shape, broken in the middle. At the end of the day the two houses start with ‘pure’ techniques and clear geometry and then create a complex ensemble, which works through associations, changes and fluctuations. One moment it is a circular amphitheatre, then suddenly it turns into a model house; it is sometimes visible, sometimes not; it is transparent, closed, large and narrow – lots of variations are given by just walking around. The villa is not just hiding inside the landscape; rather it is playing with nature and developing it by adding new aspects

None
None
None
None
None
None
None
None
None
None
None
None
None
None
None
None
None
None
None
None
None
None
None
None