Published on Archi.ru (https://archi.ru)

13.06.2007

An apartment building in Spasonalivkovsky lane

Julia Tarabarina
Studio:
Alexandrov and partners

The reconstruction of an apartment building (18/1 Spasonalivkovsky lane ) has recently been finished. The project got a Bronze Award at ‘Zodchestvo’ 2003

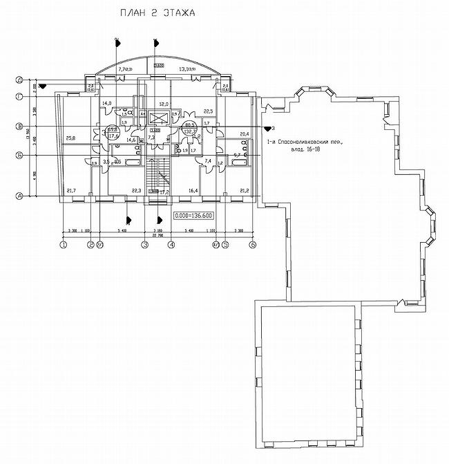
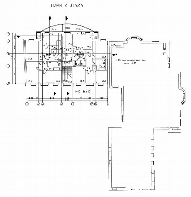
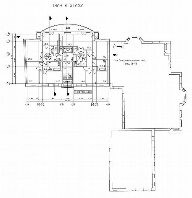
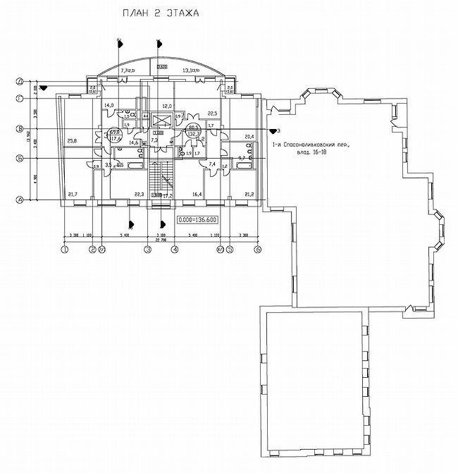
The building is placed in the middle of a residential area not far from Yakimanka and the Igumnov house that now belongs to the French Embassy.  The four-stored apartment block was built in 1912. It had large windows, spacious apartments (two on each store) and an archway leading to a courtyard. In 1932 it had two more stores build on. The archway was blocked up, and the apartments turned into communal flats. In this shape the building existed till 2002 when the reconstruction had started.

The reconstruction preserved all outer wall of the 1912 building, and almost everything that had been left from its modest and austere Southern façade, which overlooks the lane. The main stairs were replaced by a monolithic construction of reinforced concrete that unites stairs and lift. The bay window (Southern façade) gave way to a vertical line of stained glass. Thus the façade looks plainer and more graphic that it used to be although in all other details it still very similar to the original.

The other side of the building has expanded since it got a risalit of brick, therefore the apartments’ inner space have been increased. The risalit differs from the rest of building in colour and texture: the older part is yellow and red, while the new one is redbrick. It also has more glass as its windows are higher and larger. They are placed in the corners of the risalit so the apartments get maximum of daylight. At the second store level a semicircular ledge with glass walls is added. It has a good view on the adjacent courtyard. The risalit gets even more of space since every other store has console loggias.

The two stores built in 1932 were demolished during the reconstruction. In their place four new stores and an attic have been added.  The top store is decorated by circular columns and recedes from the façade plane slightly on the southern side and considerably – from the north. As a result a deep and comfortable lounge has been created. It would belong to the owners of the luxurious apartments at the top floor. These two penthouses are two-layered; they include the top floor and the attic, the lounge with its direct view towards Kremlin. Other apartments get back to their original size of the period of modern – with the addition of risalit. One could say that the apartment block not only has been revived; it also doubled in size.

The resulting building should be classified and reconstruction and enlargement project.  It shows careful symbiosis of rational modern, modernist stylization, some elements of postmodernism (columns of the attic) and constructivism (corner windows). The combination of cast-iron bars, the geometry bricks and old tiles, consoles, corner windows and the top floor columns gives one the impression of the Art-Deco style. This impression has its logic since Art Deco is exactly what could be finding in the middle of the time period between the early 20th and the first years of the 21st centuries.

None
None
None
None
None
None
None
None
None
None
None
None
None
None
None
None
None
None
None
None
None
None