Published on Archi.ru (https://archi.ru)

13.12.2011

Ship of the Boundless Steppe

Anna Martovitskaya
Architect:
Andrey Asadov
Alexander Asadov
Studio:
ASADOV architects

Near Rostov-on-Don, Alexander and Andrew Asadov have designed a villa community “Starocherkasskaya Riviera” (“Riviera of Old Cherkassy”) that has now entered the stage of implementation.

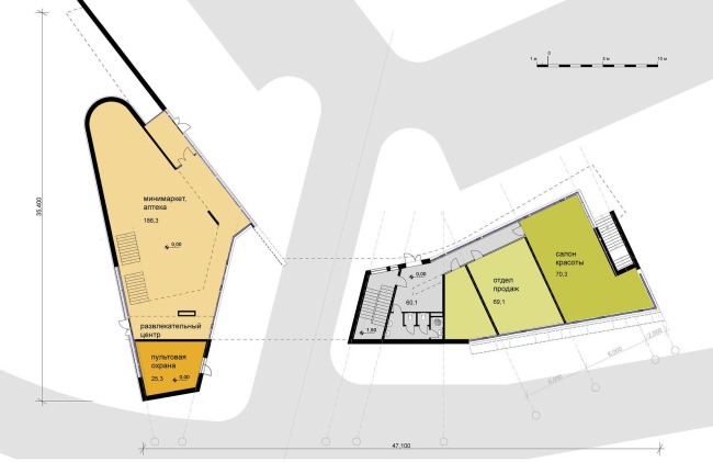
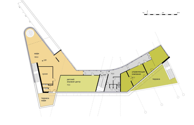
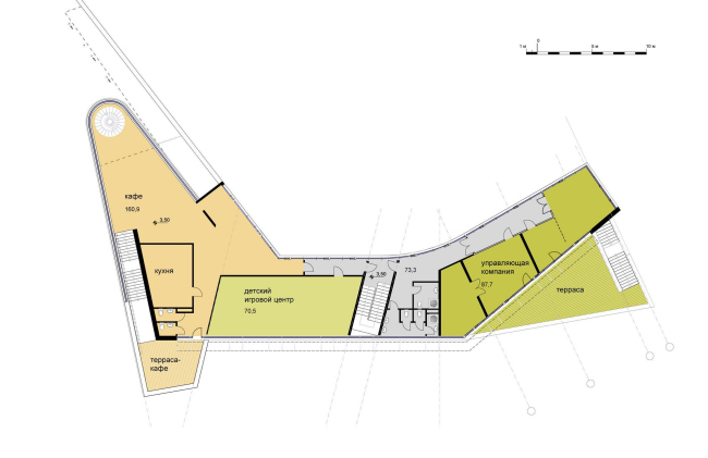
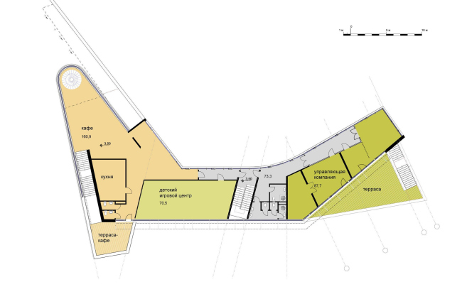
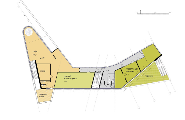
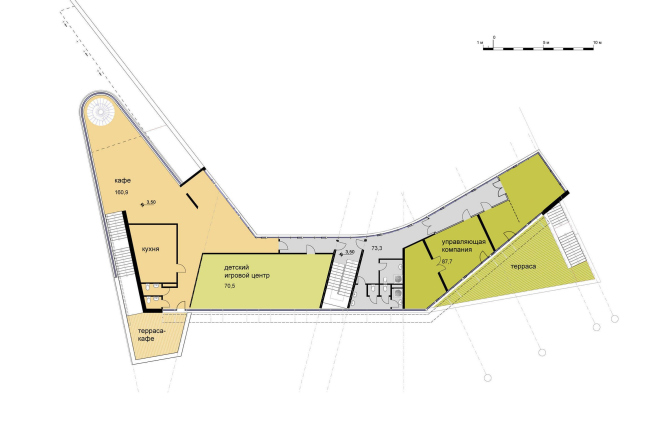
To Asadov architects, the majestic river became the key factor in developing the masterplan for the future settlement. Among other things, the fact that the site has a fairly narrow and elongated shape and is stretched along the Don river, has dictated the creation of several “lines” of development, situated at different intervals from the river bank. The land plots on the resulting first building line overlook the landscaped embankment, while between the second and the third lines, the architects have placed the central boulevard of the settlement. The masterplan becomes “actively plastic” not only because of the curved riverbed however, but also because of the man-made seascape – the architects have made a water channel whose shape resembles a loop or, rather, a large inverted comma, biting deep into the territory of the settlement. Accordingly, all the lengthwise streets in the community, including the already-mentioned central boulevard, are not straight, as would have been otherwise expected, but follow the curved lines of the man-made body of water. This solution has given the architects an opportunity to make their layout less monotonous which would have been the case if it had just followed the configuration of the plot of land. “From the general layout to the types of dwelling, we did everything to develop the ideas of total diversity in our architecture – Andrew Asadov shares - and because the layouts of all the sites were originally meant to use the advantage of being located next to the river, we positioned the cottages with a one-cottage shift. Thanks to this simple solution, each of the houses gets its own sector of vision commanding the river”. “We developed several types of houses, each of which is supposed to have multiple options of finishing and cladding, and this resulted in the fact that no two villas in the community are exactly alike” - Andrew Asadov explains. Our architectural solution is based on the image of “shell” that protects the house from the eyes of the neighbors and the passers-by and at the same time opens up the house in the direction of the river. On the layout, each of the houses has a “funnel-like” shape, while the wide hood of its roof makes room for a wide terrace overlooking the Don. And, in spite of the fact that the community has only four types of dwelling officially registered, the diversity of the colors and the facing materials used has given the architect an opportunity to achieve the effect of the houses looking really unlike one another. The “visiting card” of the entire development is the entry group building. The architects have designed it both as a “beacon” of sorts, positioned at the settlement entrance, and a sightseeing platform overlooking the future land tenure and vast expanses of the steppes of the Cossacks. The latter is located at the top level of the tower and can be accessed from the inside of the building itself, as well as from off the street. Accordingly, the development itself presents an asymmetrical composition, one wing of which “soars up” as if the snout of a ship. The building is lined with glass contoured dynamic windows and faced with beige-and-sand-colored “Baku” stone, whose color rhymes perfectly with both southern architecture in general, and with restrained color of the steppe that surrounds the settlement.

None
None
None
None
None
None
None
None
None
None
None
None
None
None
None
None
None
None
None
None
None
None
None
None
None
None