Published on Archi.ru (https://archi.ru)

06.12.2011

From Empty To… Full

Anna Martovitskaya
Architect:
Levon Ayrapetov
Valeria Preobrazhenskaya
Studio:
TOTEMENT/PAPER

In the prestigious villa community of Novo-Uryupino, the architectural studio TOTEMENT/PAPER reconstructed one of the houses. The house, initially executed in the traditional “New Russian” style, got an “updating” injection and a completely renovated look.

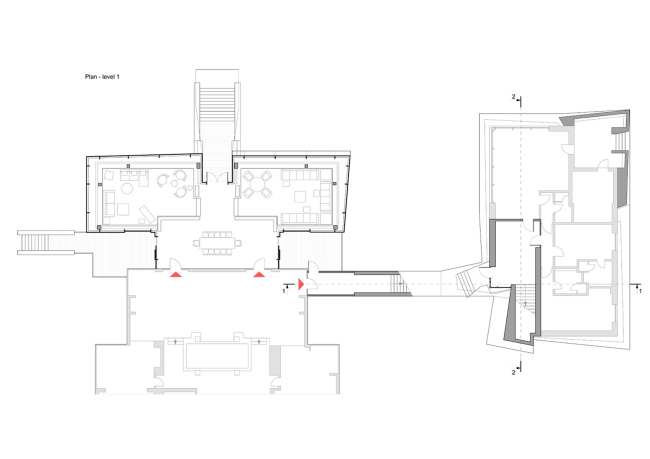
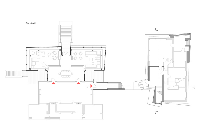
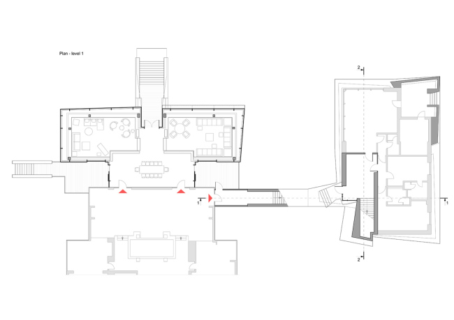
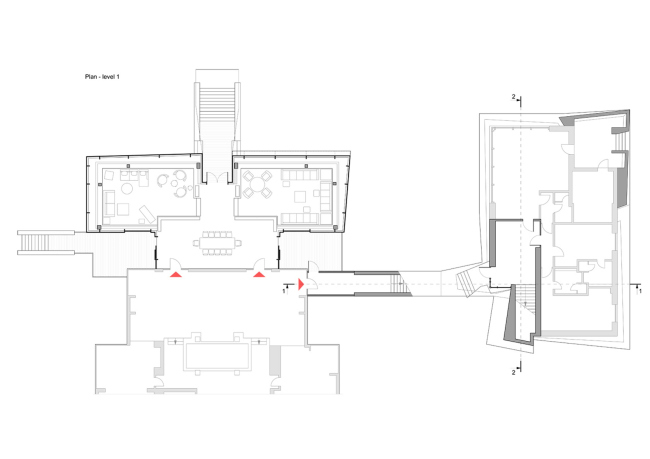
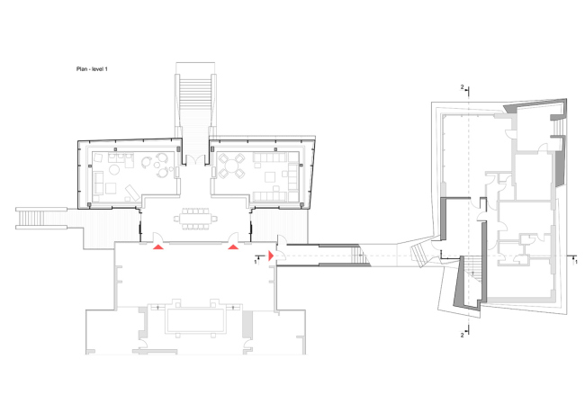
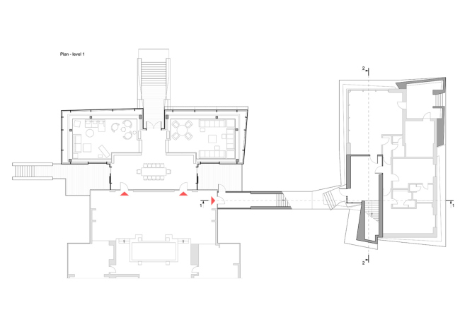
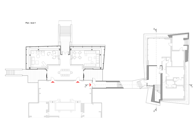
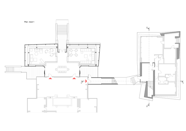
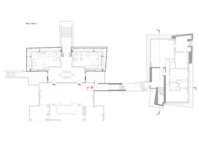
TOTEMENT/PAPER studio was invited to take on the project back in the summer of 2010. The commission was put in this misleadingly simple nutshell: add a few new constructions to the several existing ones. However, upon careful examination of the house and its surroundings, the architects came to a conclusion that they were in for some quite sophisticated and non-trivial work. “Developing the existing architectural idea any further would mean to lose what harmony remained there on this site and overload it with unnecessary bulk – the authors share - that’s why we chose to create something entirely different, something that not only would be a contrast to what is there on this particular site but also in the whole community”. The client’s family grew larger, and it needed new premises – namely, recreation area for the grownups and a spacious children’s playroom. But then again, there were some “underwater stones” here as well. For one, the architects were to find the space for both of the new areas outside – simply because they were not supposed to make any changes to the existing house. And, while the place of “grownup” recreation lent itself to be placed on the existing terrace above the swimming pool, finding the best placing solution for the children’s playroom was fun and games. “Because there were no free areas either inside or adjacent to the house, we made the decision to reconstruct the old guest house, adding yet another storey to it and connecting it to the main house with a warm skywalk” – explain the authors of the project. The solution for the “grownup” block came in the form of a glass structure, visually merging with the environment and commanding fine views of the yard and the surrounding scenery. It consists of two glass parallelepipeds with slanted walls, shifted relative to the axis of symmetry of the existing house. The “children’s” block, unlike the grownup one, was build virtually blank – in this volume, having a complex shape of five-pointed flywheel; there are only a few slits of windows and a light in the roofing. The main facing material was chosen to be aluminum. The two different volumes are bridged by a panel “labyrinth” picture consisting of black and white stones on the roof of the glass annex.

None
None
None
None
None
None
None
None
None
None
None
None
None
None
None
None
None
None
None
None
None
None
None
None
None
None
None
None
None
None