Published on Archi.ru (https://archi.ru)

30.11.2011

Economical Architect’s House

Anna Martovitskaya
Architect:
Roman Leonidov
Studio:
Studio of Roman Leonidov

While designing a country house for himself, the architect Roman Leonidov proceeded from the need for reasonable savings of his resources and therefore came up with a simple and extremely cost-efficient solution.

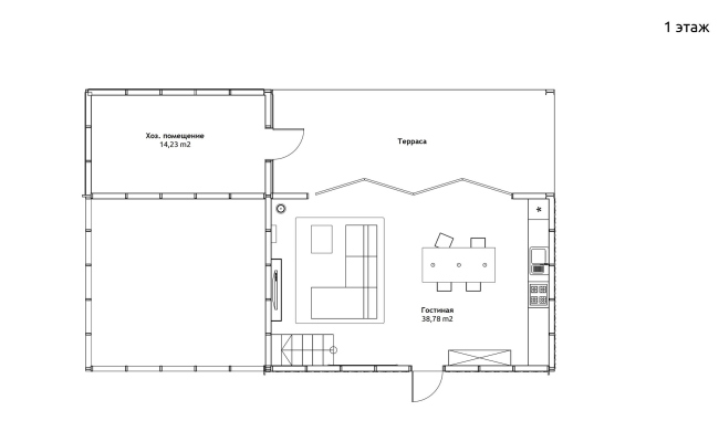
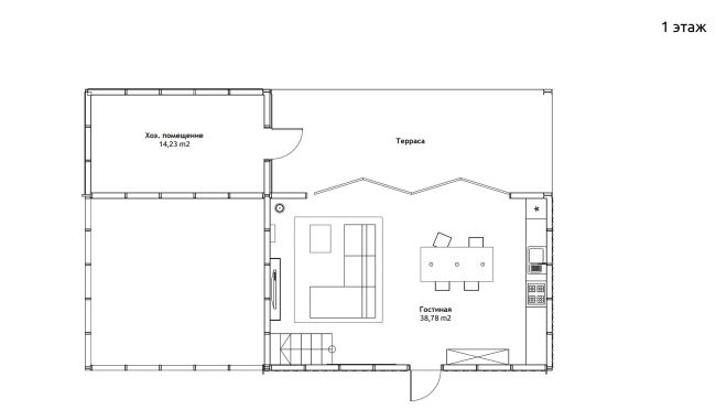
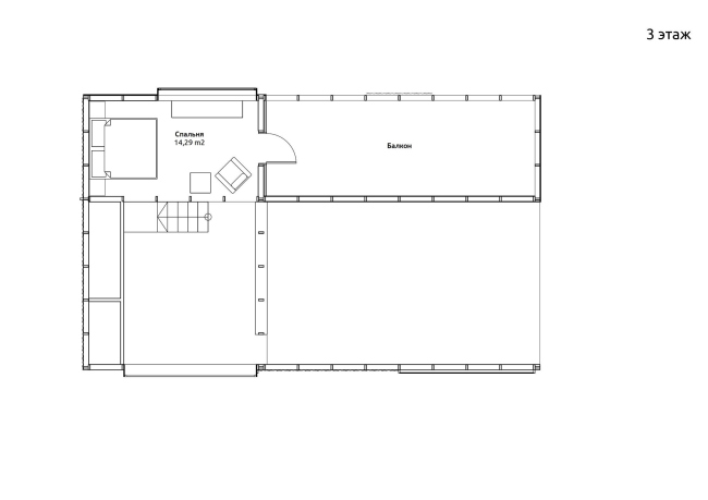
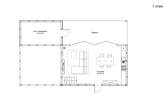
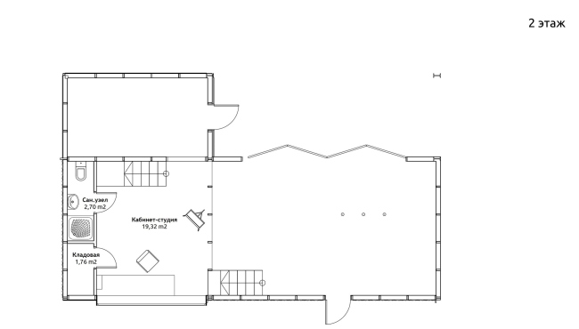
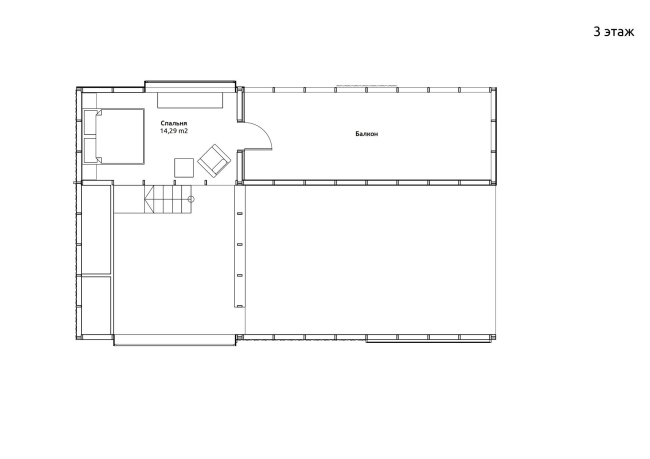
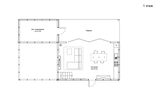
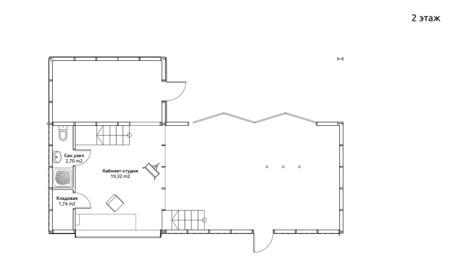
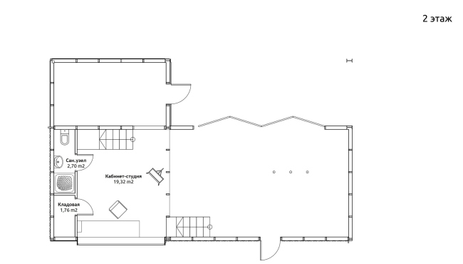
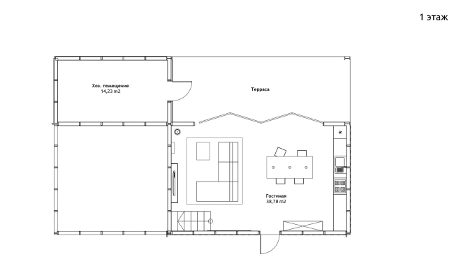
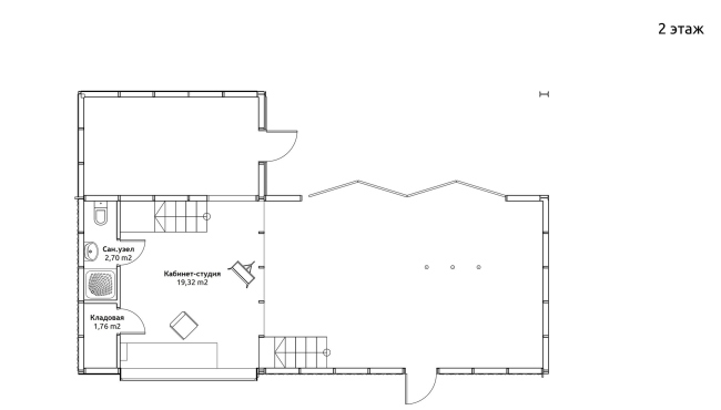
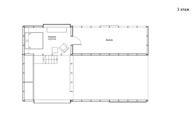
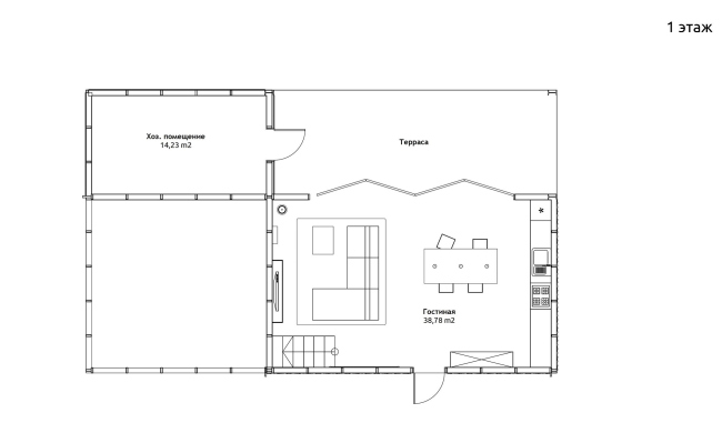
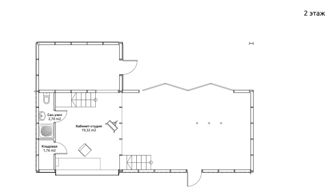
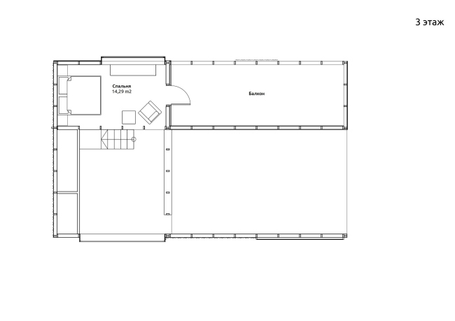
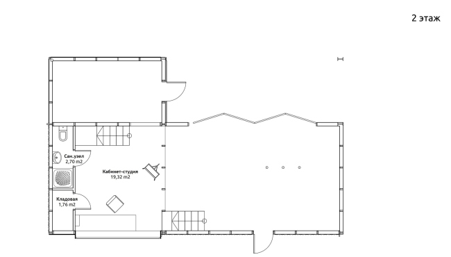
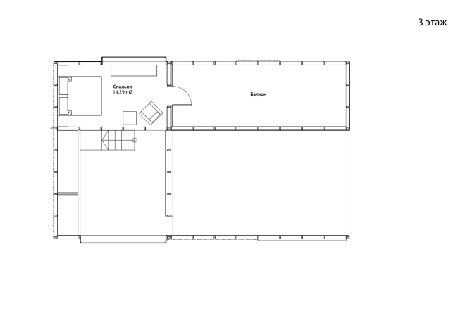
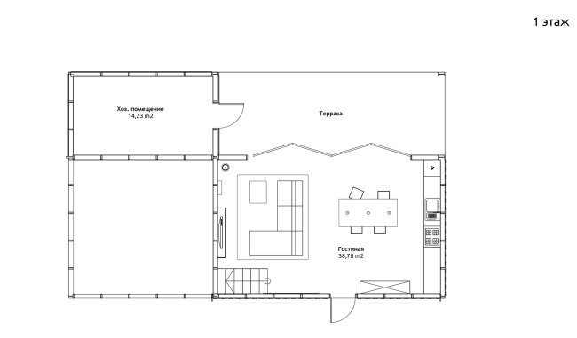
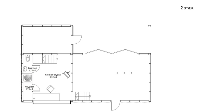
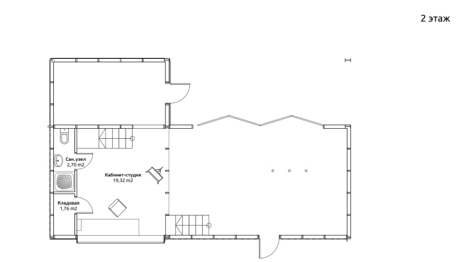
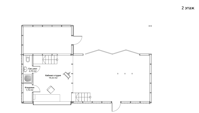
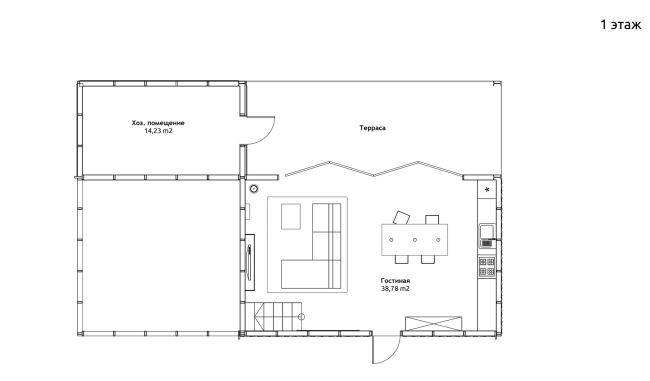
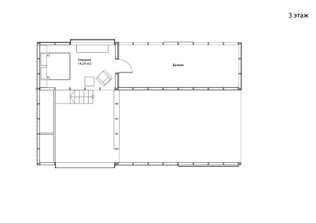
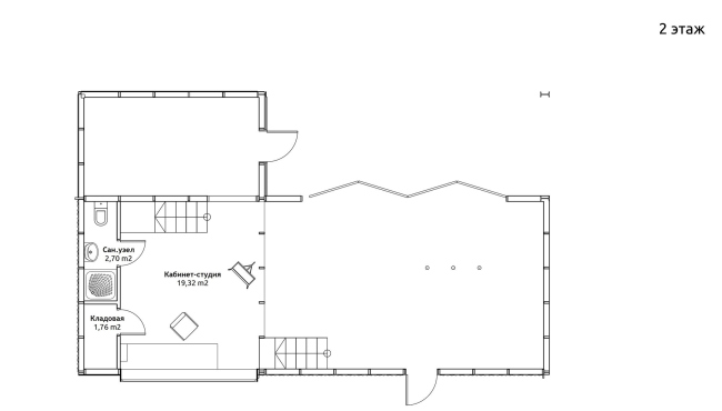
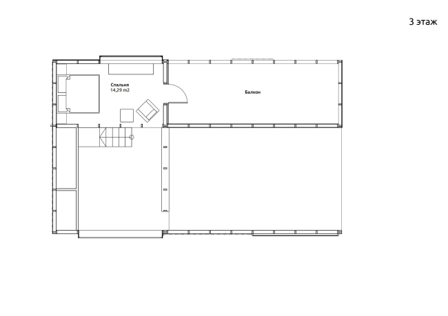
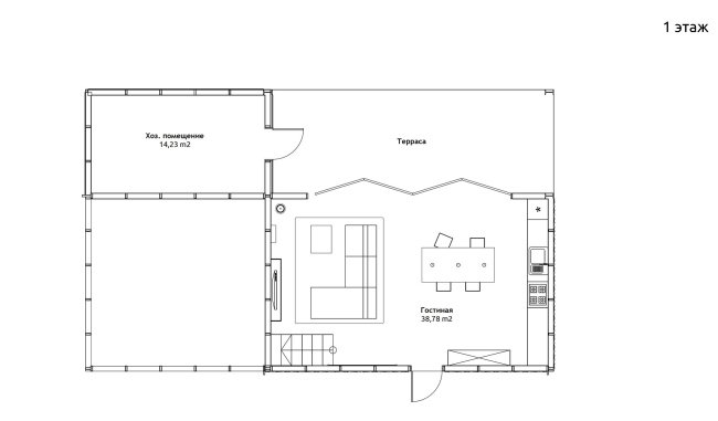
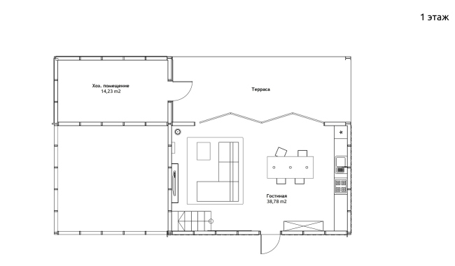
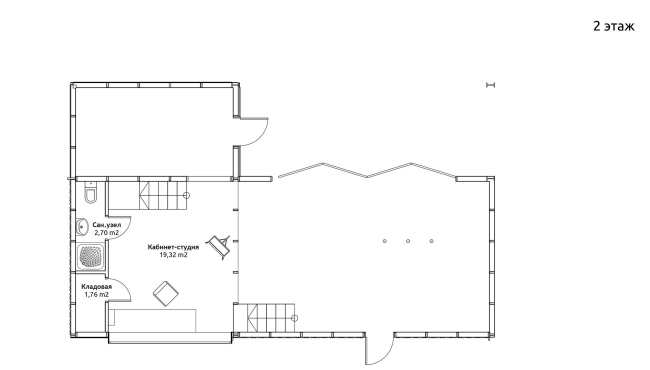
The site that is designed for the construction is located in Moscow’s suburbs, on the territory of a gardeners’ partnership that borders on the scenic field and the adjacent forest. It is this proximity to the very spectacular scenery coupled with the prominently rectangular shape of the plot of the land that prompted the architect the best possible placement solution for the future cottage. This house that the author is not planning to use for permanent residence but only as his “dacha”, i.e. country house for rest and relaxation, is placed on the front side of the plot, along one of the smaller sides of the rectangle, the length of the construction virtually equal to the width of the site. All the key rooms of the building are maximally open to the field and the forest - meaning that the picturesque scene will become an inherent part of the entire house. Because the architect initially laid stress on economy, he opted for using the most inexpensive and accessible building materials thanks to which he was able not only to efficiently cut the construction costs but also complete the project in a very short time. The function of the basic structural system is performed by the metal frame that holds light self-supporting sandwich panels. The facing materials are wood lath and corrugated sheets that appealed to Roman not only with their democratic price but also with their ability to withstand aggressive environment for a long time. On the façade facing the street, there are several such sheets; in order to diversify and enliven the corrugated surface, the architect paints them white, black, and red. On top of them, he makes a few large-font inscriptions. The interior finish also uses natural and accessible inexpensive building materials – the floor, according to the architect’s plan, is going to be wooden board, while the walls and the ceiling will be sheathed with plywood with the truss structures showing out. The large amount of wooden materials is meant to soften the initial stiffness of the basic metal framework, while the neutral colors (the natural honey color of the wood and the white furniture) will “dissolve” the interior in the exterior and will immerse my guests into the atmosphere of peace and relaxation” – Roman explains. The atmosphere of comfort in the house will also be achieved by the large glass windows; apart from that, they will provide the maximum amount of natural ambient light, which is especially important for the facility that operates on electricity.

None
None
None
None
None
None
None
None
None
None
None
None
None
None
None
None
None
None
None
None