Published on Archi.ru (https://archi.ru)

01.11.2011

Sculptural Minimalism

Anna Martovitskaya
Architect:
Sergey Skuratov
Studio:
Sergey Skuratov architects

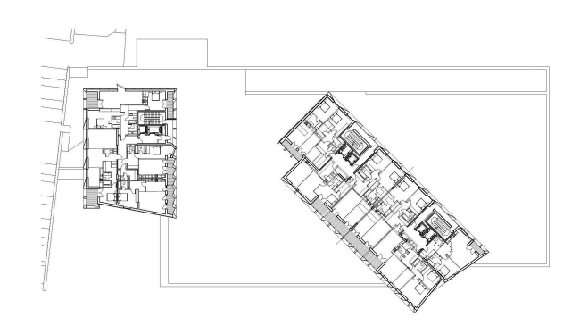
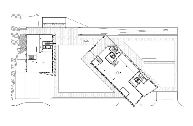
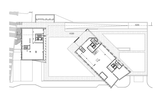
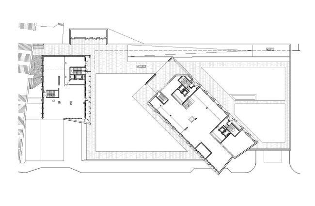
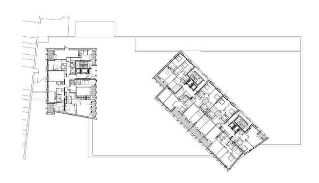
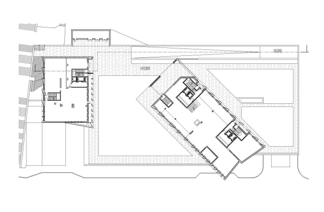
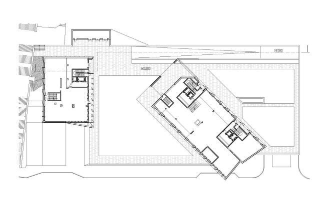
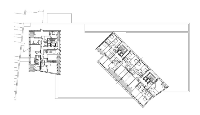
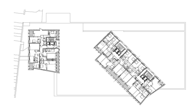
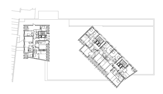
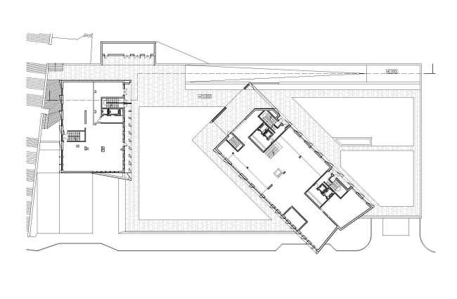
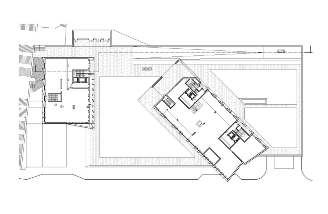
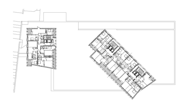
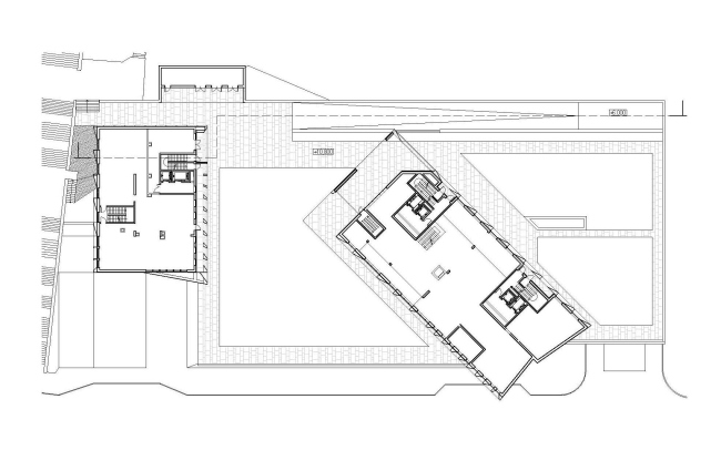
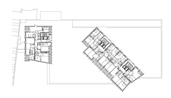
On Rostov-on-Don’s main embankment, “Sergey Skuratov Architects” Studio has designed a new residential compound that promises to become the city’s new skyscraper centerpiece.

The architect recalls that the first encounter with the future building site and its immediate surroundings made a very depressing impression upon him. “In front of me, I saw a steep ill-looking slope with multi-stored piles of bricks and rich people’s villas scattered here and there”. Incidentally, one of such villas is located directly behind the future construction site, and the authors of the project got an early “polite” warning that it was not to lose its river view. The only other “cultural” landmark, as it turned out, was the monument of Maxim Gorky standing at the embankment - located opposite the Gazetny side-street that comes down to Beregovaya Street a broad stairway, this monument organizes the space at least to some degree, and this antonymic pair – the monument and the villa – mostly determined the composition of the new structure. The building consists of two towers, put on a one-piece stylobate. One skyscraper is placed perpendicular to the center on the embankment, the other – at a half-turn to it; it faces the aforesaid monument and the square in front of it. The space between these two volumes is just enough for the villa not to feel “cut off” from the Don River. The side ends of the high-rises are “sunk” inside the buildings and are made up of individual segments that are “hinged” into one another, while the main façades are made from the windows with wide vertical slants of different angles – the architect alternates the openings in such a diverse and dynamic manner that from a distance the surface of the façade looks as if it is covered by vertical blinds whose lamellae are chaotically turned in different directions. The façade of the three-storey stylobate gets a more organized structure in this sense – thanks to more even arrangement of the lamellae it takes on an almost-invisible look. The visual lightness of the entire structure is also enhanced by the material chosen by Sergey Skuratov – it is light-colored natural stone that perfectly fits the character of the “southern” architecture and openly “protests” against the red-brick housing of this part of city. The new building will dominate the embankment and the whole downtown area not only because of its height. Thanks for the light color of the stone that is not very much characteristic of today’s Rostov-on-Don, and Skuratov’s trademark minimalist plastics, the volumes are made to look like sculptures that are capable of changing their look depending on the light and time of the day.

None
None
None
None
None
None
None
None
None
None
None
None
None
None
None
None
None
None
None
None
None
None
None
None
None
None