Published on Archi.ru (https://archi.ru)

19.09.2011

Copper Stalagmites of Pyatigorsk

Anna Martovitskaya
Studio:
Sergey Kisselev & Partners

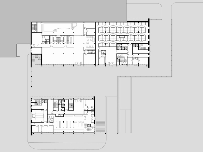
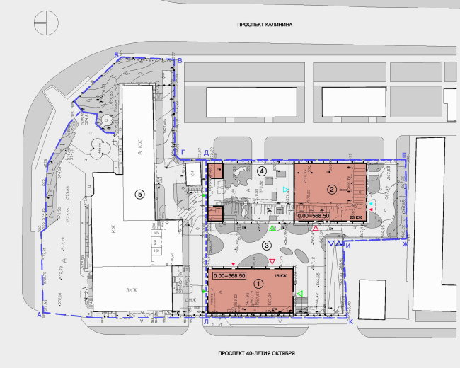
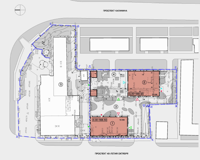
In the very heart of Pyatigorsk, “Sergey Kiselev and Partners” Studio has designed a deluxe high-rise residential compound with a simple yet expressive silhouette that was pre-determined by the surrounding mountains.

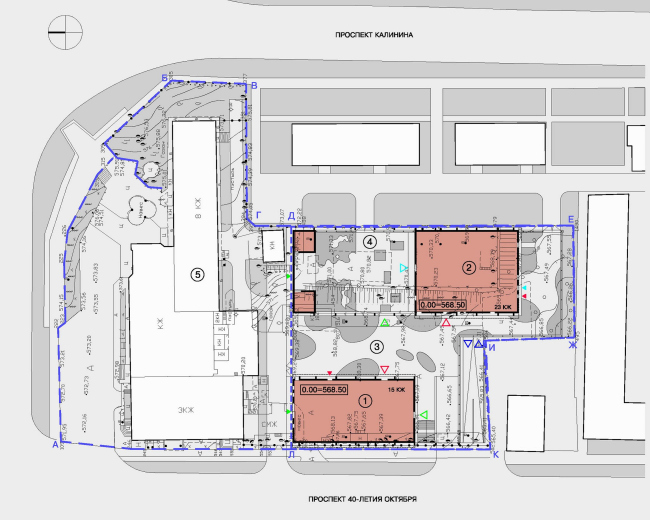
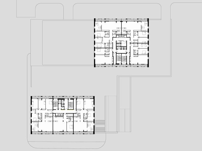
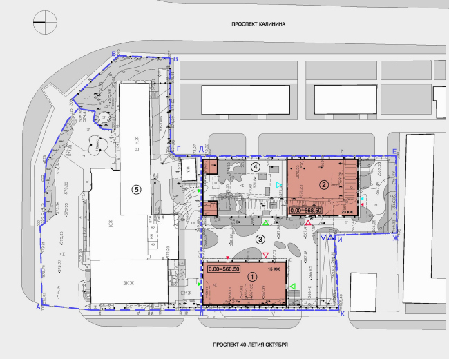
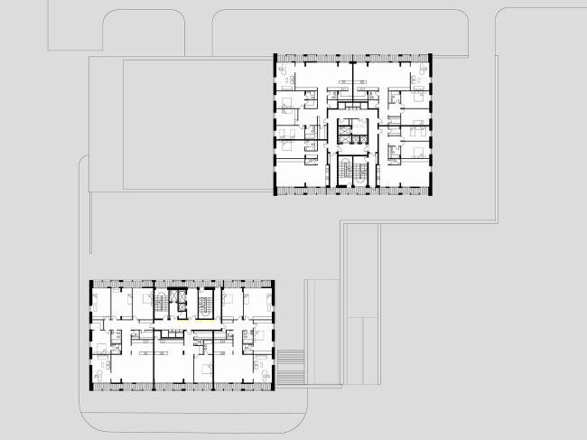
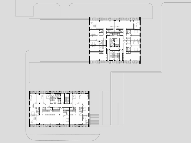
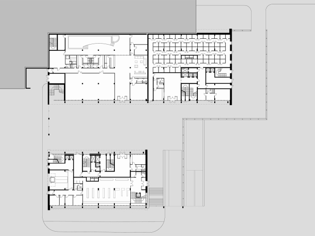
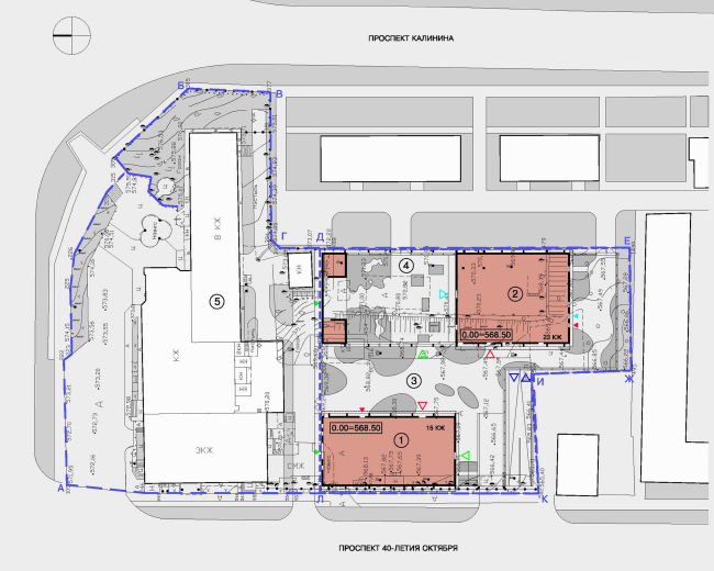
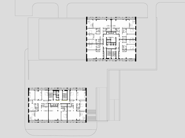
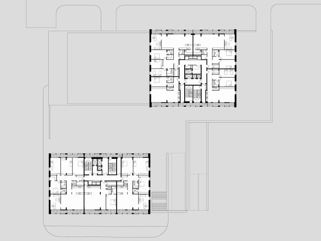
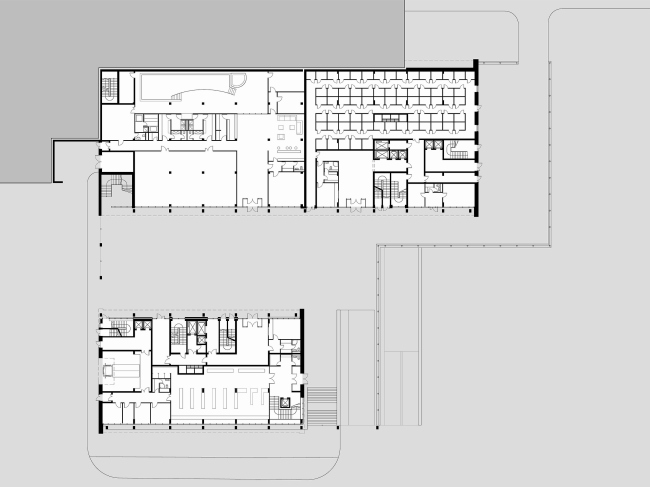
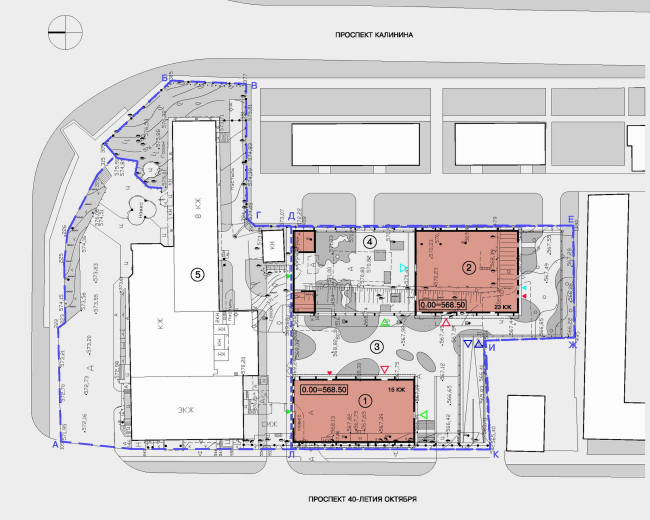
The investor had a few requirements that he put forth to the architecture of the future complex: expressive and memorable look, design, and finish that would answer the “deluxe” definition, height of the development no more than 75 meters. Thus, the specifications contained a fair amount of contradiction from the very start: the deluxe house was not to be a small or a “chamber” one, simply because the investor wanted to use the land site to its full potential. The layout of the development resembles the open quarters of the Portzampark: the perimeter is fixed with the help of two towers, between which, there’s a diagonal pedestrian-only courtyard. The active relief (the difference of heights between the northern and the southern end of the site is almost 6 meters) also predetermined, to a large degree, the composition of the future development.Its underground part is occupied by a parking garage that, as you move towards Kalinin Avenue, becomes a three-level one; the courtyard is raised above the street level, and the most upper terrace is occupied by the kindergarten’s playground. The residential volumes have a different number of floors – 15 and 23 respectively – the taller building being almost square on the layout, the lower one being a rectangle that stretches along “Sorokalrtiya Oktyabrya” Avenue. “First we designed the towers with roofs that were flat but then we realized that such buildings would have been out of place against Pyatigorsk background, - explains the chief architect of the project Andrew Nikiforovso we decided to give the two houses simple, even all-too-laconic roofs of a gable shape. Semantically, such a shape resembles a house drawn by a child – yet with all of its simplicity it perfectly serves to create the expressive silhouette impression”. The two houses also resemble two stalagmites that look very much in place in the hill scenery of the city and harmoniously fit in with the inevitable “cardiogram” of the Caucasus ridge on the horizon. Speaking of ridges - the ridges of both roofs are cut through in several places - the southern climate allows making this structure as economical as possible because it needs neither heating nor glass windows.

None
None
None
None
None
None
None
None
None
None
None
None
None
None
None
None
None
None
None
None
None
None
None
None
None
None
None
None
None
None