Published on Archi.ru (https://archi.ru)

14.09.2011

Theater in cube

Anna Martovitskaya
Architect:
Levon Ayrapetov
Valeria Preobrazhenskaya
Studio:
TOTEMENT/PAPER

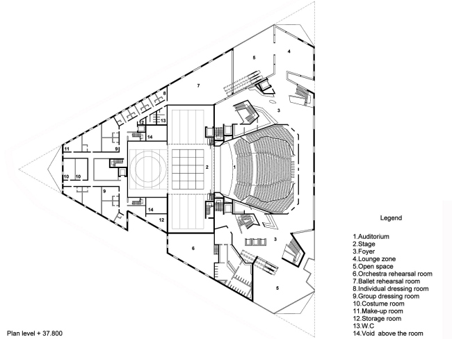
In the South Korean city of Pusan there was held an international open architectural contest on the best project of the Opera Theater. One of the participants of this contest was the architectural bureau TOTEMENT / PAPER.

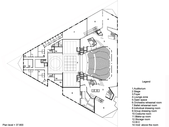
Levon Airapetov and Valery Preobrazhenskaya, directors of TOTEMENT / PAPER recall that they got interested in the contest at once – first of all because of the function of the object (the complex included two concert halls – for opera performances accommodating 2000 seats and general for 1100 -1300 seats), its large floor space (up to 60,000 sq m) and, of course, it’s location on an artificial island. Image of the building is based on a cube. But TOTEMENT / PAPER placed it on one of its edges. As the theatre is located in the centre of an artificial island one of corners of the cube completely disappears under the water which surface in turn is reflecting and highlighting the sloping edges. In addition, the cubic form of the building is made the facades equally important – according to the architects the theatre will look equally dynamic both from the embankment of Pusan and the sea. The cube is maximally open to its environment: its numerous folds of varying depth, formed during the construction of the complex shape, make the cover of the building look like a skillfully peeled skin of an exotic fruit, which seems to be stretching like a spring, then curling into a tight spiral. Dynamism of the invented structure is highlighted by materials: external surfaces of the cube are covered with sheets of polished metal, interior walls of balconies and suited are painted in bright red. "Due to the metal cube is reflecting the ground and water, its top is reflecting the sky and the sun, joining the four elements of the world, - the architects explain their idea. – Red color, in turn, brings a set of visual associations (a fiery crystal, a blossoming flower) and becomes a very memorable image. "Of course, the red color was also chosen by the architects because historically it has always been associated with the theatre, especially opera, which halls have traditionally been decorated with the red velvet”.

None
None
None
None
None
None
None
None
None
None
None
None
None
None
None
None
None
None
None
None
None
None
None
None
None
None
None
None
None
None
None
None
None
None
None
None
None
None
None
None