Published on Archi.ru (https://archi.ru)

24.08.2011

Logistics specialist centre

Anna Martovitskaya, Julia Tarabarina
Studio:
Architectural bureau of Yuri Vissarionov

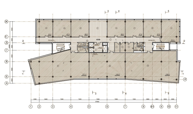
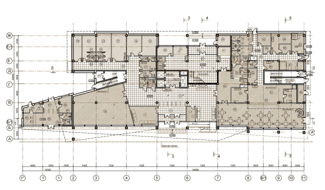
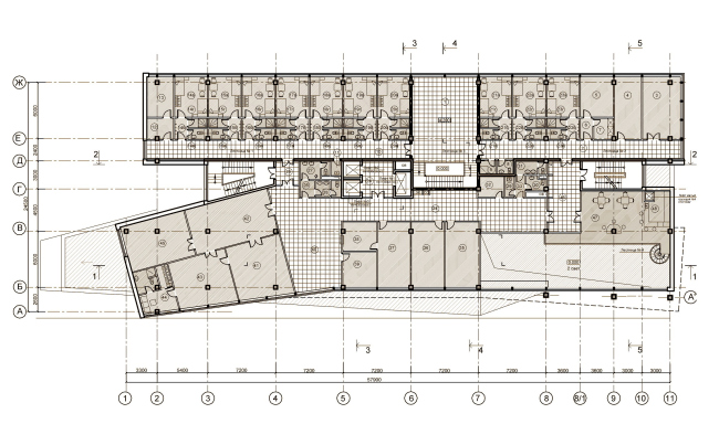
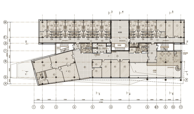
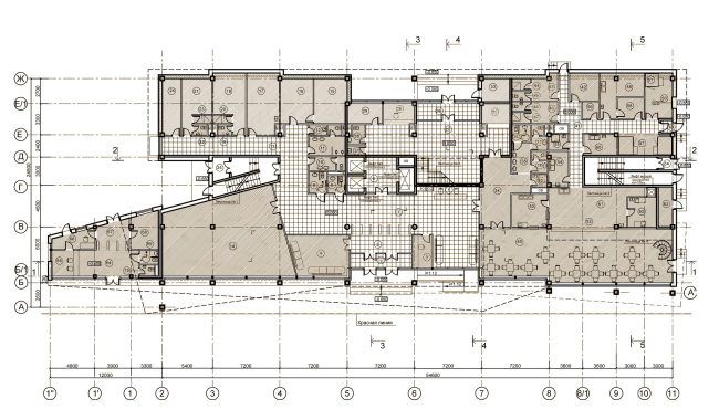
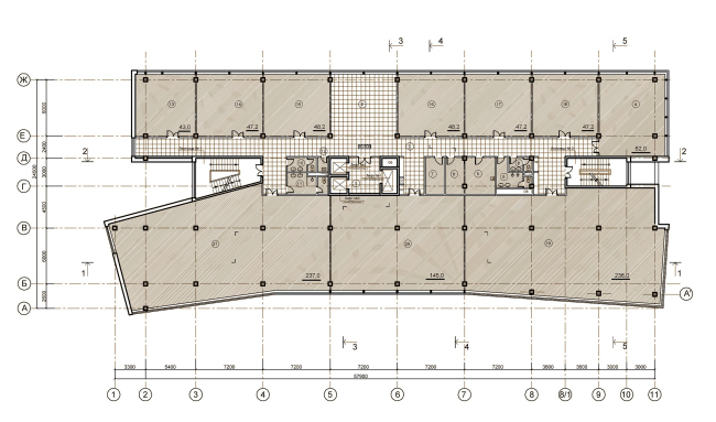
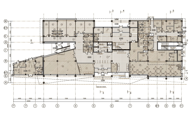
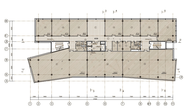
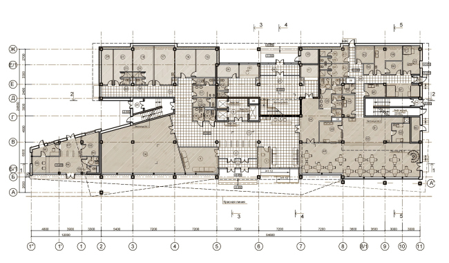
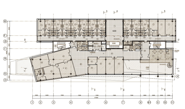
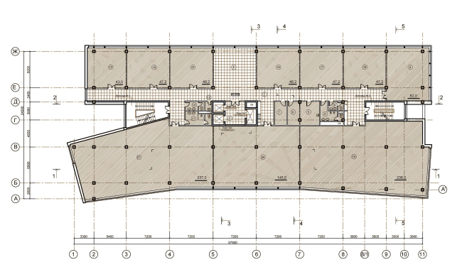
PTAM of Yuri Vissarionov designed a hotel building with offices in Zelenograd.

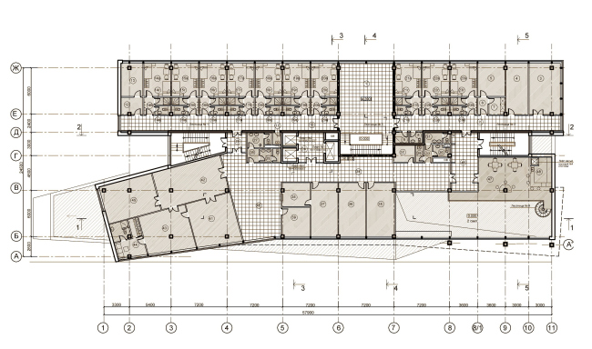
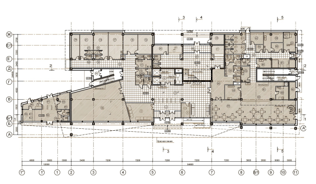
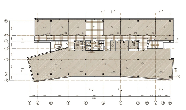
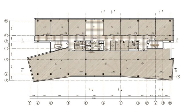
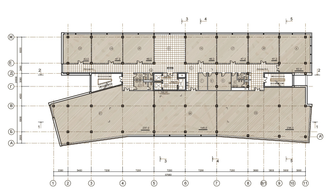
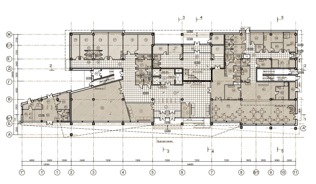
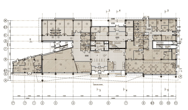
The complex has an "on-site" status, which means it is built on the territory of an organization - International multi-modal center - for “office use only”. Probably this fact had the most impact on the functional program of the complex, designed Vissarionov’s PTAM. Though the future building is a hotel it mostly consists of offices (more than 5000 sq m of office spaces out of 8500 square). In fact, a small block with comfortable rooms is inserted into the office facility. Entrances into offices and hotel are designed from at opposite sides of the building. From one side the architecture of the complex is absolutely formal: rectangular volumes and wide bands of windows resemble classic modernism of the 1970s, all industrial and educational buildings built in large amounts at the time. The authors were right: this solution is very appropriate in an industrial environment, but at a closer look, it appears that the architects seamlessly blended brutality and laconic of modernism with high-tech elements. The main facade is designed not straight and flat as it was common in 1970, but curved. Glass material with long horizontal bands of windows is divided here into three layers, neatly wrapped with a thin strip of concrete from the both ends and at the top. The only exception is the first floor, it is fully glazed and is just occasionally lined by thin vertical lines – it houses lobby and a canteen. On top of the glass strip they put a 3 storey "bar" which "nose" (about a third of the total length) is drawn to the ground. It partly pushes off the first floor in the opposite direction - the lobby and canteen become more independent from the entire complex, and the dynamically skewed end adds this part of the building distinct resemblance with a high-speed train.

None
None
None
None
None
None
None
None
None
None
None
None
None
None
None
None
None
None
None
None
None
None
None
None