Published on Archi.ru (https://archi.ru)

16.08.2011

avant-garde

Julia Tarabarina
Studio:
Architectural bureau of Yuri Vissarionov

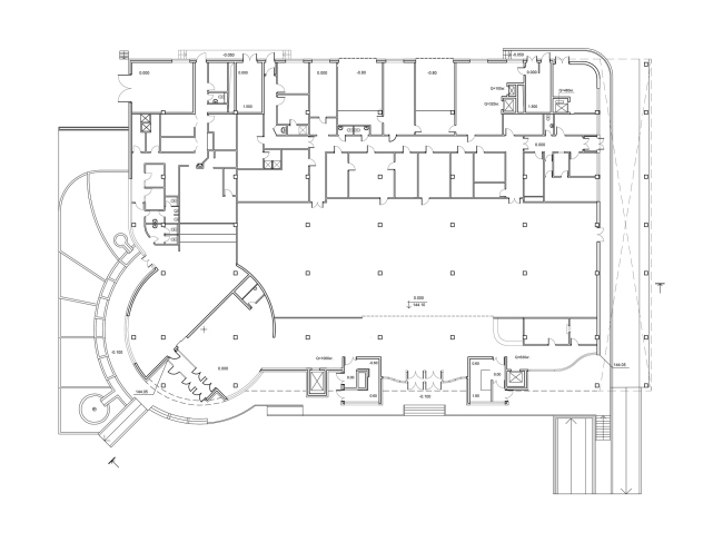
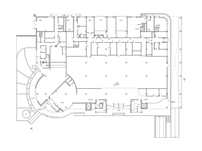
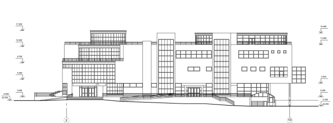
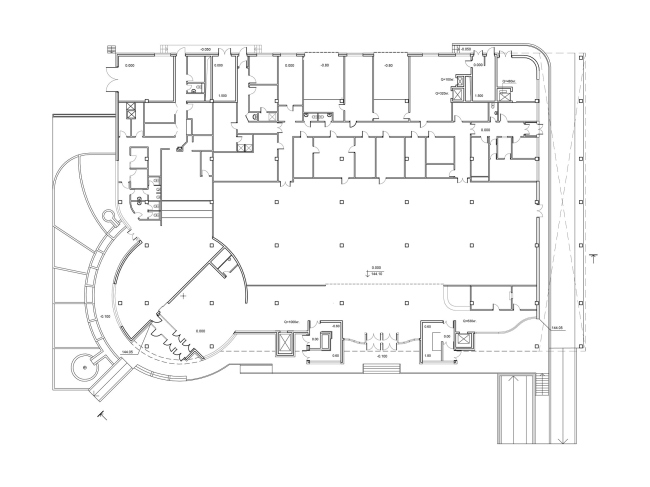
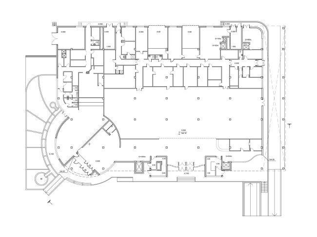
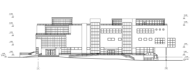
On Veshnyakovskaya street there has been completed construction of a shopping center upon the project of Yuri Vissarionov’s bureau.

The shopping center was designed eight years ago, but has been build only this year. The client has been raising it for seven years consistently solving organizational and financial issues. This is important because it explains it’s not large extent - total area of the building is a little less than 9000 sq m – and not obvious but noticeable on closer examination connection of the architectural design with neo-constructivism popular early in 2000s. Stretched or dot line window bands; point supports of the ground floor, two rectangular stair towers with vertical stained glass windows, cutting the stretched volume from the side of the Veshnyakovskaya street; round aluminum supports holding right angles, and finally - one of the most popular motifs - a round window over one of these supports, to the left of “McDonald's”. Must say that overall massiveness of the volume – materiality of the walls seems strong in this building – allows for making its relief more sculptural and active in spots. The most emphasized one is a three-stage tower at the entrance on the corner from the side of a metro station. This is the main entrance, and cascade design of round terraces attracts attention of passers-by (as well as of driving-by ones). In addition, the rounded pyramid "responses" the neighboring round tower-house, and together they form a kind of propylaea at the entrance into the neighborhood. Inside the stepped tower has no overlappings – it is a double-height pyramidal space of the atrium entrance; and in the very top area there will be an exhibit hall, round and with good light due to glass walls. By the way, the building looks more constructivist on the architectural model – mostly because of economical glazing and simple finishing with square tiles. For a building that had been constructed for 7 years this is a small, but of course, nowadays there can be found a more appropriate material for architectural design creating partly historical, partly modern atmosphere.

None
None
None
None
None
None
None
None
None
None
None
None
None
None
None
None
None
None
None
None