Published on Archi.ru (https://archi.ru)

28.11.2011

“Shifting Cubes” Solution

Anna Martovitskaya
Architect:
Vladimir Plotkin
Studio:
Creative Union ‘Reserve’

On Savvinskaya Embankment, next to the so-called “Japanese House”, Vladimir Plotkin designs a residential compound sporting several green terraces.

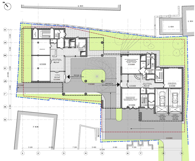
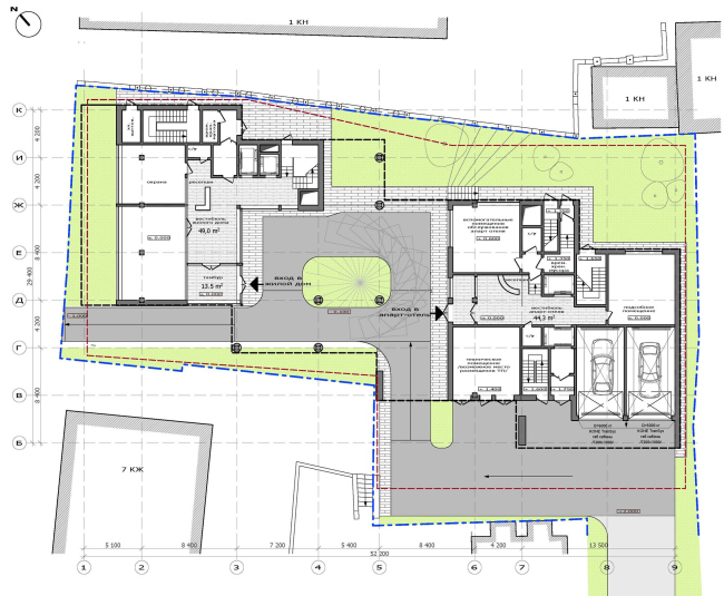
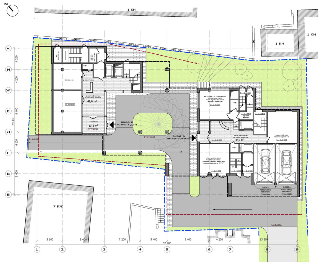
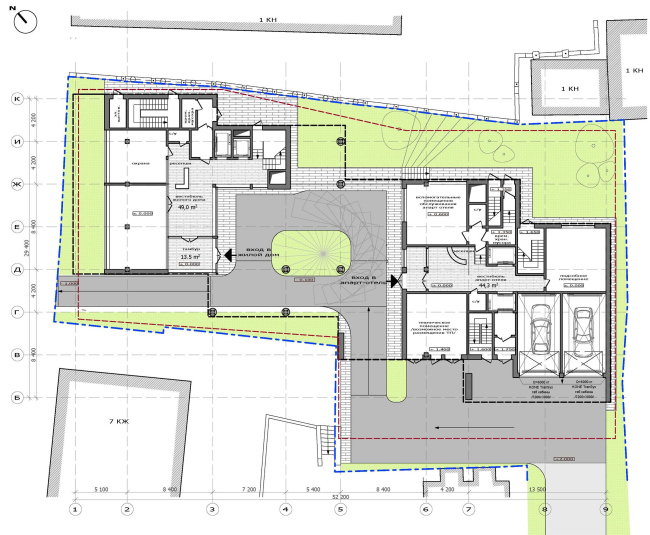
The bidders were faced with a challenge to fit the high-rise residential compound with a large area into a narrow strip of land, providing, at the same time, apartments overlooking the river, and making sure that the amount of solar exposure of the two neighboring buildings was kept intact. The main architectural challenge, however, was solving the “façade issue” – the existing bleak sidewall had to be changed with a new one, just as narrow but more attractive-looking, thus making the façade that commands the river view, the “visiting card” of the building. The first thing that the architects of “Reserve” Studio did was to draw a rectangle volume on the spot of the building that was to be taken down. Fair enough, it is this form that yields the maximum amount of living area - which inevitably impresses the customers. However, this parallelepiped had its “dark” sides as well in the literal sense of the word: most of the apartments in such a building would not have received enough sunlight, let alone overlook the river. This is why the architects divided the original parallelepiped into for equal parts and started shifting them relative to one another in such a way that each next part would be placed a bit to the right of its predecessor. The existing difference of heights (rather large) came in very handy: by moving every next “cube” to the right, Plotkin simultaneously raises it one floor higher. As a result, the building looks like a giant stairway that is diagonally oriented. In this situation, the idea of two-level apartments - located on the top floors and opening into the green terraces, sitting on top of the roofs of the preceding buildings - was the most obvious solution. The architects, however, did more than to settle for the “steps of the roof” solution, and included the green planting into the fifth floor as well. In fact, the house is “embraced” from all sides by new public gardens, and in order to enlarge their area, the authors do everything to shrink the building spot: the ground floor of the compound houses only the entrance lobby, two elevators lobbies, and a gallery that connects the two, while the residential floors overhang above it as a shoulder piece.

None
None
None
None
None
None
None
None
None
None
None
None
None
None
None
None
None
None
None
None
None
None
None
None
None
None