Published on Archi.ru (https://archi.ru)

28.06.2011

Handmade House

Anna Martovitskaya
Studio:
Karlson & Co

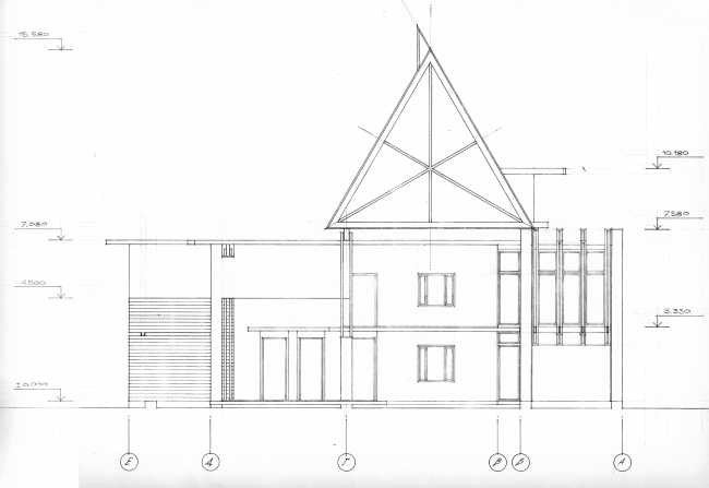
The architect Vladislav Platonov (ACB "Carlson and K") built a black-and-white house in the famous ‘’Sokol” village of artists. Gifted with a memorable silhouette and bright appearance, the mansion, which the author calls the "Yin Yang", is creatively developing traditions of the development of this unique for a megapolis area.

Vladislav Platonov was invited to increase the floor space of the cottage already built on the site. Since the town planning regulations in “Sokol” are strict, Platonov had to think hard over the task: how to add the needed meters most delicately in relation to the established environment. First of all, Vladislav Platonov specified two directions of development: a garage with living rooms on the second storey with V-roof placed on high rafters. The roof is placed at the same angle, the architect deliberately did not "stretch" the rafters along the entire increased volume, so that the grown up house would retained its silhouette and would not appear like a giant in the village. Thus, the reconstructed building becomes a combination of a number of separate elements: the main residential volume, finished with black stone, the garage painted white, and the tall pyramid of the roof with acute-angled transparent gables. At first glance the combination seems to be established absolutely randomly and such composition adds visual lightness and dynamism to the quite large volume. However, there are a lot of small architectural details which are like invisible stitches made by a skilled tailor to connect separate elements into a single canvas. There is a pergola over the accessible roof of the white volume, an elegant "constructivist" balcony, a narrow glass "bridge" between the two parallelepipeds, and a stretched out thin inclined support of the black metal. Play of materials on the facades is also fully implemented in the house interior. In the entrance area light wooden floor is combined with black walls of the same tiles used for the exterior walls. Interior of the living room is based on the diffusion of black and white planes, developing traditional antithesis of the "Yin Yang" in quite unexpected combinations in terms of plasticity and geometry. Living space of the second storey is also divided into "white" (children's room) and "black" half separated by a narrow corridor with a dark ceiling and light floor.

None
None
None
None
None
None
None
None
None
None
None
None
None
None
None
None
None
None
None
None
None
None
None
None
None
None
None
None
None
None
None
None
None
None