Published on Archi.ru (https://archi.ru)

22.06.2011

Forest Gates

Julia Tarabarina
Studio:
PANACOM

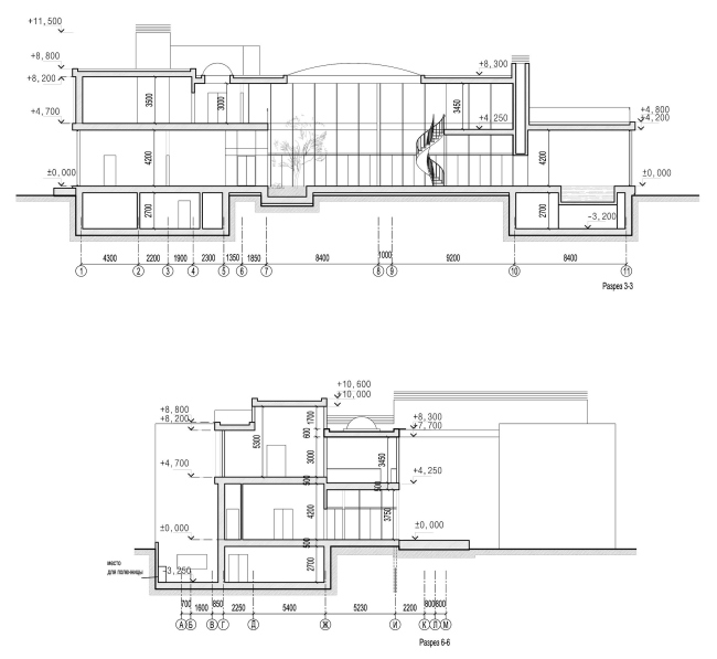
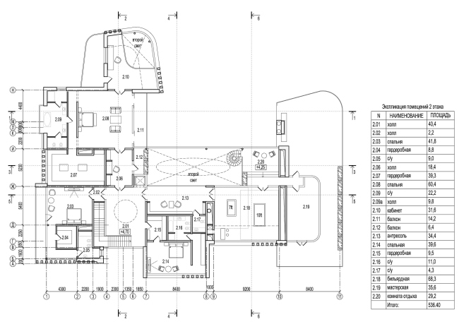
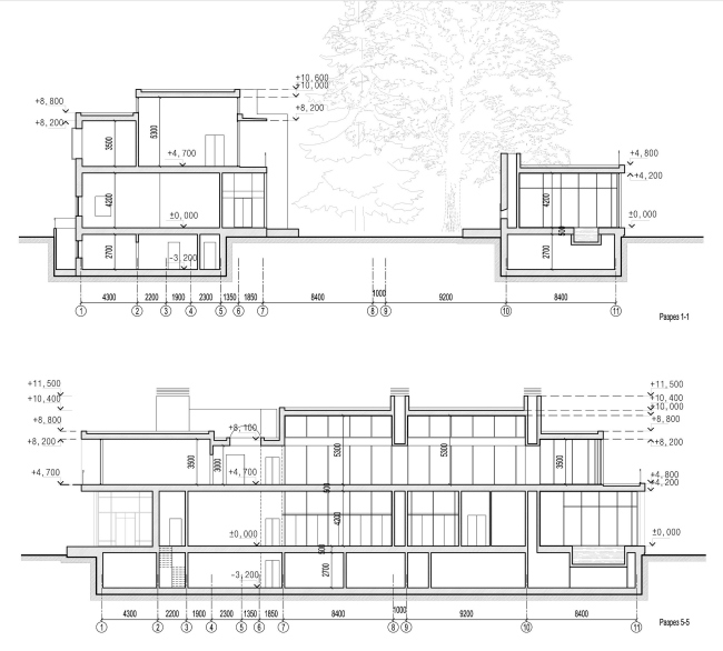
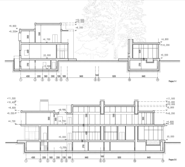
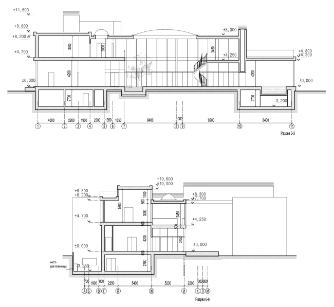
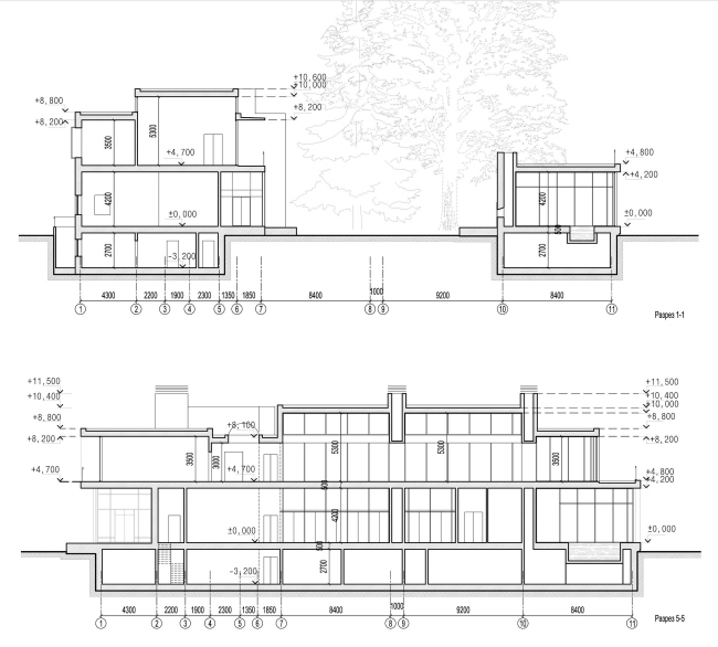
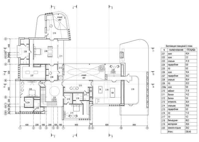
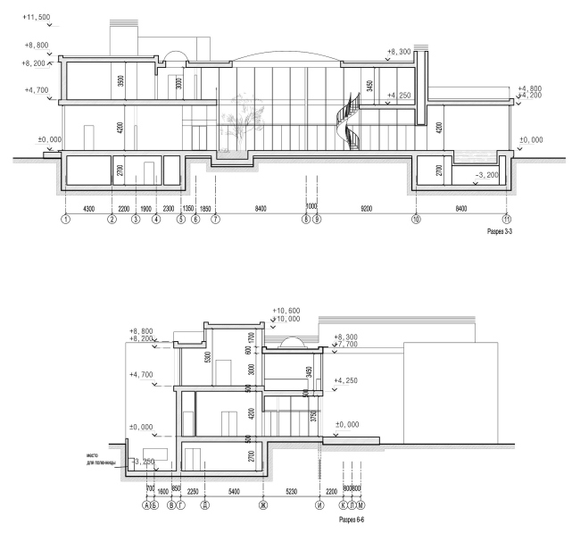
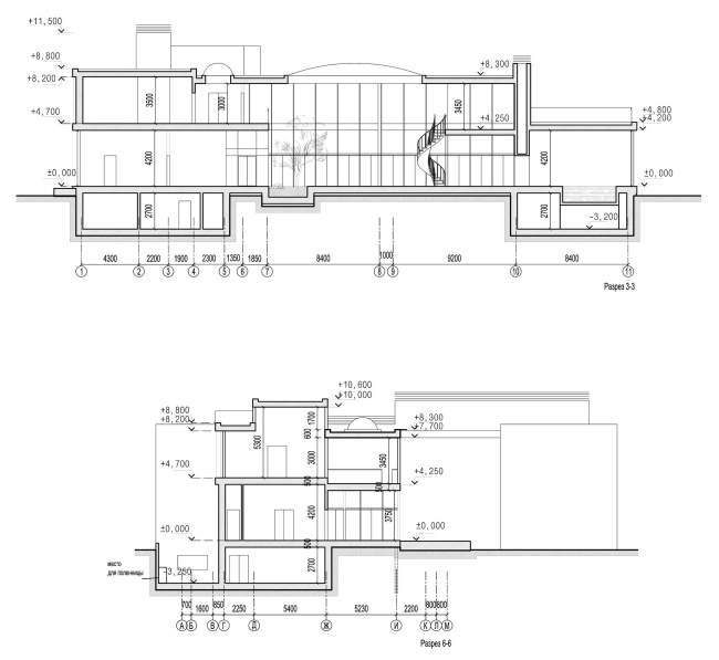
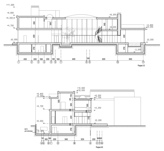
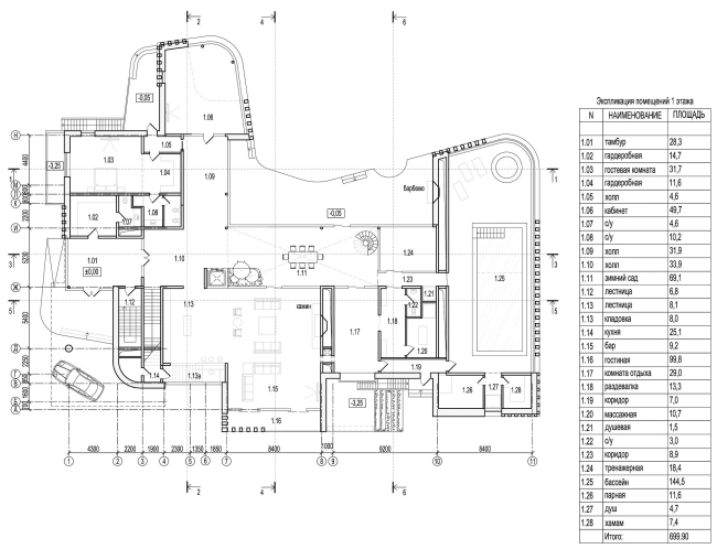
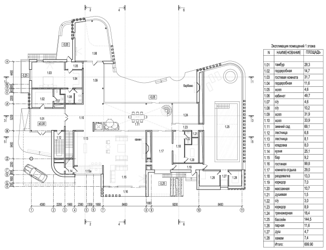
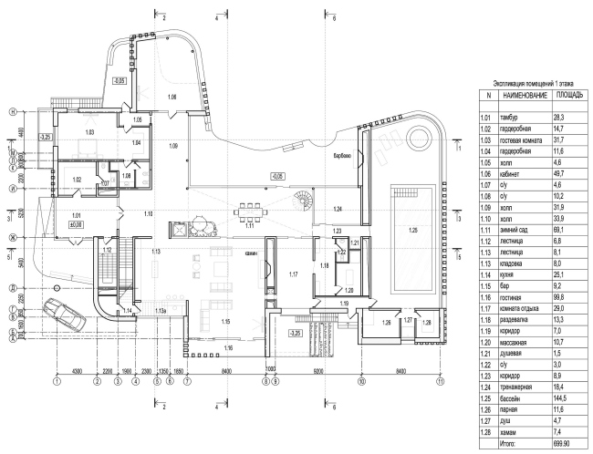
A large 2000 sq m house designed by the architectural bureau PANAKOM nearby Moscow is grand, imposing and is full of various regular in our days joys from a swimming pool to a cinema. However, all these sweets of life are just delicately arranged propylaeum: gate to the pine forest, which resides on the other half of the site.

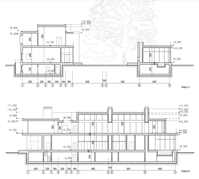
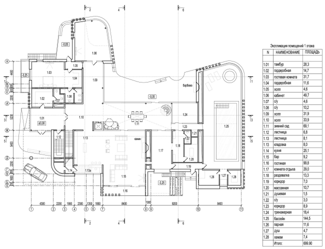
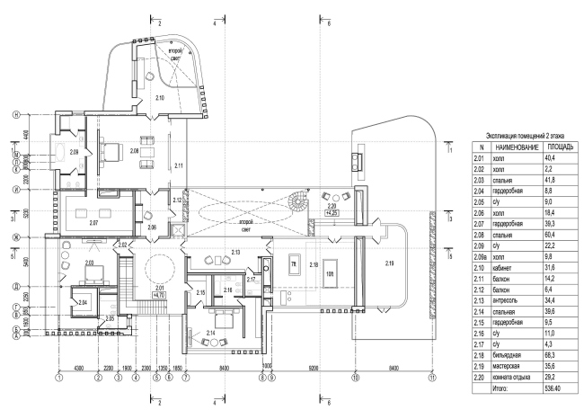
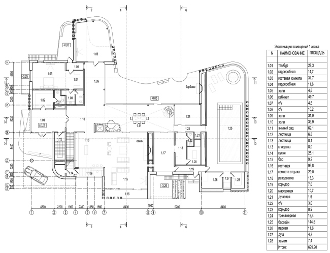
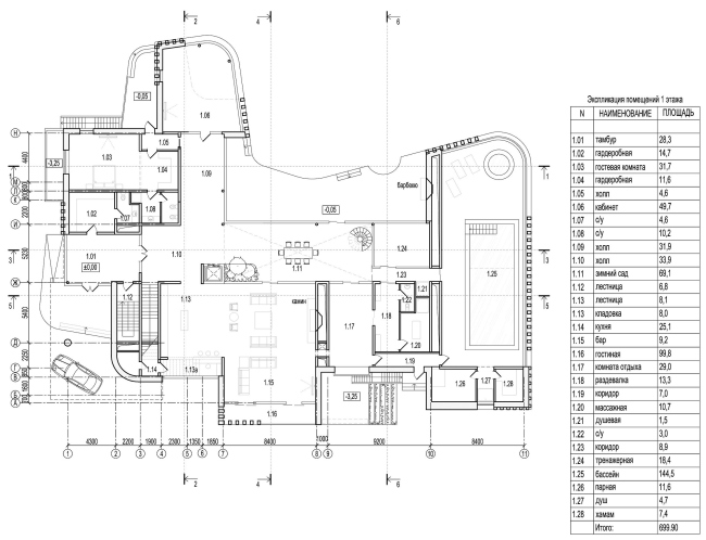
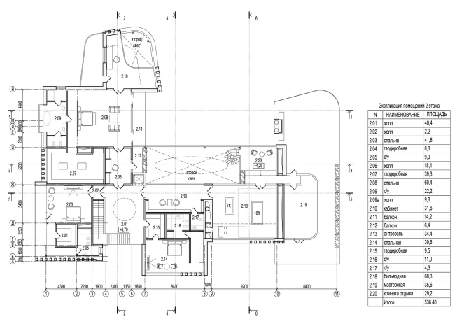
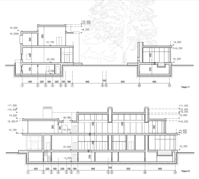
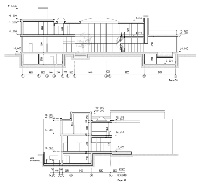
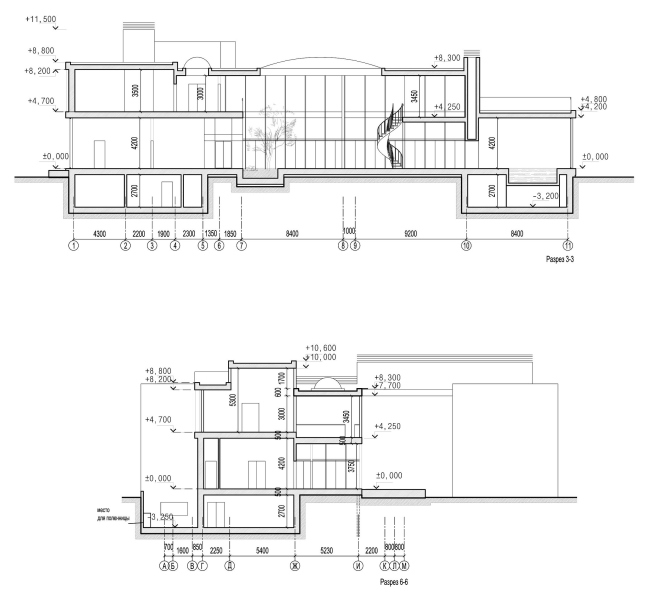
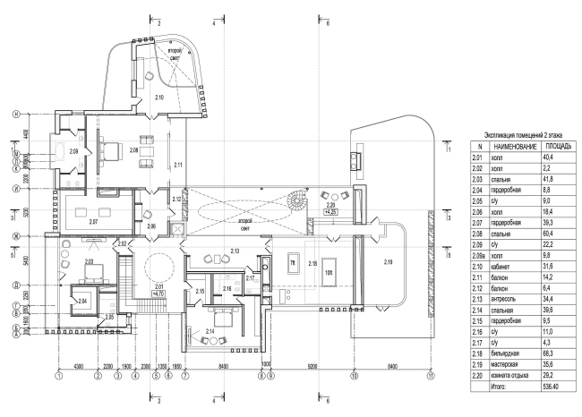
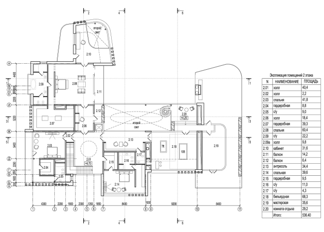
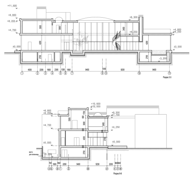
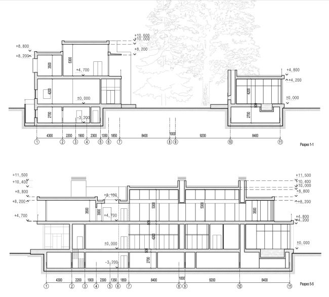
The house will be built in the village nearby Moscow. The site is a little less than 1 ha – its widest side fronts the road – and it breaks into the forest with its sharp triangle nose, providing residents of the future house with its own piece of nature. The house will be built nearby the road, the triangle will serve as a small (forest-) park. Trees won’t be cut down, deep in the forest there will appear an arbour and paths. It will look like a small piece of an English park in a Russian manor. The house, designed by the architectural bureau PANAKOM, is turned away from the road and fronts the pine forest. The house steps back a little from the fence leaving room for narrow lawn with "alpine" rocks. But the façade which fronts the road is not a solid wall. Strictly speaking, from outside it looks like it consists of the three things: white surfaces of overlaps, stone boards of walls and glass. The glass bends on the corners, on the roof there appear two glass cupolas (the larger one is placed over the winter house and the smaller one is over the study). On the contrary boards of stone are strictly rectangular. They are generously diluted by vertical stone "bars" which look like harsh stone jalousies. Everything is distributed asymmetrically on the facades, but there more of stone boards and bars on the road side, and more glass from the courtyard side. In every way the house denies symmetry. Ledges alter with hollow spaces, bay windows and balconies, here walls thicken there they split. From the forest side layers of overlaps suddenly pile up stepwise, so that it seems there are more than two storeys in the house. The main entrance is designed at the northern corner of the house under the large window-screen framed in concrete which rests on the single column in the house. The column lacks a column cap, but still becomes an allusion to a portico.

None
None
None
None
None
None
None
None
None
None
None
None
None
None
None
None
None
None