Published on Archi.ru (https://archi.ru)

01.08.2011

Headquarter

Anna Martovitskaya
Architect:
Pavel Andreev
Studio:
Paul Andreev

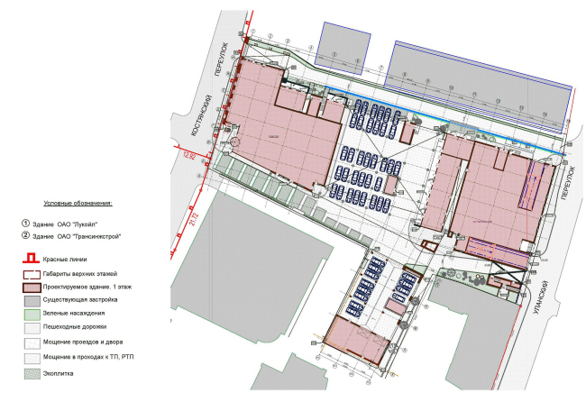
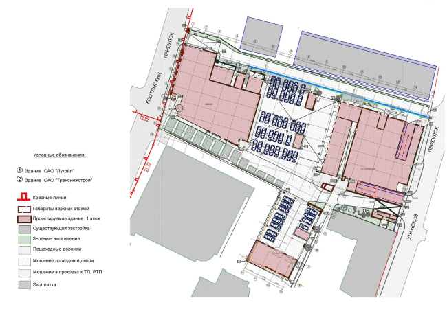
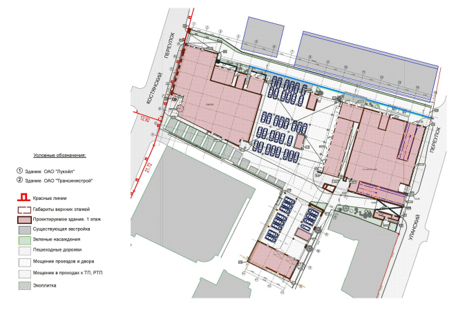
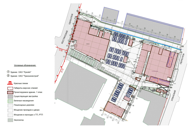
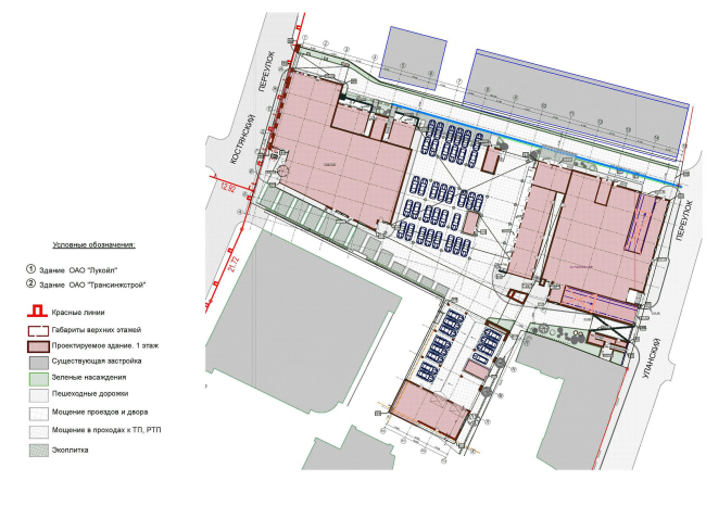
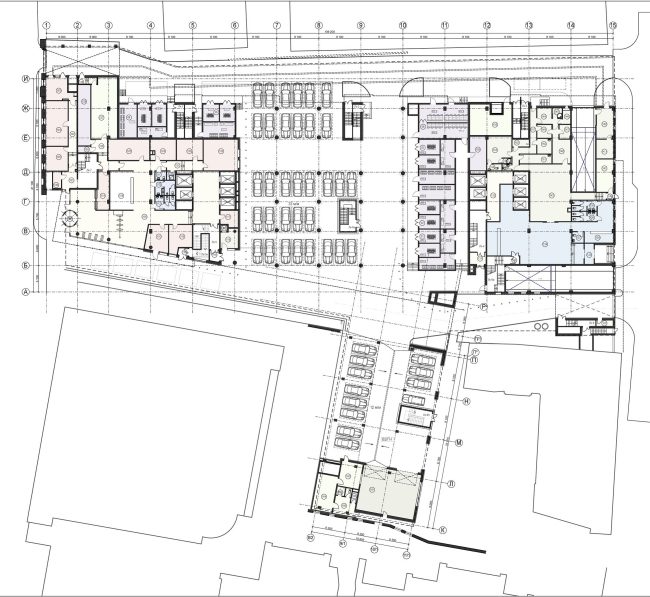
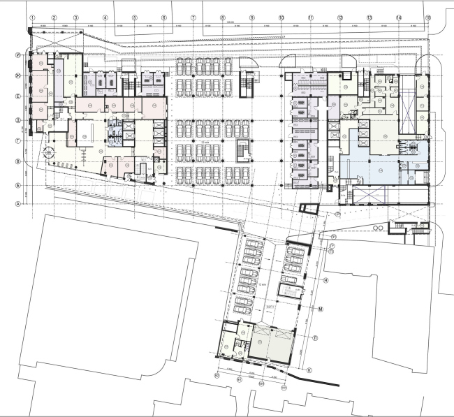
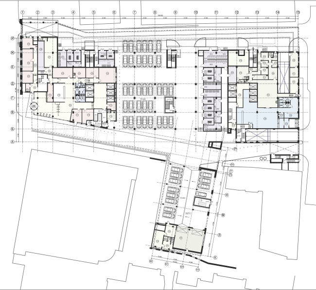
“Nordeo” company is building a new office construction between Kostyansky and Ulansky lanes. It is designed by creative team led by Paul Andreev. Their client is “Lukoil”. The complex will complete development of their headquarter block on Sretensky boulevard.

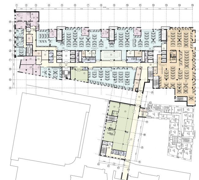
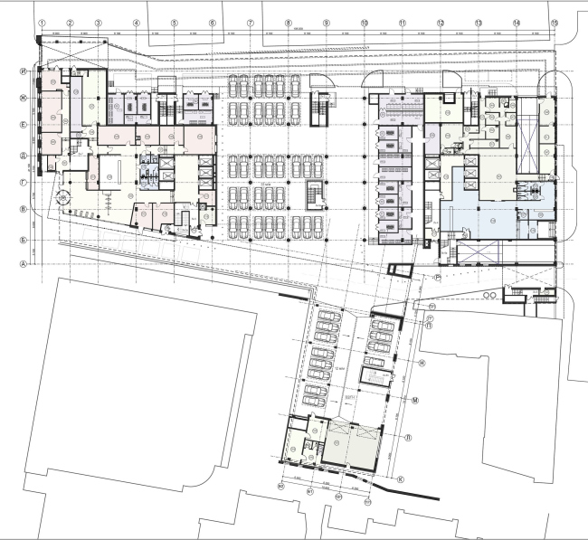
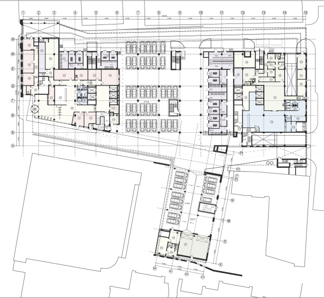
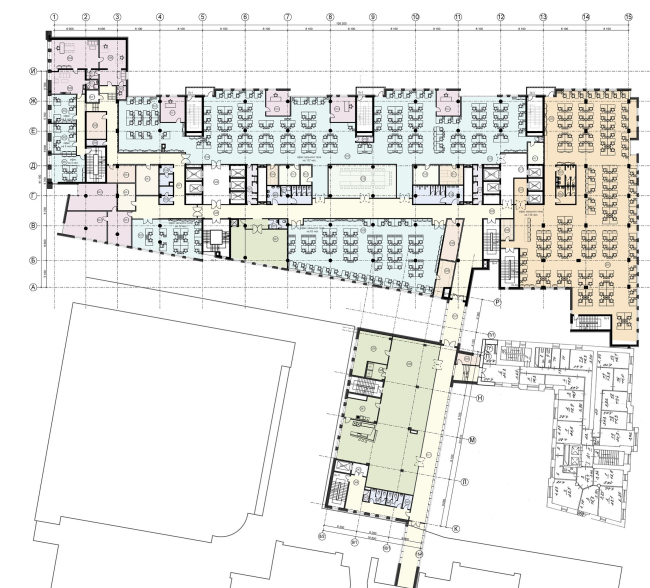
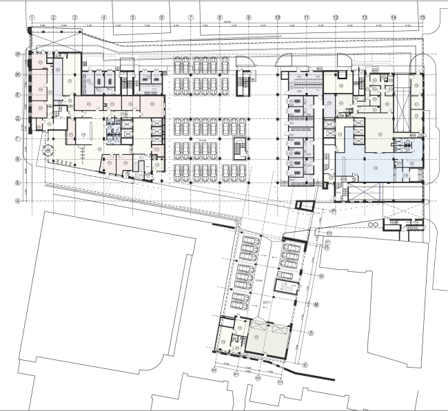
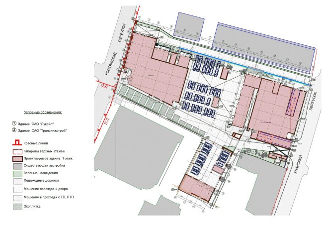
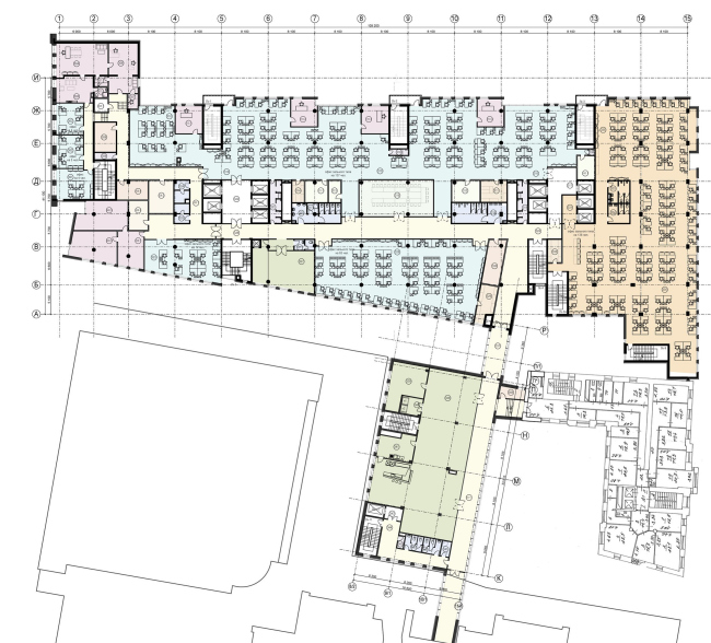
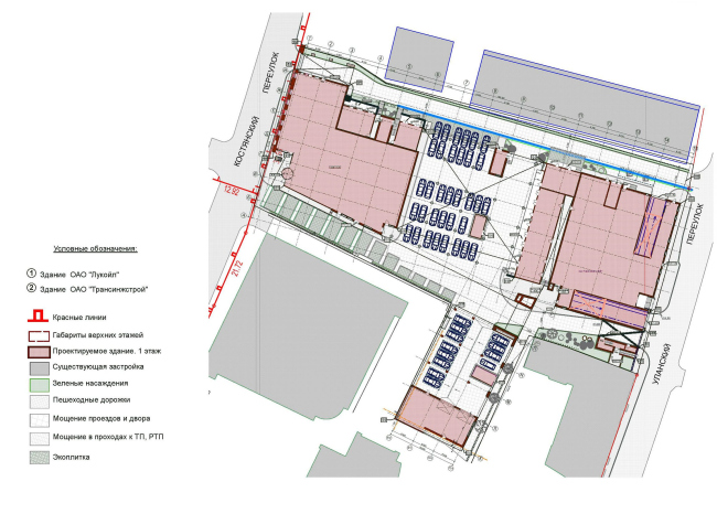
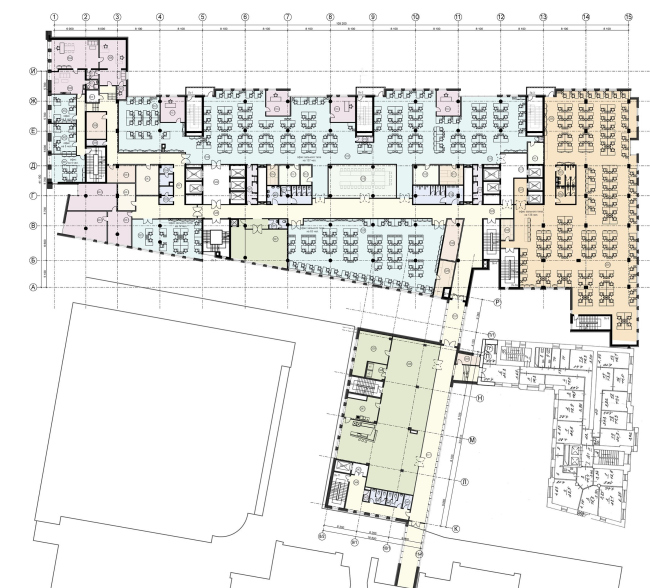
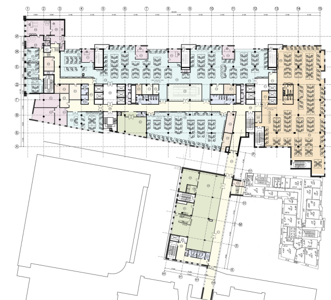
The building site given for the new construction is located between the two quite narrow lanes with existing development. The architects were trying to minimize the impact of the new building onto its surrounding. "There was already authorized by the Moscow City Architecture Committee design of a high-rise building - says Pavel Andreev. - It was completely inappropriate and unsustained in terms of town-planning, but in order to design the volume in consideration of logic and scale of the existing development, as well as required floor spaces, it was necessary to increase the total area of the building site. The client agreed to do that. It must be emphasized that it is a very rare case in Moscow construction practice worthy of respect and gratitude”. “Height of the building has dropped from 90 to 46 meters. From one side it closes the territory of the main “Lukoil” buildings, and from the other side it takes up lines of developments of the two lanes forming the block perimeter. Rectangular on the plan the four, six and eight story buildings are expanding these two developments and "hug" the 20 storey central part of the complex, which has an elongated trapezoid shape on the plan. The architectural solution of the new complex has emphatically neutral composition. In the building facing the authors suggest using natutal stone of white, beige and light brown shades. Variable number of storeys is highlighted by decorative “gaps” - a fully glazed inserts. They add more visual lightness to the central highest part and create an illusion that the office block is gathered of separate ones. The complex also includes the reconstructed facade of the existing house number 6 on Kostyansky lane, which once accommodated Kharitonievskoe municipal elementary school.

None
None
None
None
None
None
None
None
None
None
None
None
None
None
None
None
None
None
None
None