Published on Archi.ru (https://archi.ru)

29.04.2011

Support for the sport

Anna Martovitskaya
Studio:
Architectural bureau of Yuri Vissarionov

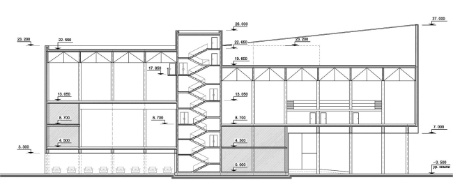
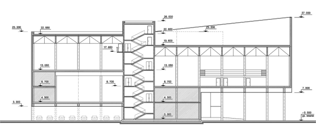
PTAM Vissarionov designed a sports complex for the Russian State Social University, where any student can choose from a variety of sports classes instead of routine physical education classes.

The site has a clear triangular shape and the architects interpreted that as a clue – on the plan the building is Y-shaped, every "stick" is a separate training room, “tick” is the entrance fronting the main building of the Russian State Social University. On the territory nearby the former stadium there is a small pond. According to the developed site master plan it will be saved and landscaped- in particular there will be promenade zones, spots for rest, elegant paved paths. They also solved the issue with parking: the architects suggest raising part of the building onto supports, between the columns there will be small guest parking lots. These supports create most of the architectural image of the future building. On the ground the volumes would be seen as two hangars, but raised on the columns (notably, the massive beams of square section are combined with the "pips" staged at 45° angle) they look just like some mechanisms - a kind of “machines for sport” with supports instead of wheel. The parallelepipeds are arranged at an angle to each other, within there is a glass volume of the entrance hall. The architects actively develop the idea of crossing supports on the facades: the entrance is accented by the canopy of brutal grid, the glass surface is “strengthened” by diagonals of metal rods. The supports, holding entrance hall, are “stretched” up to the roof and painted a vivid ocher color. Must notice, there are no other active colors in the palette of the complex – it is purely metallic. According to the authors, this obviously youth, designed in technicism, addition to the traditional stucco-yellow buildings of the Soviet period will significantly refresh the image of the learning environment.

None
None
None
None
None
None
None
None
None
None
None
None
None
None
None
None
None
None
None
None