Published on Archi.ru (https://archi.ru)

07.04.2011

Such a various wood

Anna Martovitskaya
Studio:
Architectural bureau of Yuri Vissarionov

On the 7th of April, the 17th International Construction Exhibition «MosBuild 2011» will be hosting a conference on eco-stable low-rise housing. Among the participants there will be PTAM Vissarionov with a number of projects. We’d like to present you with two of them today.

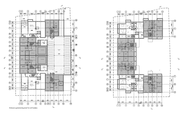
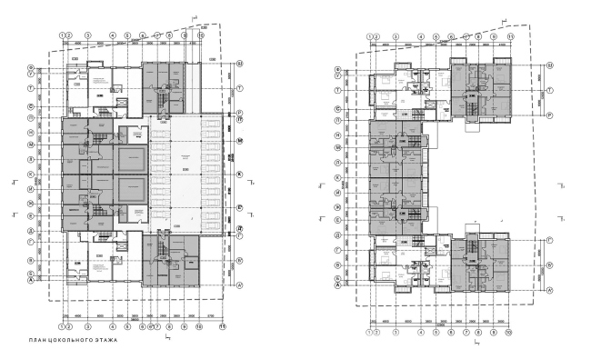
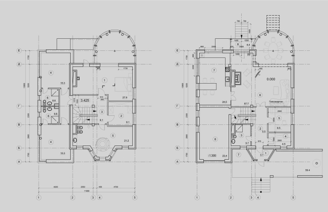
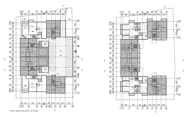
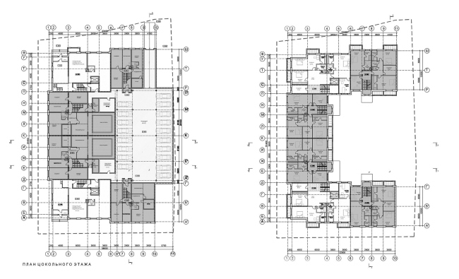
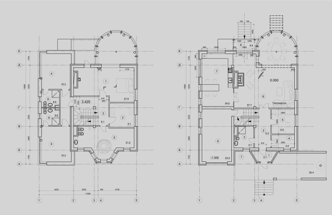
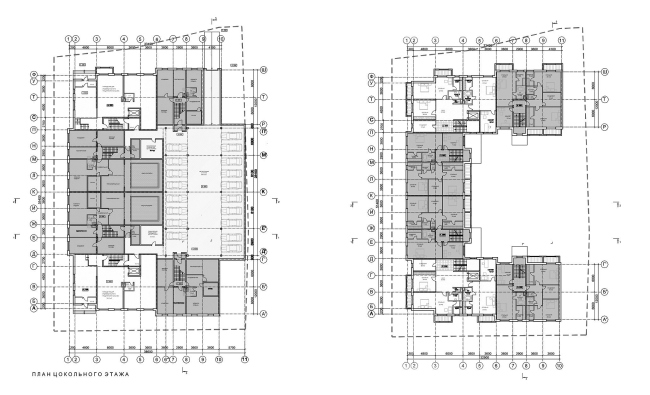
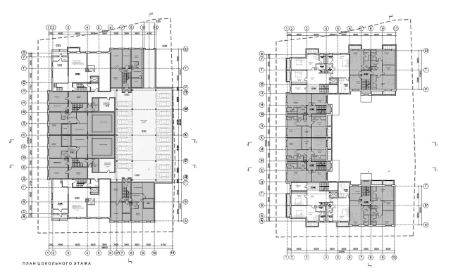
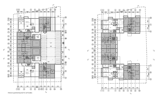
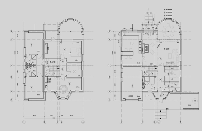
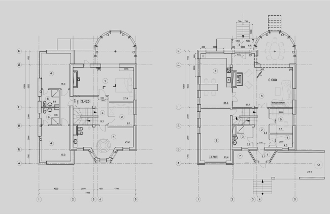
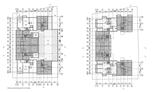
The first project is a complex of apartment-houses. It is designed for the Adler district of Sochi and will be constructed nearby ski slopes. This neighborhood suggested the architectural theme of chalets – traditional Swiss cottage with roughcasted ground floor and the main bulk made of wood and covered with a wooden gable roof. The complex includes six residential units and in fact is a townhouse. On the plan it resembles a square bracket in the "joints" of which on the ground floor will service and office spaces, then can serve as cafes and shops. In addition to entrances with lobbies there will be passenger lift in those corner sections. Besides, each unit has an inner staircase with daylight illuminations, and in the basement of the two central sections there are also designed small swimming pools. Ground floor of the complex is faced with ceramic tiles, the upper floors are made of laminated beams. Intense honey shade of the wood is finely accentuated by the "laid on" elements - square console of balconies, arranged. Balcony balustrades are made of thin wooden slats, which also were used for entrance area decoration. Combination of a traditional chalet image and strict geometric forms adds a modern and stylish twist to architecture of the complex. The second is a reconstruction project of a cottage in Moscow region, within which traditional model of “new Russian” construction turned into a work of “architectural minimalism” (this definition belongs to the authors). The entire residential unit had “cosmetic surgery, but most adjustments were done to the roof and a semi-circular building-high bay window, which the architect suggest to glass and finish with vertical wooden slats. The quite large volume will gain more of visual lightness and some extravagancy, and the inner spaces will have more of daylight illumination.

None
None
None
None
None
None
None
None
None
None
None
None
None
None
None
None
None
None
None
None
None
None
None
None
None
None