Published on Archi.ru (https://archi.ru)

12.09.2011

On the Crest of the Wave

Anna Martovitskaya
Architect:
Vladimir Plotkin
Studio:
Creative Union ‘Reserve’

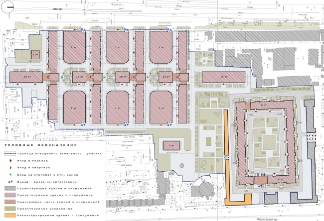
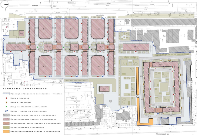
In the former stead of Saint Petersburg dairy plant “Petmol” (“Petersburg Milk”) that occupied an area of 11 hectares on the corner of Moskovsky Avenue and the embankment of the Obvodnoi (“Bypass”) Channel, “Reserve” Studio designed a residential compound with a total area of 340 000 square meters.

Vladimir Plotkin decided to break this residential compound into two independent parts. One of them would be a low-rise building located next to the architectural monument (stockyard built back in 1823-1826 by the project of Joseph Charlemagne) and overlooking the arc of the Bypass Channel. This building can arguably be considered a higher-class construction that can be later marketed by the developers as a fully-fledged separate-standing architectural product. The eight-floor volume is confined by the architect within a perimeter and is placed into another “box” of already-existing historic single-story constructions. This solution turns these buildings into kind of outposts of the new house which perfectly falls in with their brutal industrial look. According to the architects’ project, the courtyard will be elevated – it will be placed on top of the single-story parking lot (the floor mark 2.5 meters), fully landscaped and transformed into a garden for the residents. Designing the other part of the compound, the architects limited themselves to an allusion to Saint Petersburg’s classic quarterly housing, developing a layout that is based on a composition of a few “courts of honor”. In order to maximize the amount of sunlight that the courtyards would be getting, the architects opted out of building anything along the central axis altogether: the body of the main longitudinal building is going to have slits in it of almost the building’s height; only the three upper floors will be connected with “crossbars” adding to the unity of the volume. The number of floors of the side wings grows smaller perpendicular to the Avenue and Varshavskaya Street, gradually meeting the scale of the historical housing of the Obvodnoi embankment, while the border line of each of the yards is marked with compact single-story houses. In this part of the compound, the yards will also be elevated to a higher level, landscaped and made completely pedestrian-only – they “spill over” into one another thanks to the connecting bridges designed by “Reserve”. The stylobate will house the parking lot and the basic infrastructure.

None
None
None
None
None
None
None
None
None
None
None
None
None
None
None
None
None
None
None
None
None
None
None
None
None
None
None
None