Published on Archi.ru (https://archi.ru)

21.03.2011

Transformation project

Anna Martovitskaya
Architect:
Sergei Tchoban
Sergey Kouznetsov
Studio:
SPEECH

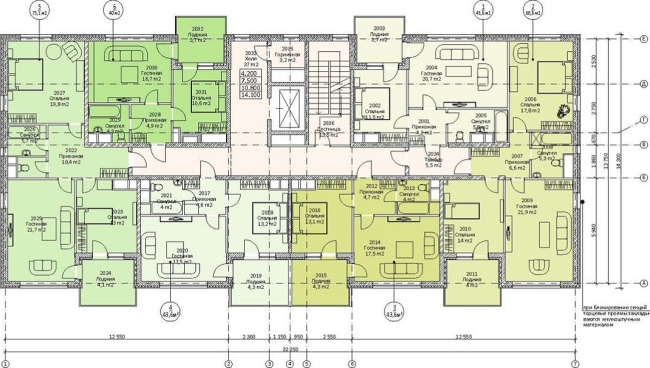
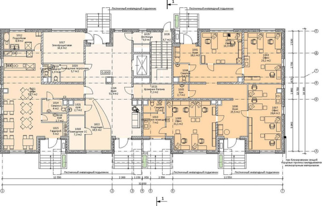
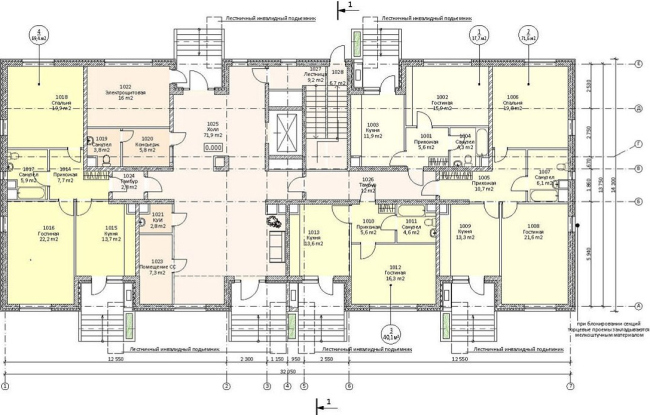
The architectural bureau “SPEECH Tchoban / Kuznetsov” keep on making projects the Sochi Olympic Games. Among the recent projects of the bureau there are residential blocks for media accommodation during the Games in 2014.

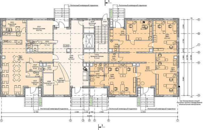
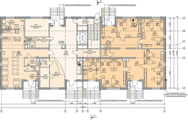
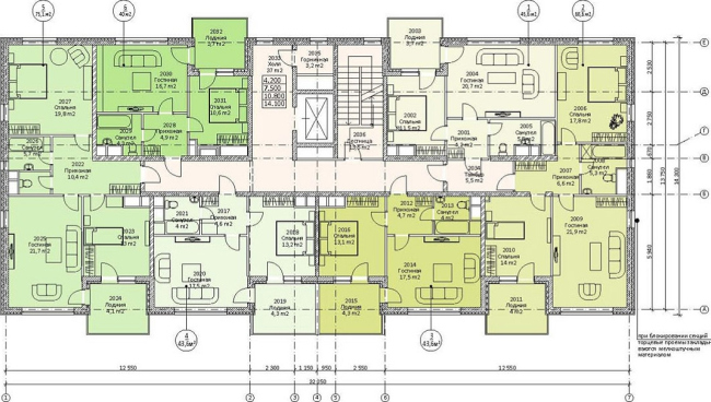
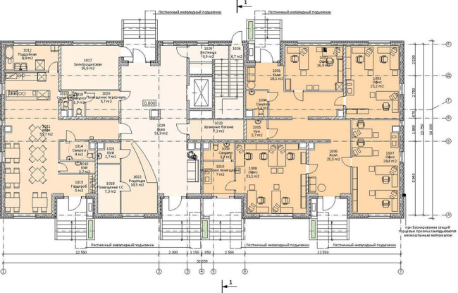
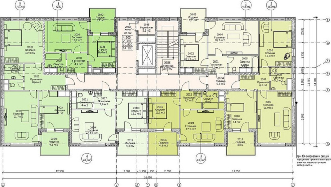
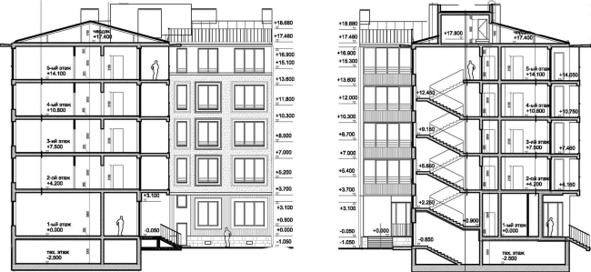
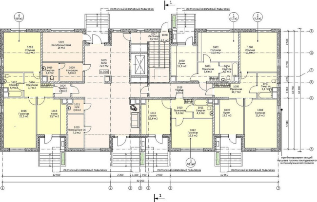
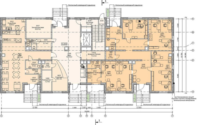
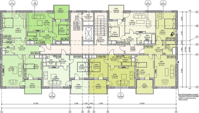
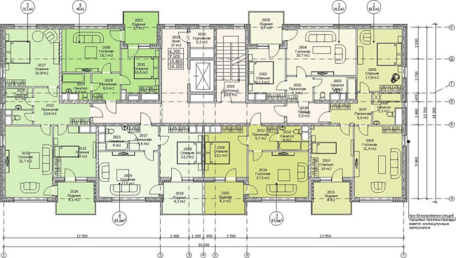
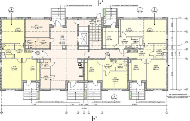
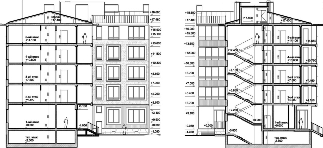
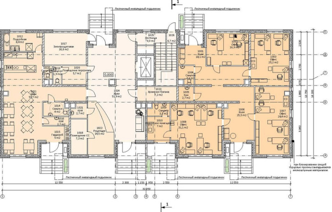
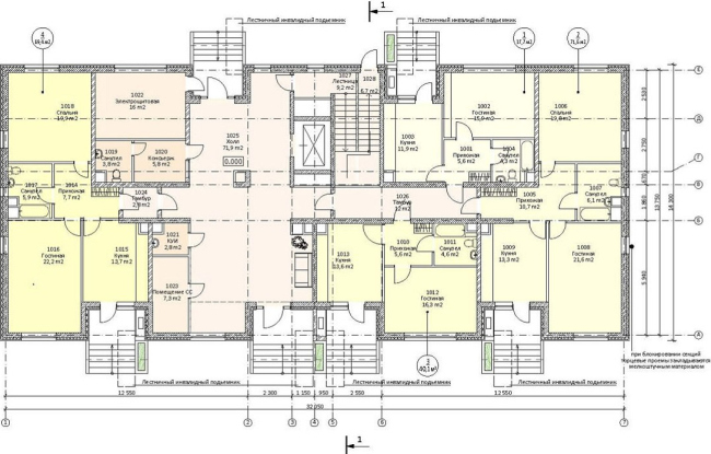
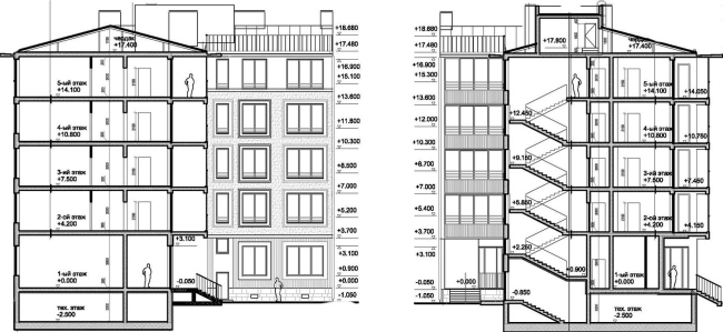
Accommodation for journalists is designed as small clusters, each consists of 8 blocks maximum. The total construction area is about 30 ha, in fact there are three separate sites. They decided not to build a single media-village and after the Games instead of a “town in town” Sochi will have a number of separate residential complexes filling the gaps among objects of social and sports creating a full and diverse life environment. They have different design projects but they are based on the same architectural and planning principles. For reasons of economy, there will 5storey sectional buildings.To achieve maximum of diversity, the architects developed many design projects for sections (each has 4-6 apartments) and then arranged in different order. In the end there are appeared buildings of various configurations - from compact with a single entrance to stretched and L-shaped ones. During the Olympic Games the buildings will serve as a 3-star hotel complex with 4200rooms, and after they will become residential. The architectural solution of the blocks is emphatically modest. And it's informed choice of the authors: around the future hotels for journalist there being constructed so many of outstanding architectural so many outstanding architectural structures that they had to balance it.

None
None
None
None
None
None
None
None
None
None
None
None
None
None
None
None
None
None
None
None