Published on Archi.ru (https://archi.ru)

09.03.2011

A theatre begins with a bell

Anna Martovitskaya
Architect:
Nikita Yavein
Studio:
Company:

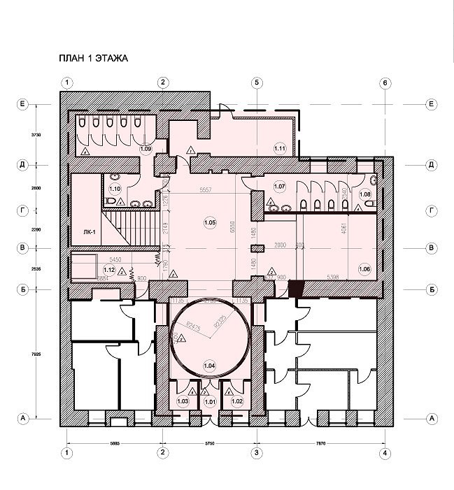
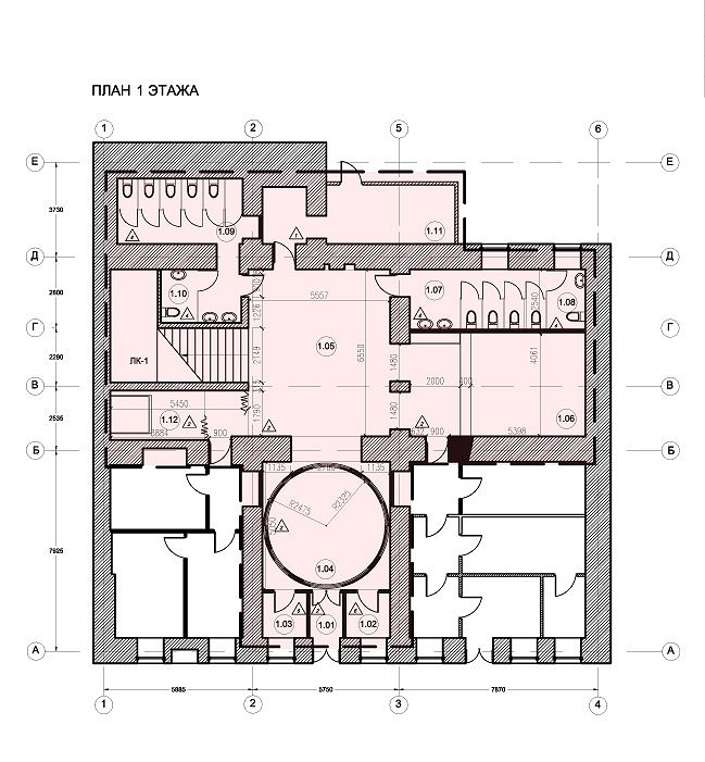
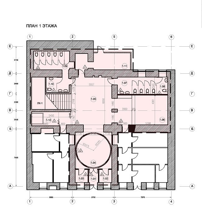
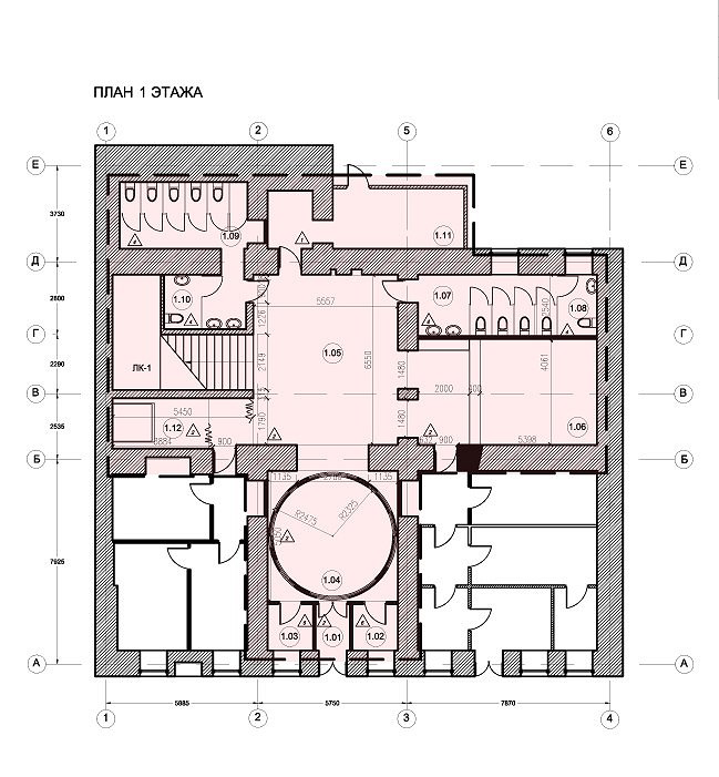
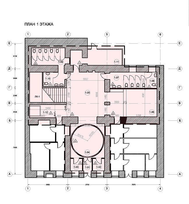
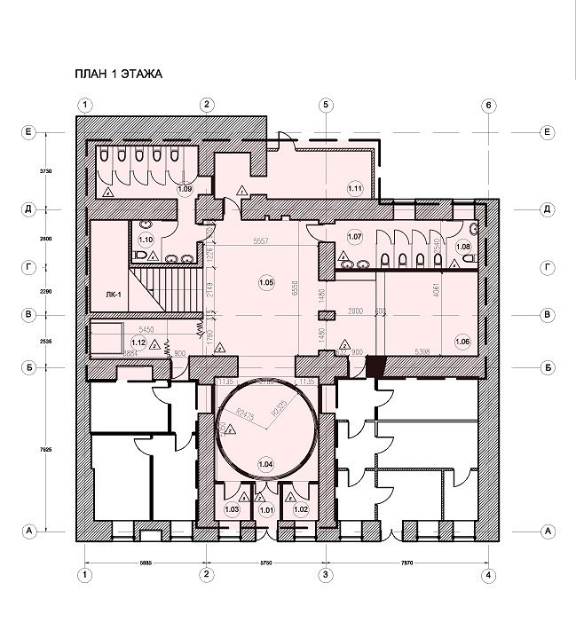
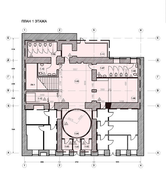
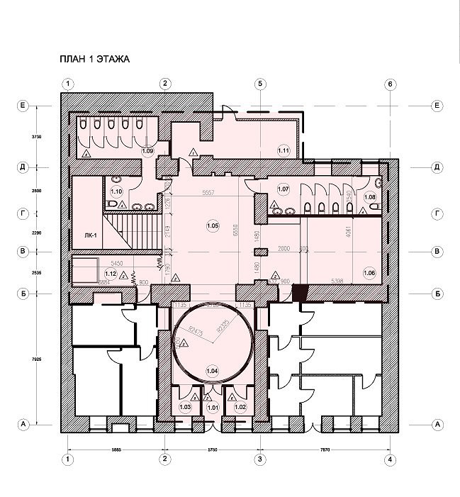
The architectural workshop “Studio 44” designed a reconstruction project for the audience zone of the famous St. Petersburg “Priut Komedianta” theater.

First, “Priut Komedianta” planned to build over the existing building, but the formed image of Sadovaya and nearby apartment buildings put a veto on it. So the theater decided to reconstruct the existing facilities, intending to improve the "living conditions" by rational redesign. The architectural workshop "Studio 44" was commissioned to make the design project and Emil Kapelush, a scene-designer, became the chief artist of the project. First of all, the architects had to solve a number of technical issues: to make theater accessible for handicapped people, design a new spacious coat check room, and reconstruct tiny restroom. One of the most acute problems is that the theatre needs a larger entrance lobby – today there is only a narrow one and on performance days it is overcrowded. The architects enlarge it and add 2.5m boards for theatre bills. “In total there will be 16 boards and we suggest fixing them on the guides so that they could move around - says Veronika Zhukova, the project architect. – It will make the lobby more theatrical as well as allow extending or narrowing the space if necessary.” There is a wooden staircase leading to the second floor. While on the ground floor there are mostly used extra strong materials of almost neutral coloring, the second floor lobby is light and elegant. Its walls cleaned to the brick, painted white and decorated panels of golden metal.

None
None
None
None
None
None
None
None
None
None
None
None
None
None
None
None
None
None