Published on Archi.ru (https://archi.ru)

16.02.2011

“Gun” pointed to the back of avant-garde

Julia Tarabarina
Studio:
Bavykin architects

On demand of the Moscow authorities, they had to changed function of the Third Avtozavodsky passage. After they had to change the project.

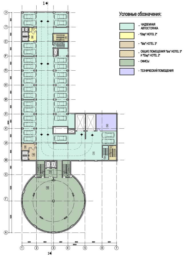
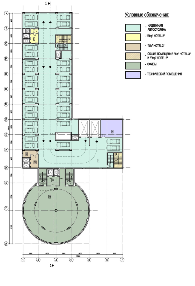
Four years ago it was an office building, in its corner there was inserted a piece of giant glass fluted column, seized by the four clutches, a floor-sized each – smart paraphrase of the theme started by Ilia Golosov in the building of cultural centre in the name of Zuev. The construction was started and the two underground levels were cast in concrete, but the investor was required to change the function: two-thirds of the building became a hotel, the left spaces were given to offices. The building houses even two hotels: “Elap” a two-star one, occupies the part extending along the Third Avtozavodsky passage, and the second one, “Ibis” is placed in the second part, set transversally. A giant, 25 feet in diameter 30storey office tower is the new element of the complex. It looks totally different from the hotels, even in the ceiling height. But shape and dimensions of the cylindrical volume, as well as the L-shaped plan of the hotels, was determined by the existing base – the tower rests on the round parking entrance ramp. The heavy cylindrical body of the tower released from rectangular clutches and is covered with a brown crust of rough “wild” rock. In the stone surface there are cut windows, seemingly scattered at random, small in the bottom and larger near the top. The surface of the stone wall is decreases and in the upper three levels windows merge into thin glass strips. In some spots there appear small “lonely smoker” balconies, Bavykin’s favorite and recognized like a signature. They are arranged in a spiral, as if inside there goes a spiral staircase along the walls like in a bastile. Dark head moldings also add allusions to a fortification – lintel boards over windows, which are technically unnecessary today, but it used to be a simple and reliable way to cap windows. But the main theme is the stone coat of roughly finished blocks. It turns the tower into a romantic and textured miracle, something totally “medieval”, or even something of the fantasy genre.

None
None
None
None
None
None
None
None
None
None
None
None
None
None
None
None
None
None
None
None