Published on Archi.ru (https://archi.ru)

24.01.2011

Dinner in the clouds

Anna Martovitskaya
Architect:
Roman Leonidov
Studio:
Studio of Roman Leonidov

"Architectural Bureau of Roman Leonidov" have designed a VIP-hall for the «Sky Lounge» restaurant, which is on the 22-floor of the RAS Presidium building. The image of the sky and clouds is at the heart of the design project.

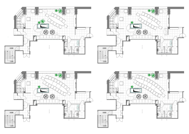
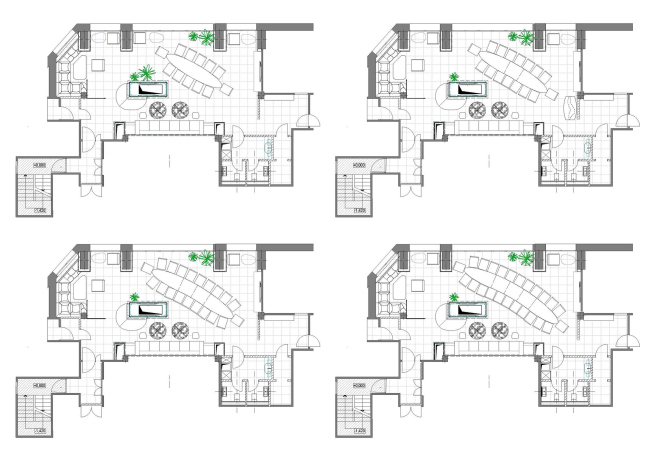
The total area of the former technical floor is 100 sq m. Even thought formally it is a single hall, it is so skillfully zoned that except the central table, there are many additional cozy places for small parties and couples who came for a quiet dinner. The effect of a compound space, which can’t be read at once, is achieved due to a large number of reflective surfaces and a variety of lighting effects. In particular, there is a column in the centre “wrapped” in a dark gray tinted glass. Under the electric light this quite massive construction serves as a mirror, but specific light scheme and plasma display panels behind the glass turn it into a unique sculptural lamp with flashed on spots-“bubbles”, changing their intensity and color. Many other columns zoning the space also serve as lamps decorated with white satin fabric which is loosely draped. Numerous folds and shadings create the illusion of air flow and heap clouds seen from an airplane. The architects Roman Leonidov ans Zoya Samorodova also included the image of a half moon into the interior. It is the ceiling lamp that is half-moon shaped, made of aluminum carved frame with 250 threads of glass beads. At night the last create romantic image of twinkling stars. Under the lamp there is the main table – the architects believe it is half-moon-shaped too, but actually it more like a surfboard. The long table top has the carcass of aluminum, and is made of Corian, and due to central inserts can be long or short.

None
None
None
None
None
None
None
None
None
None
None
None
None
None