Published on Archi.ru (https://archi.ru)

08.01.2011

Three colors: white

Anna Martovitskaya
Studio:
Sergey Kisselev & Partners

“Sergey Kiselev & Partners” the architectural bureau has completed the interior project of the public zones of an apartment complex at Ostozhenka. For the building with for different facades the architects chose a mostly white minimalist interior.

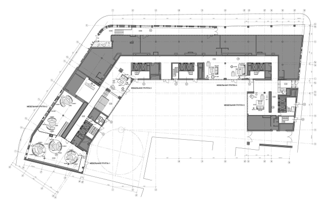
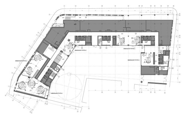
The building is located at Ostozhenka, among Pozharskyy and 1st Zachatievsky side lanes. The new building preserves the original scale of the street: following the historical plotting, visually the objects is split into three parts. Different shades and individual pattern of windows of each part of the building load its façades with such a rich plasticity and texture, that the architects wanted to its interior design to be different. "Clean and free of complicated theme and excessive materiality of the facades - explains Alexey Medvedev, the chief architect of the project. - The only "external" idea seemed appropriate in the interior was the light wood, which is the decoration of the courtyard façade, but later we gave up the idea and preferred white". Really, the white color is dominant here: white walls and ceilings, white floors of large-size slabs of agglomerate. Thanks to uniform coloring the spaces visually flow from one to another. Glass makes it more solid and airy - walls, staircase railing, and illuminated decorative panel. However, this does not mean that the public areas of the new residential complex remind of a hospital ward. In the kingdom of purity and sterility the architects introduced a sufficient amount of color and light accents accurately indicating the interior typology and stressing the status of its owners. The stretched parallelepiped of the reception desk is made of dark Spanish marble “Emperador Dark”, which “coffee with milk” shade favorably contrasts with the surrounding sugary white. Behind the concierge there is an illuminated panel of frosted glass with a picture of enlarged fragments of paint of the Sistine Chapel by Michelangelo. The hall wall joining all the five lift blocks is also turned into such panel. “We wanted to give the wall a meaning and we came to more textured but simple idea. Incredible plasticity expressiveness of Michelangelo’s works seemed appropriate, - explains Alexei Medvedev. –The first idea of a wall with illuminated spots was not intense enough. Enlarged and translated into a large screen and gray, the figures haven’t lost texture richness and surprising lightness, but gained abstract twist and, in fact, became the hangings we’ve been looking for. "

None
None
None
None
None
None
None
None
None
None
None
None
None
None
None
None
None
None
None
None
None
None
None
None