Published on Archi.ru (https://archi.ru)

23.12.2010

A foreign native

Artem Dezhurko
Studio:
PANACOM

Nikita Tokarev and Arseny Leonovich, architects of PANAKOM, designed a house for a Russian client in Germany. It turned neither very German nor Russian.

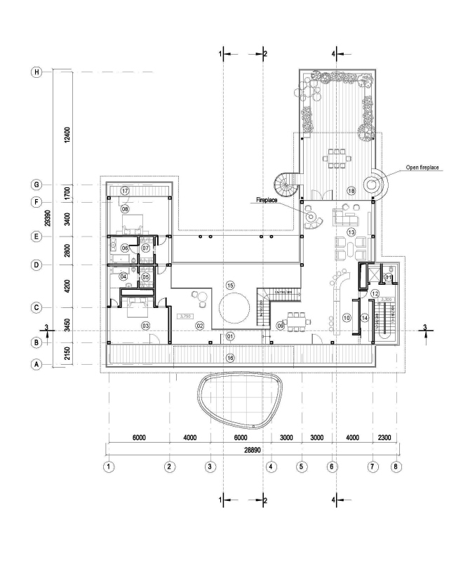
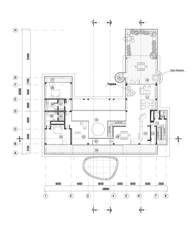
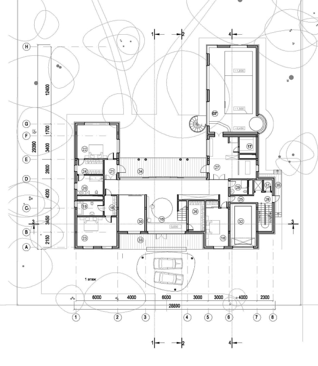
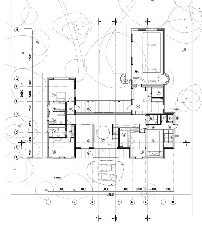
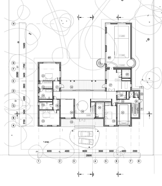
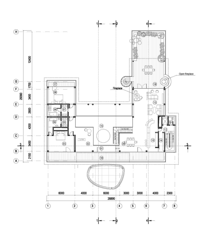
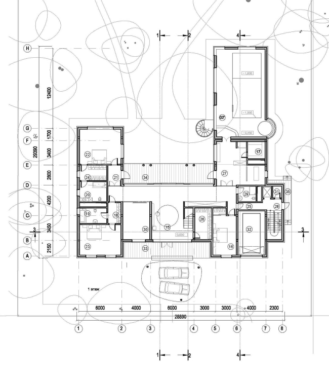
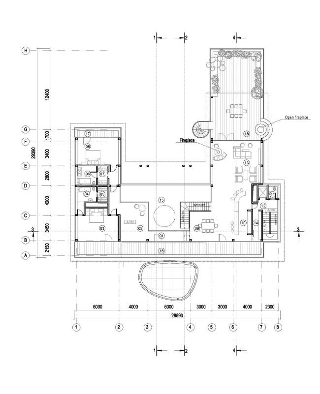
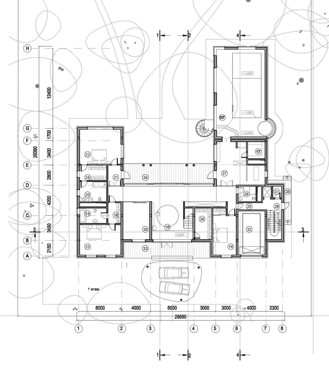
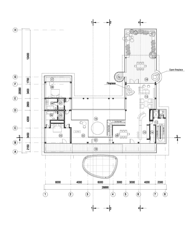
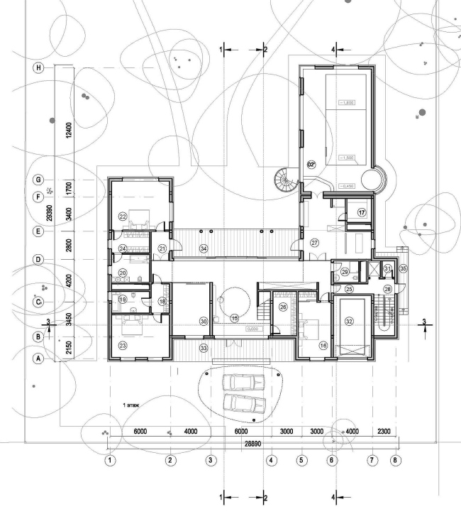
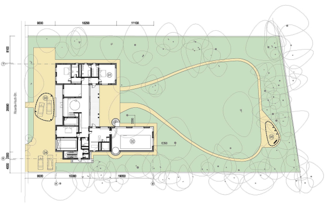
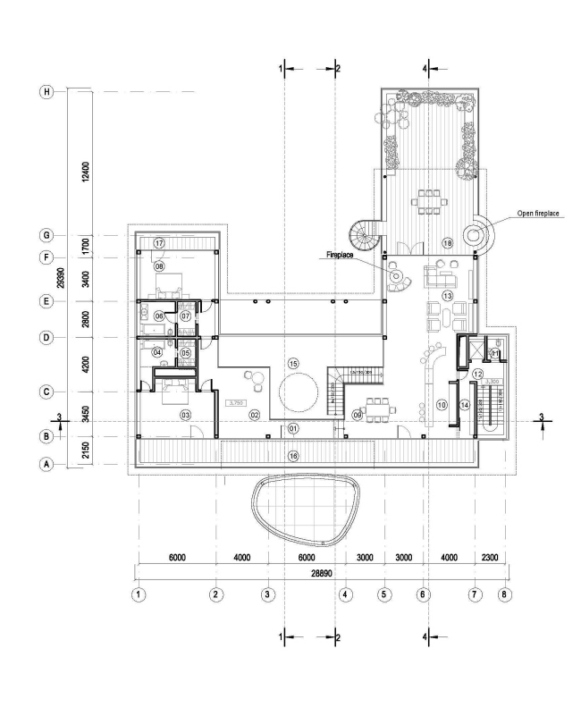
One of the architectural bureau "Panacom" clients has settled in Germany and decided to build a house. The site is located in Munich suburb. A local architect was also involved in the project, who has translated the draft into German, adjusted in accordance with German standards, coordinated and will arrange specification documents and supervise the construction. In many countries it’s a common practice when a local architect carries technical support to a project created by a foreign architectural bureau (Executive Architect). Uncommonly the public area of the house is taken to the second floor to provide the view over the trees which can’t be cut. So the entrance had to be designed so that any visitor would go straight upstairs. In the centre of the house there is a 2storey hall with rooflight and glass wall opposite the entrance, through which a garden is seen. From the two sides the second floor looks into the hall with its entresols and the staircase goes down to the entrance door. The hall invites a visitor to come up or go forward to the garden. Passages to the living spaces are hidden. Though the second floor is divided into several rooms it looks like a single space with a uniform wooden lacunar ceiling. Along almost entire perimeter there are glass walls, along the front façade and over the swimming pool there are terraces. All the rooms upstairs have way to the terrace along the street façade. The second floor looks like a gazebo, set on a stone foundation, too massive to carry its burden. The accentuated layering, U-shaped plan, strict symmetry with three intersecting axes (the third is vertical, fixed by the lamp on the hall ceiling), distinguished entrance – they are the signs of classicism, rather German, formular , and Schinkel classicism. The formal language of the construction is the language of German modernism of Gropius and Mies era, generally also strange too Panacom. Designing the building in Germany the architects decided to pay tribute to the context, but unfortunately they thought its Schinkel and "New Objectivity", but it turned out - roof tile and fachwerk.

None
None
None
None
None
None
None
None
None
None
None
None
None
None
None
None
None
None
None
None