Published on Archi.ru (https://archi.ru)

29.11.2010

A musical stone

Anna Martovitskaya
Studio:
Sergey Kisselev & Partners

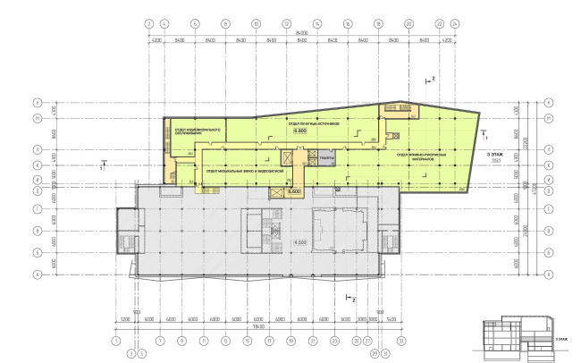
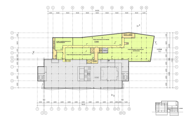
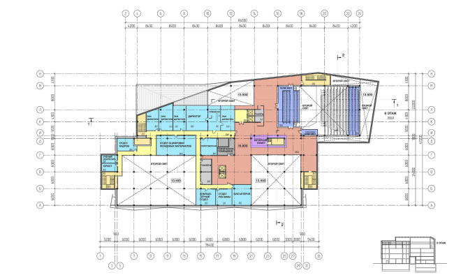
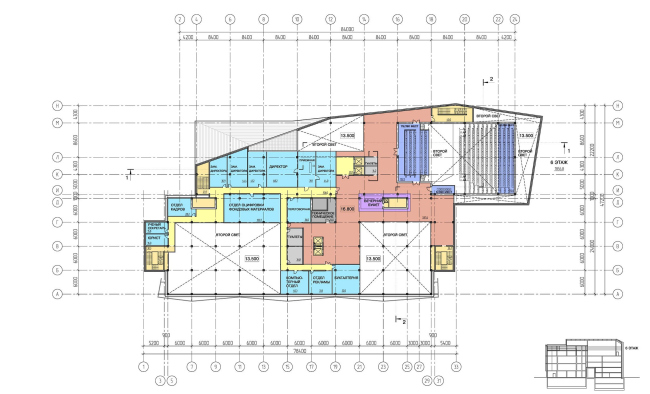
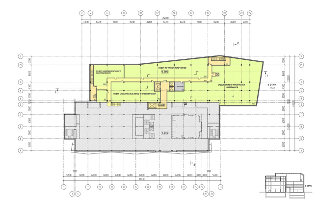
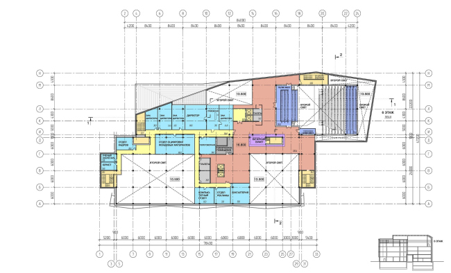
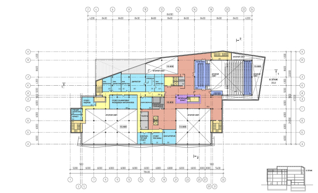
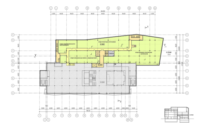
This year the architectural studio “Sergey Kiselev and Partners” has developed a reconstruction concept of the building of Glinka Museum of Musical Culture. In addition to expanding the existing building, the project involves construction of a new museum depository, designed emphatically modern.

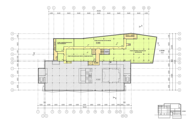
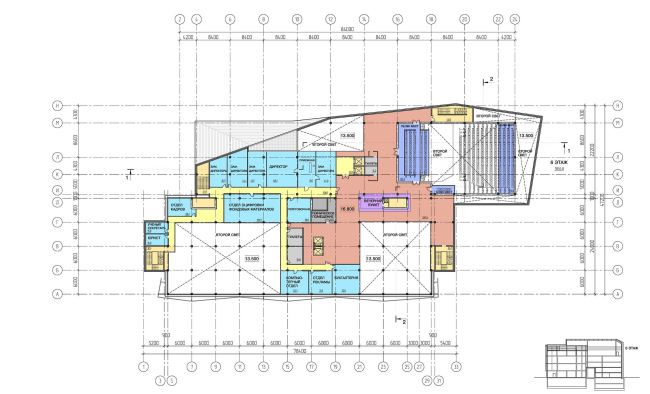
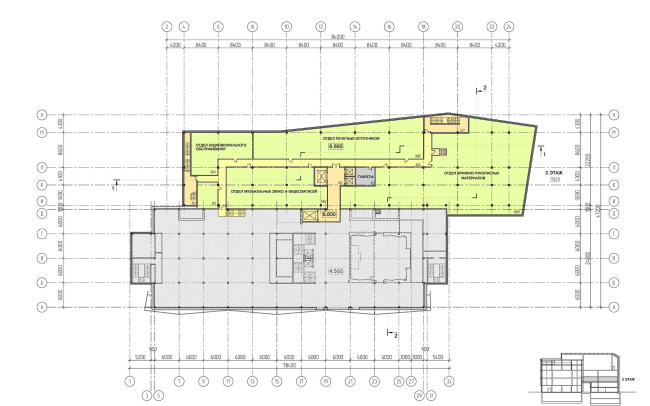
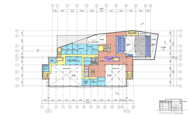
Vladimir Labutin’s team started working on the new depository project from thorough analysis of what can be built on such a small site. They thoroughly considered the allowed altitude of the new museum building which must not obstruct the estimated insolation of the constructed building. Size and shape of the object have been done with pinpoint accuracy: somewhere the architects had to cut off and round the corners of the notional parallelepiped or on the contrary they add a new block. Finally the building itself became a puzzle. On the plan it has the shape of a polygon, with the only straight side it is adjusted to the existing museum building, and the object resembles a giant stone an intricately faceted diamond. "We got such shape and we accepted it thinking the new building will be a cornerstone laid as the base of the new modern stage in museum development”- author of the project explains. Accordingly was chosen the material – depository facades will be finished with copper sheets, whose terracotta brown colors emphasize its “natural origin” and preciousness of the “stone”. Reconstruction project includes not only redesign of the museum interior, but also a new façade finishing. In particular, Vladimir Labutin suggests to “fold” the “plate” of the main façade into glass folded fencing. At that trying to save the “memorial spots” he leaves the existing suprematism graphics pf Loveiko and complements it with the images of musical instruments. The bell-tower P with the bells is saved as well. It will be faces with fine grained colored mosaic tiles, which will soften the brutality of the sculpture, and the architects wish to make the bells sound again. And this detail shows the main idea of the entire project – to reveal the potential of the richest collection of the Museum of Musical Culture, able to make it popular cultural and educational center of Moscow.

None
None
None
None
None
None
None
None
None
None
None
None
None
None
None
None
None
None
None
None
None
None
None
None
None
None
None
None
None
None
None
None
None
None