Published on Archi.ru (https://archi.ru)

13.12.2010

Dimensional tetris

Anna Martovitskaya
Studio:
Sergey Kisselev & Partners

“Sergei Kiselev and Partners” architectural studio has already worked on the project of the residential complex on Savvinskaya embankment before. The last version was done for the contest run by OAO “Gardteks”, the architects put figure combination of the popular “Tetris” game in the basis of its composition.

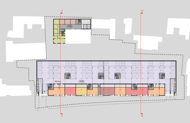
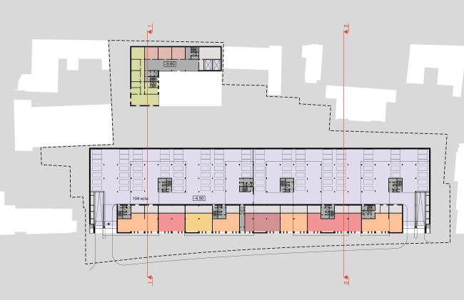
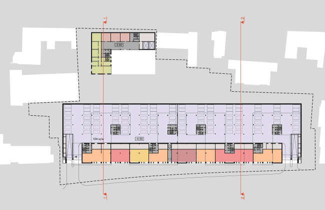
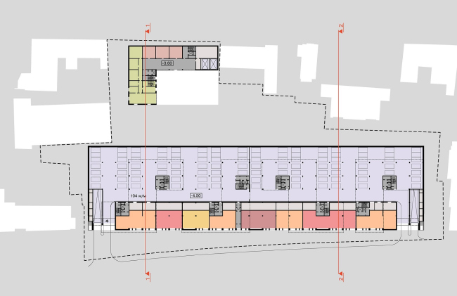
The architects are deeply convinced that Savvinskaya does not play the lead among the capital embankments, it has always been a background element in the overall structure of architectural score of the Moscow-river – they considered it was very important to reflect this in the image of the new complex. In other words, initially they counted on modest architecture and delicate methods of urban planning "implanting" of a residential city block into the embankment development. In particular, it dictated the location of the main volume along the river and limited its height by the height of the nearby buildings. Agreeably the complex has to be light like most surrounding buildings. The architects wanted to save also the gap between the first and second lines of the embankment development developed historically here, due to the quite strong drop of relief. That is why the new volumes are concentrated on the perimeter of the site, and the whole composition is based on the dialogue of landscaping and the dense urban fabric with fixed block boundary usual for the resident of the city centre. From the streets the park is completely hidden due to the stylobate, which supports the building located along the river. At the red line the volume creates a difference in one floor – the basement houses an art gallery, shops and cafes, the underground level is given to the parking lot. A higher volume breaks down into four separate pieces. Higher the volume is split into 4 independent sections. The fact is that the depth of the development, specified by the buildings flanking the site, is considerable, and without extra courtyards and gaps the new residential complex threatened to become another “Chinese Wall”. So the architects cut the imaginary parallelepiped into few pieces different in shape and “pulled” them apart – so there shaped the composition resembling figures of the computer game “Tetris". Such arrangement unavoidably leaves some apartments without the view to the river. And this is the point in the technical inquiry the architects have deliberately disturbed. "We thought the view to the park is no less important and among future residents there will be those who will prefer the cozy courtyard to epic panoramas", - says Andrey Nikiforov.

None
None
None
None
None
None
None
None
None
None
None
None
None
None
None
None
None
None
None
None
None
None
None
None
None
None
None
None