Published on Archi.ru (https://archi.ru)

13.11.2010

Clinic: a particular case

Nikolai Kirillov
Studio:
Sergey Kisselev & Partners

Since late last year the architectural studio “Sergey Kiselev & Partners” has been working on the objects of a mixed-use tourist complex “Lefkadia”. One of the most remarkable of them is going to be the 100 room “Natural Healing Clinic “which architecture, at the insistence of the client, is designed with "Crimean-Tatar-Tuscan" motives.

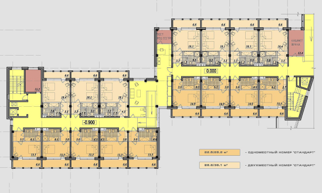
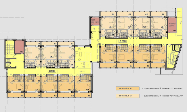
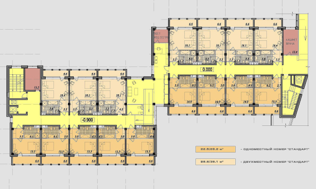
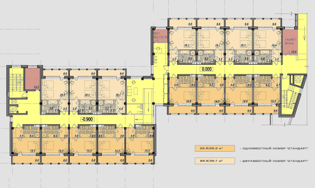
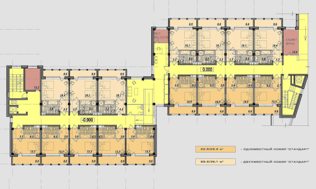
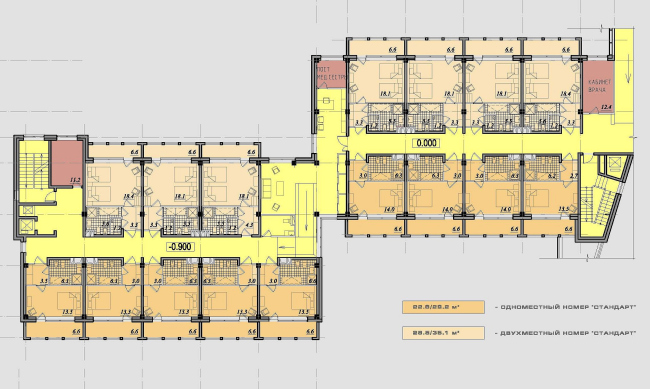
Ten ha given for the construction of the clinic are located at some distance from other zones of the tourist complex so that the patients could have a rest in peaceful and quiet atmosphere. The main attraction of the site is a small drop shape lake. The architects decided build the clinic complex of 2-3storey buildings joint by vertical communications right by the lake. The structure of the clinic is dictated by the main connections of the functional areas. To the dominating volume - medical-diagnostic building – to the left and to the right there are attached dormitories, located in the “folds” of the landscape to blend with the natural environment, perpendicular to the main axis there are located reception area with a restaurant, SPA, conference hall and exit to the central pedestrian esplanade leading to the park and beach. Planning of the Clinic inherits the best traditions of resorts and therapeutic complexes design and totally agreed to the client. But the style first proposed by the authors - modern and functional, common to SK&P was not what the client expected. "The client had their vision of the object, - says the chief project architect Faina Ibatullina. - They were both very persistent and yet, paradoxically, vague, and formulated as obscure "Crimean-Tatar-Tuscan motifs”. We did our best to implement this requirement and suggested to solve the facades with elements of the classics combined with inscriptions Tuscan motives to the complex roof. Facades are designed of smooth stone; bases, supporting walls and terraces will be covered with rough stone "coat", resembling a wild laying. On the roofs there will be arranged a terrace, some walls will be covered with bindweed. Inside they emphasized respectability of the medical institution: marble, granite, wood, stucco and leather. Notably, that commissioned to design in “Crimean-Tatar-Tuscan” style, the SC&P architects remained true to themselves. They have designed the complex with the exterior of a small southern town, fused with the sanatorium –they rather inserted into the context then made styling. There is no pretentious decor, and the only recognizable elements are the colonnade and arched windows. In other words, the architects have done calm and laconic contextual design, without stylization but inserting into southern tradition and involving a few recognizable elements.

None
None
None
None
None
None
None
None
None
None
None
None
None
None
None
None
None
None
None
None
None
None