Published on Archi.ru (https://archi.ru)

19.08.2010

The kingdom of broadcasters

Anna Martovitskaya
Architect:
Sergei Tchoban
Sergey Kouznetsov
Studio:
SPEECH

The architectural studio Speech designed a mixed-use complex on Imereti lowland. During the winter of 2014 it will house the main broadcast center of Olympic Games, after the event it will be turned into a retail and entertainment center.

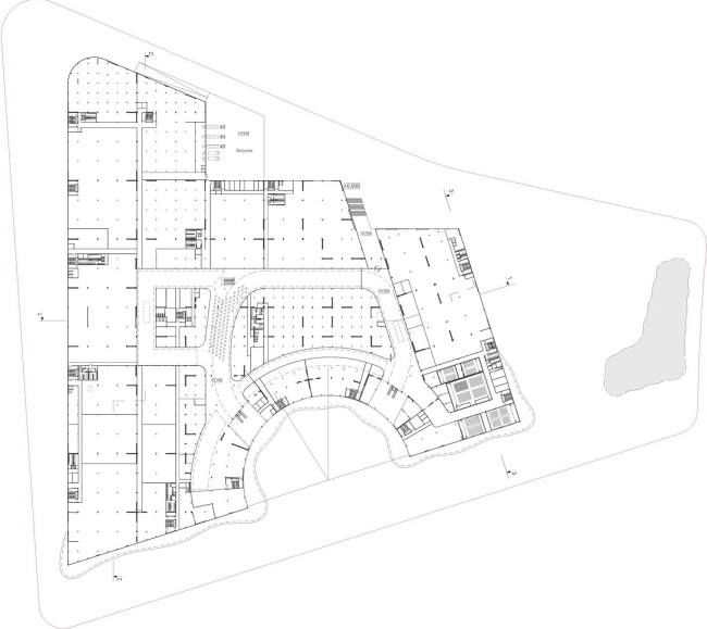
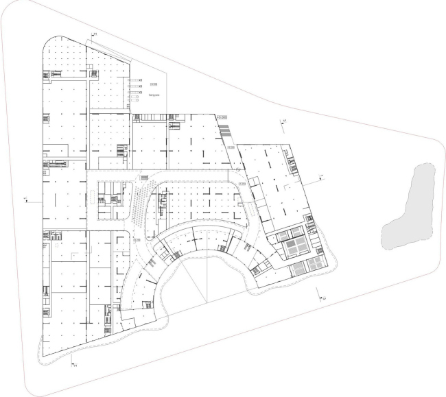
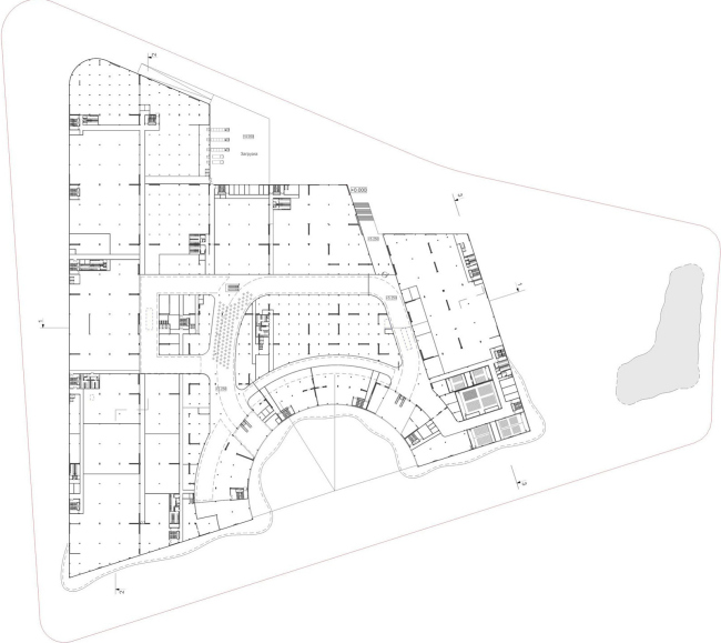
Complex, due to which the world will be watching events of the Russian Olympic Games will be located nearby the Olympic Park, along the green pedestrian boulevard joining park with the station. In addition to the broadcast center with the international broadcast center and the main press room, there will be a three-star 600 room hotel for journalists – as well designed by the Speech, suggesting one stylistic idea for the objects. The building site has trapezoid shape, slightly resembling a chemical flask lying sidelong. It’s longest west side fronts the Green Boulevard and Olympic Park. The narrower "neck" houses the hotel for journalists and the main northern territory is occupied by the broadcast centre. Thus, the broadcast centre is stretched along the western, northern and eastern site boundaries occupying most of it and following the trapezoidal shape. The "face" of the complex is the western facade. "The point is that all long stretched facades are very dull and monotonous, - says Sergey Kuznetsov - and we did our best to avoid it. So the façade is not just focuses the direction of the Green Boulevard, but develops its theme, turning along its entire length into a gallery protected from rain and sun. To break façade monotony the architects extend the roof far forward and add it an intense wave form. The wave, the thin white pillars supporting the roof, horizontal lamellas binding the building – all these elements finely conceal the true centre scale, not only giving it a visual lightness, but stressing its belonging to resort architecture of Sochi city. Yet despite such solution it might still look like a wall endlessly stretching along the boulevard if the architect would not come up with the idea to cut the building by a semi-circle pedestrian area with a fountain and a park with sculptures, in future it will complete street perspective of a new residential district being designed perpendicular to the boulevard.

None
None
None
None
None
None
None
None
None
None
None
None
None
None
None
None
None
None
None
None
None
None
None
None